NIEUWBOUW LUXE VILLA IN CUMBRE DEL SOL
Cumbre del Sol is een plek waar je zowel van de natuur als van de zon en de zee kunt genieten. Deze luxe villa biedt rust en comfort zodat de eigenaar in alle rust kan ontspannen met een ongelooflijk uitzicht op zee. Zou dit jouw toekomstige thuis kunnen zijn?
New Build villa design combineert op een stijlvolle en functionele manier een echt moderne architectuur. Op de gevel, die wordt gekenmerkt door grote geometrische figuren op basis van rechte lijnen en de vorm van kubussen, domineert de kleur wit, waardoor de villa zowel een elegant als minimalistisch ontwerp heeft. De tuin, 100% mediterraan van stijl, heeft stenen muren die helpen om de villa te integreren met de omgeving.
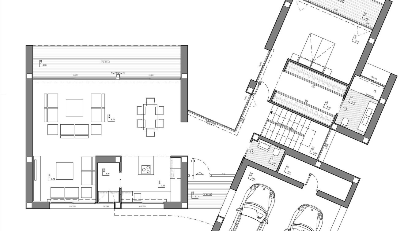
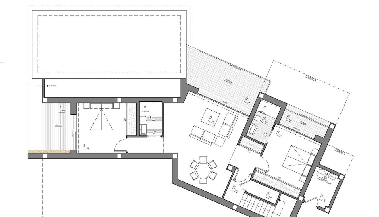
Het woongedeelte bevindt zich op dezelfde verdieping. Een ruime keuken met een centraal eiland en uitgerust met elektrische apparatuur van topmerken, een grote woonkamer en een terras met een prachtig uitzicht op de Middellandse Zee.
De woonkamer heeft een zeer warm en gezellig ontwerp. Het bestaat uit een grote kamer, die kan worden verdeeld in twee kamers voor meer privacy.
Op dezelfde verdieping vinden we de hoofdsuite met eigen badkamer en privéterras, waar je kunt genieten van het mooie weer en het uitzicht op zee vanuit de privacy die je hebt als je in je eigen kamer bent.
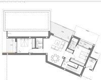
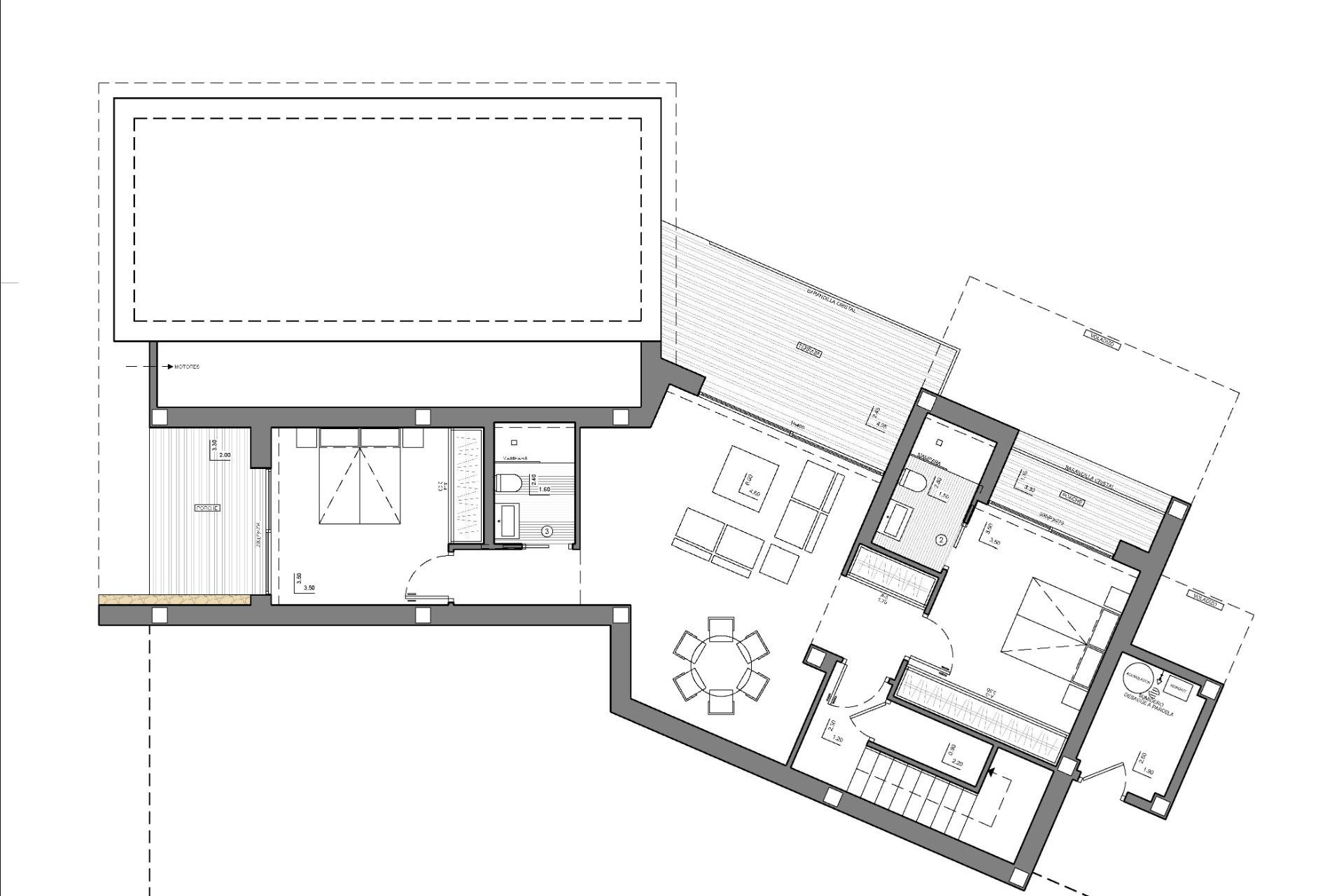
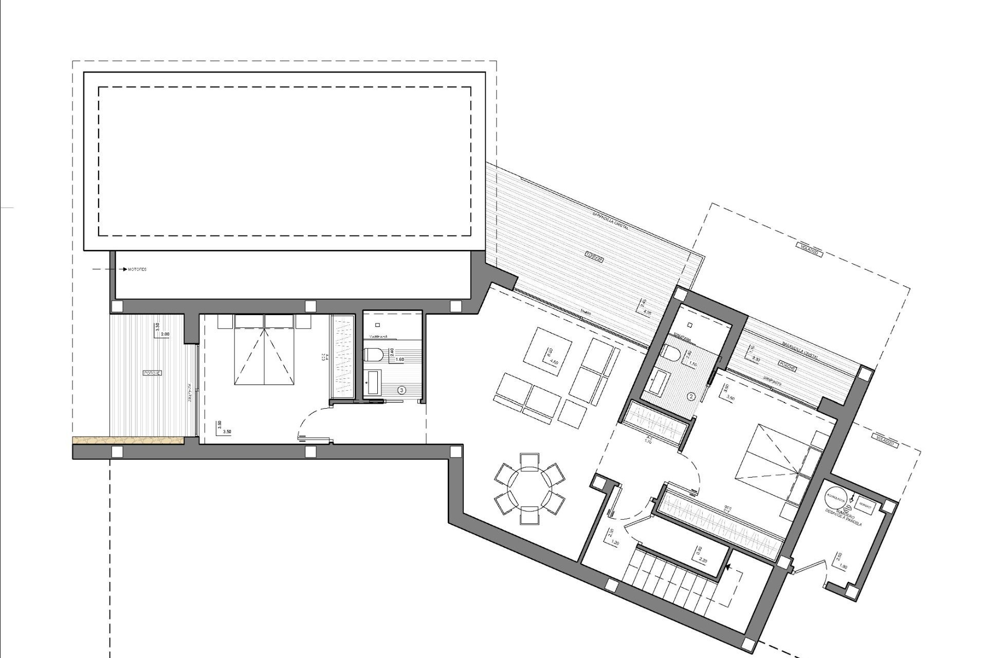
Op de onderste verdieping zijn er twee grote slaapkamers, elk met een eigen badkamer en terras, waar je kunt genieten van het buitenleven. Er is ook een kleine woonkamer op deze verdieping, waar je kunt lezen, mediteren of gewoon ontspannen.
Het terras wordt bekroond door een overloopzwembad, waar je optimaal kunt genieten van de zon en het spectaculaire uitzicht. Een ideale plek voor een aperitief, een barbecue met vrienden en familie of gewoon een siësta in de zon.
291
Meters
266m2Perceel
1000m2Slaapkamers
3Badkamers
4Zwembad
Ja3
4
266m2
1000m2
Ja