VILLA DE LUXE NOUVELLEMENT CONSTRUITE À CUMBRE DEL SOL
Cumbre del Sol est un endroit où l'on peut profiter à la fois de la nature, du soleil et de la mer. Cette villa de luxe offre la paix et le confort pour que le propriétaire puisse se détendre tranquillement avec une vue incroyable sur la mer. Cela pourrait-il être votre future maison ?
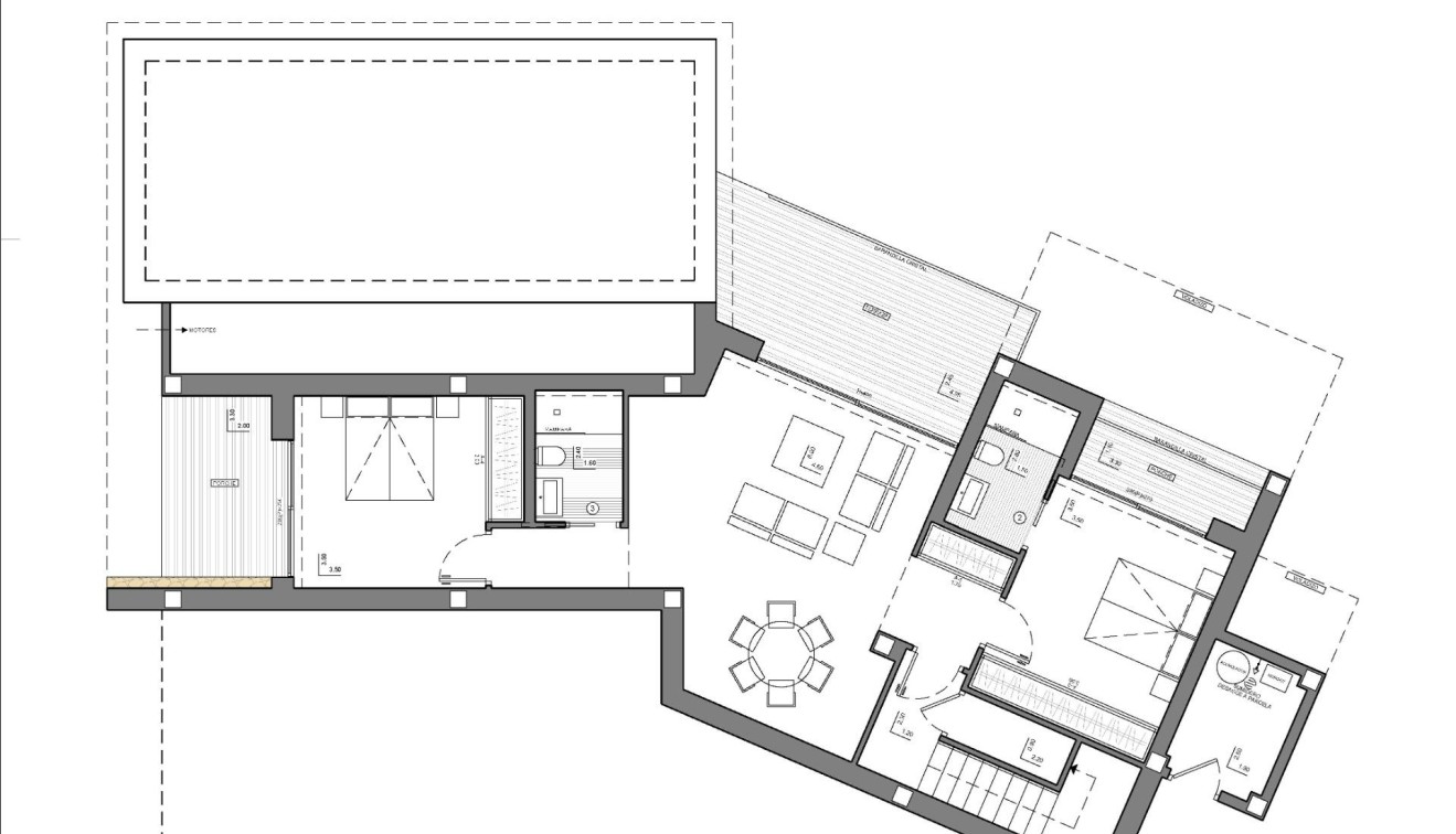
La conception de la villa New Build combine de manière élégante et fonctionnelle une architecture vraiment moderne. Sur sa façade, caractérisée par de grandes figures géométriques créées à partir de lignes droites et de la forme de cubes, la couleur blanche domine, donnant à la villa un design élégant et minimaliste. Son jardin, de style 100% méditerranéen, comporte des murs en pierre qui contribuent à l'intégration de la villa dans son environnement.
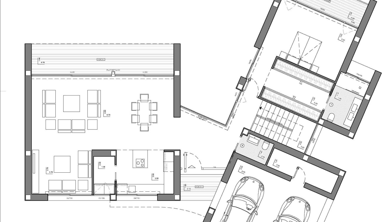
L'espace de vie se trouve au même étage. Une cuisine spacieuse avec un îlot central et équipée d'appareils électroménagers de grande marque, un grand salon et une terrasse avec une vue imprenable sur la mer Méditerranée.
Le salon a un design très chaleureux et accueillant. Il se compose d'une grande pièce, qui peut être divisée en deux pièces pour plus d'intimité.
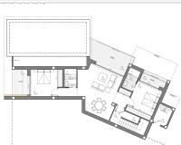
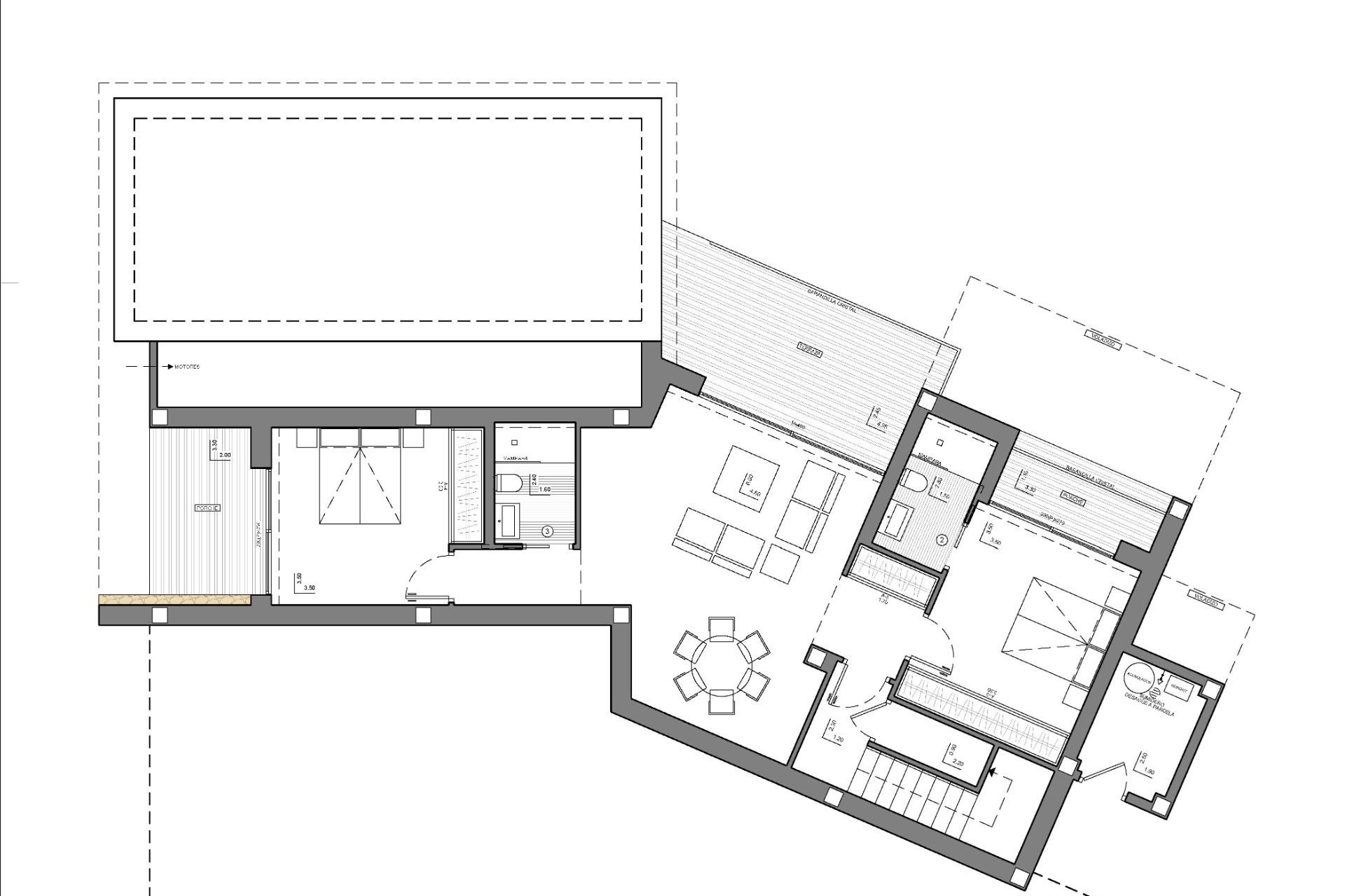
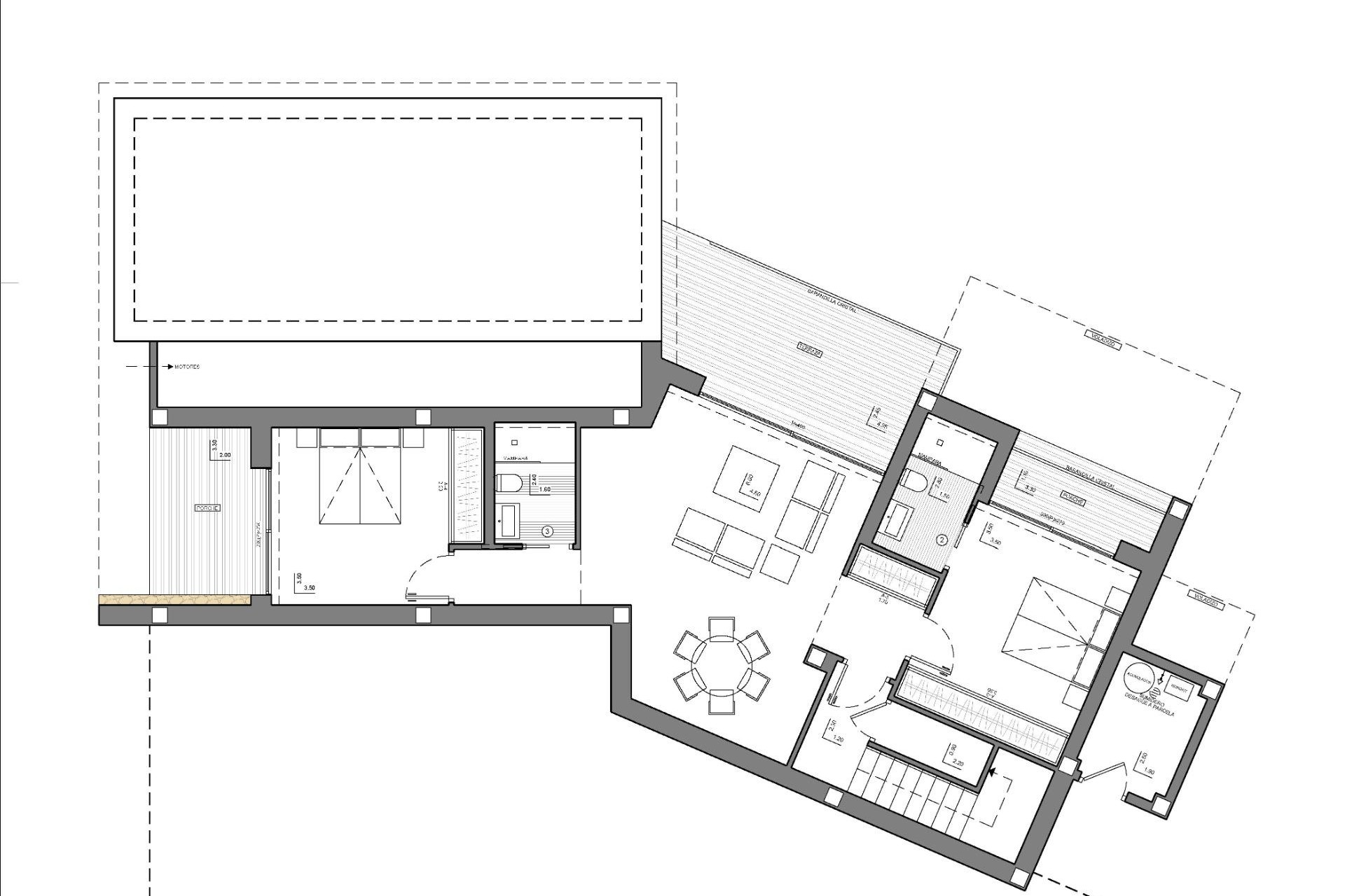
Au même étage se trouve la suite principale avec sa propre salle de bains et sa terrasse privée, où vous pourrez profiter du beau temps et de la vue sur la mer tout en restant dans votre chambre.
À l'étage inférieur se trouvent deux grandes chambres, chacune avec sa propre salle de bains et sa terrasse, où vous pourrez profiter de l'extérieur. Il y a également un petit salon à cet étage, où vous pouvez lire, méditer ou simplement vous détendre.
La terrasse est couronnée par une piscine à débordement, où vous pourrez profiter au maximum du soleil et des vues spectaculaires. C'est l'endroit idéal pour prendre l'apéritif, faire un barbecue entre amis ou en famille, ou tout simplement faire une sieste au soleil.
291
Mètres
266m2Terrain
1000m2Chambres
3Salles de bains
4Piscine
Oui3
4
266m2
1000m2
Oui