NEU GEBAUTE LUXUSVILLA IN CUMBRE DEL SOL
Cumbre del Sol ist ein Ort, an dem Sie sowohl die Natur als auch die Sonne und das Meer genießen können. Diese Luxusvilla bietet Ruhe und Komfort, so dass der Eigentümer sich in aller Ruhe mit einem unglaublichen Meerblick entspannen kann. Könnte dies Ihr zukünftiges Zuhause sein?
Das Design der New Build Villa kombiniert auf stilvolle und funktionale Weise eine wirklich moderne Architektur. An der Fassade, die sich durch große geometrische Figuren auszeichnet, die auf geraden Linien und der Form von Würfeln basieren, dominiert die Farbe Weiß, die der Villa ein elegantes, aber auch minimalistisches Design verleiht. Der Garten, der zu 100% im mediterranen Stil angelegt ist, hat Steinmauern, die dazu beitragen, die Villa mit ihrer Umgebung zu integrieren.
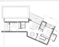
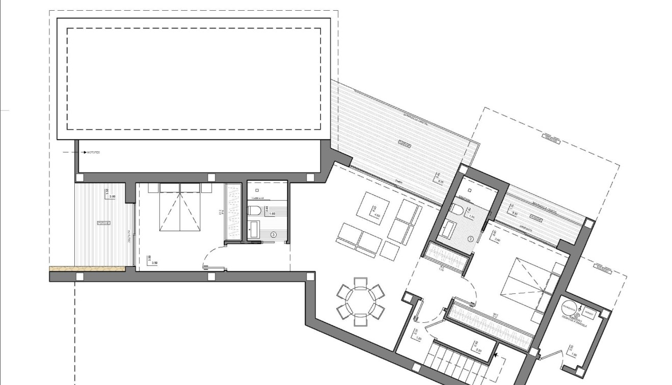
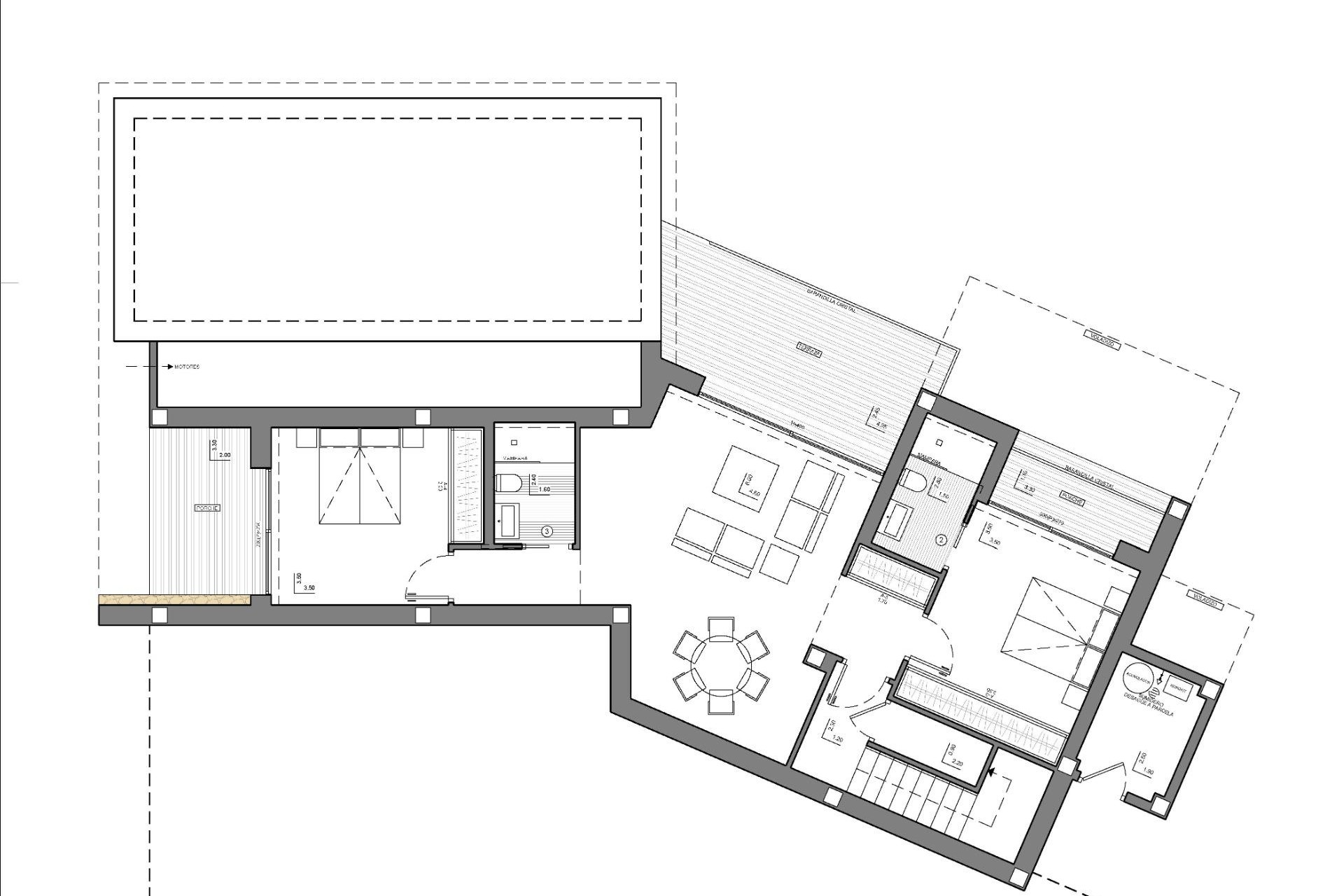
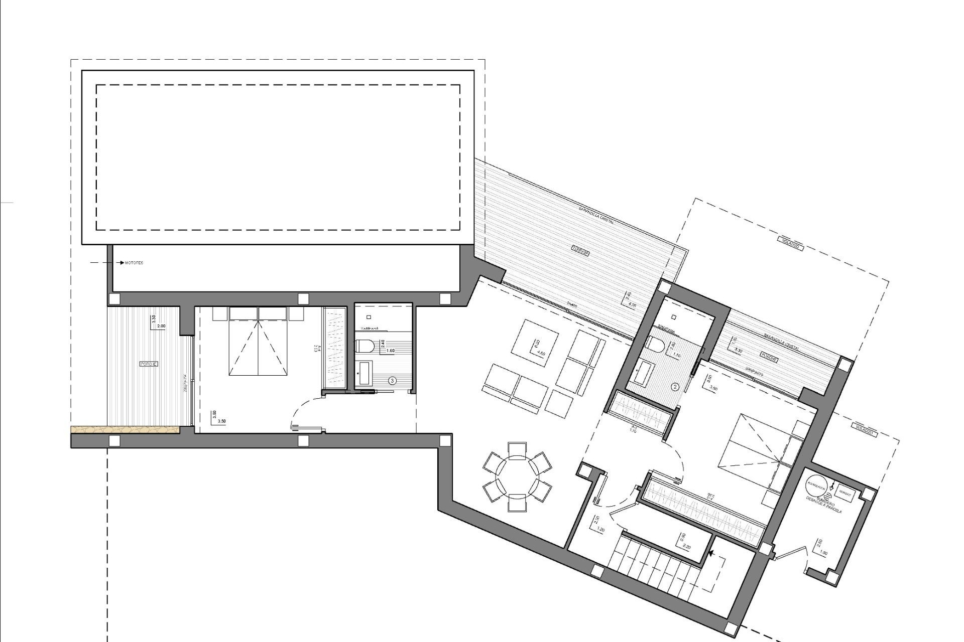
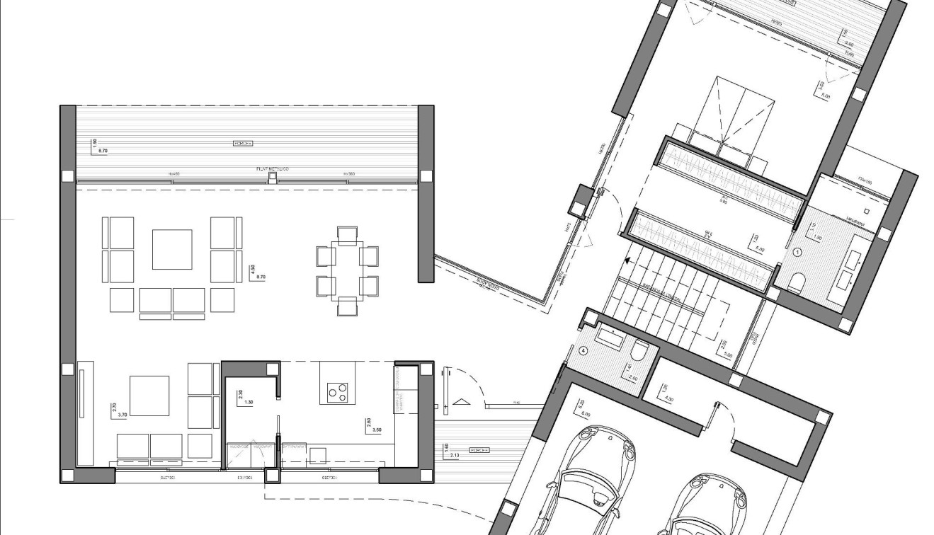
Der Wohnbereich befindet sich auf der gleichen Etage. Eine geräumige Küche mit einer Insel in der Mitte und ausgestattet mit Top-Elektrogeräten, ein großes Wohnzimmer und eine Terrasse mit herrlichem Blick auf das Mittelmeer.
Das Wohnzimmer ist sehr warm und gemütlich gestaltet. Es besteht aus einem großen Raum, der für mehr Privatsphäre in zwei Räume geteilt werden kann.
Auf der gleichen Etage befindet sich die Hauptsuite mit eigenem Bad und privater Terrasse, auf der Sie das schöne Wetter und den Meerblick genießen können, während Sie in Ihrem eigenen Zimmer sind.
In der unteren Etage befinden sich zwei große Schlafzimmer, jedes mit eigenem Bad und Terrasse, auf der Sie die Natur genießen können. Auf dieser Etage befindet sich auch ein kleines Wohnzimmer, in dem Sie lesen, meditieren oder einfach nur entspannen können.
Der Terrassenbereich wird von einem Infinity-Pool gekrönt, in dem Sie die Sonne und die spektakuläre Aussicht genießen können. Ein idealer Ort für einen Aperitif, ein Barbecue mit Freunden und Familie oder einfach eine Siesta in der Sonne.
291
Meter
266m2Grundstück
1000m2Schlafzimmer
3Badezimmer
4Pool
Ja3
4
266m2
1000m2
Ja