NOVOSTAVBA LUXUSNÍ VILA V CUMBRE DEL SOL
Cumbre del Sol je místem, kde si můžete užívat jak přírodu, tak slunce a moře. Tato luxusní vila nabízí klid a pohodlí, takže majitel se může v klidu odpočívat s neuvěřitelným výhledem na moře. Mohl by to být váš budoucí dům?
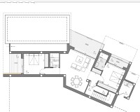
Design novostavby kombinuje stylově a funkčně pravou moderní architekturu. Na jeho fasádě, charakterizované velkými geometrickými figurami vytvořenými na základě přímých linií a tvaru krychle, dominuje bílá barva, díky čemuž vila působí elegantně a minimalisticky. Jeho zahrada, 100% středozemní styl, má kamenné zdi, které pomáhají vilu integrovat do svého okolí.
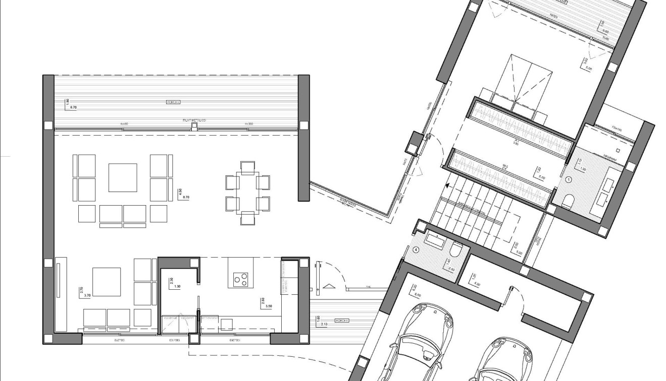
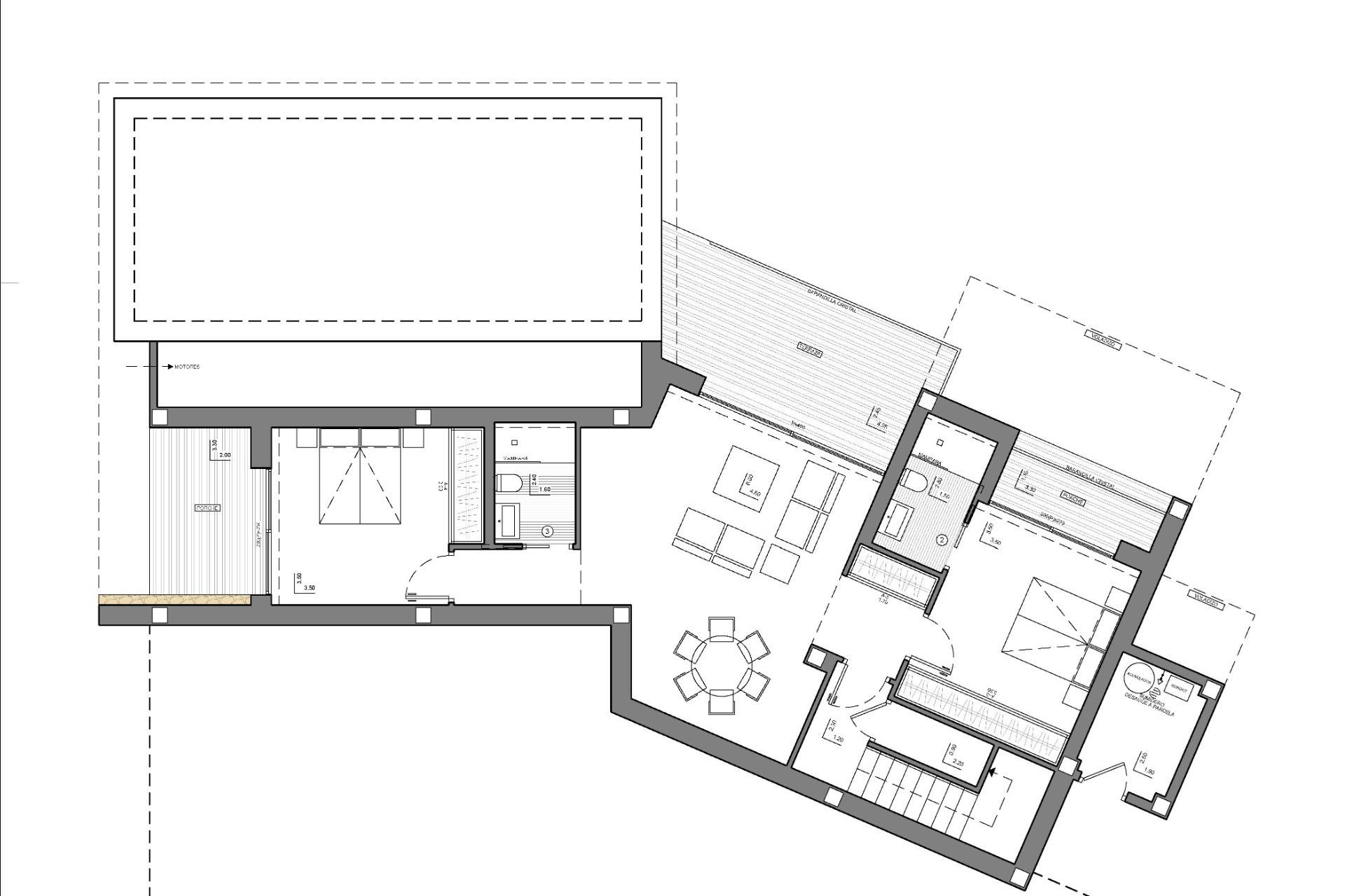
Obytná zóna se nachází na stejném patře. Prostorná kuchyň s centrálním ostrovem vybaveným elektrickými spotřebiči, velký obývací pokoj a terasa s úžasným výhledem na Středozemní moře.
Obývací pokoj má velmi teplý a útulný design. Skládá se z velké místnosti, kterou by bylo možné rozdělit na dva pokoje pro větší soukromí.
Na stejném patře najdeme hlavní ložnici se svou vlastní koupelnou a soukromou terasou, kde si můžete vychutnat krásné počasí a výhled na moře z vašeho soukromí.
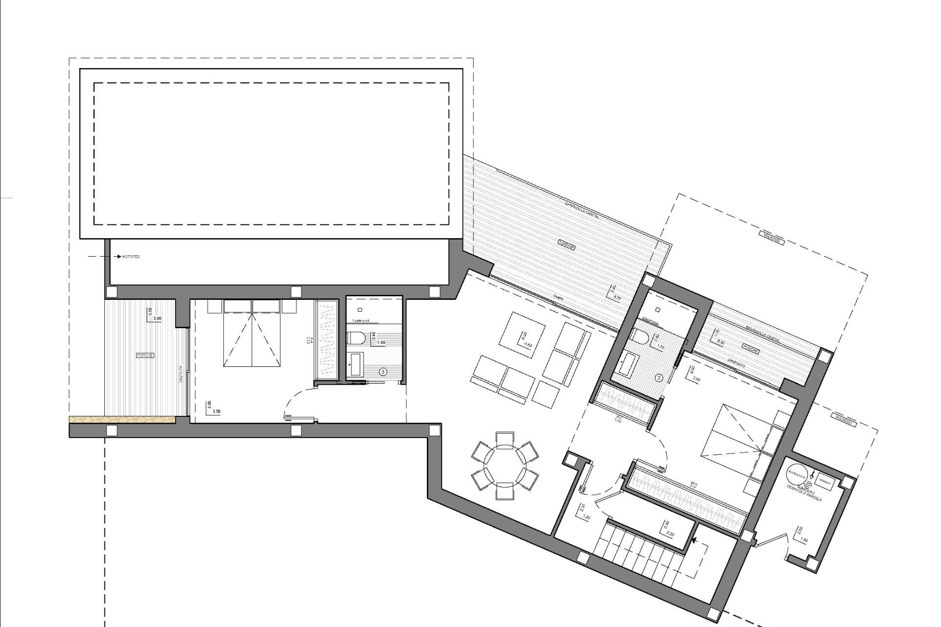
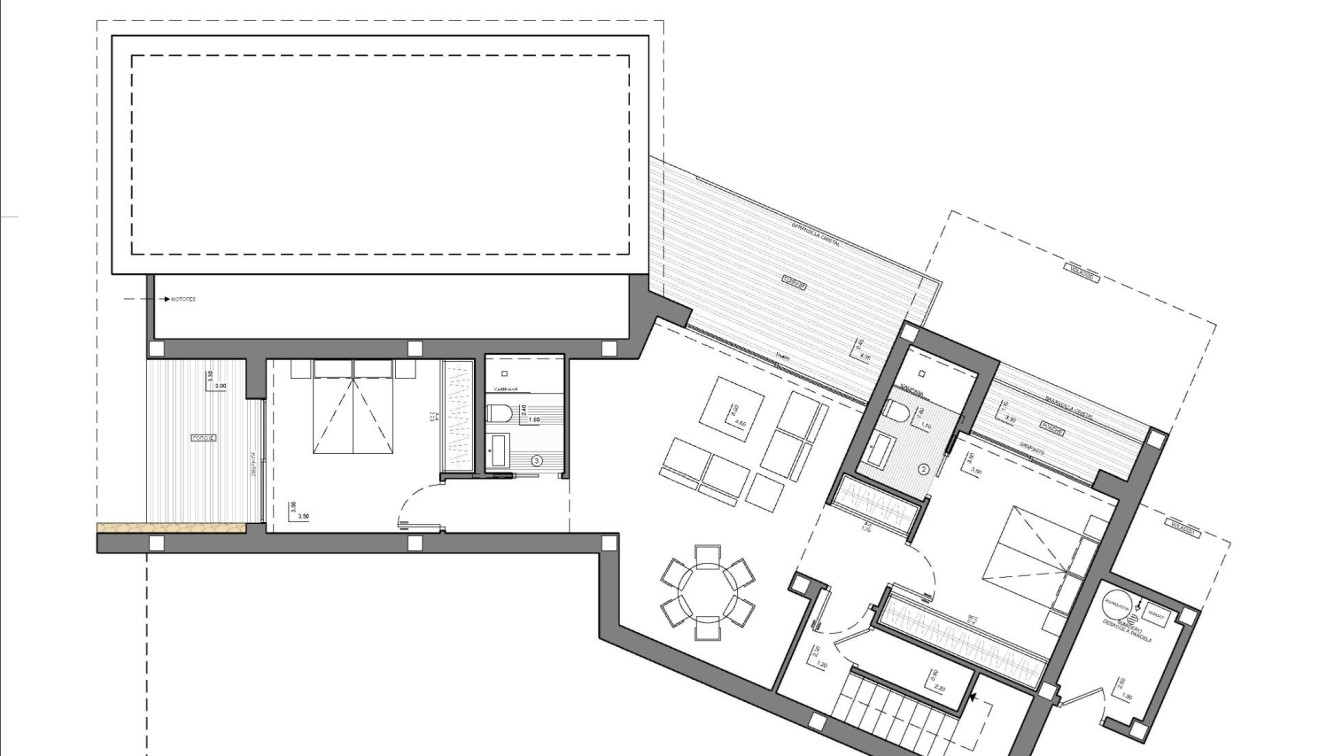
V dolním patře jsou dvě velké ložnice, každá se svou vlastní koupelnou a terasou, kde si můžete vychutnat venkovní pohodu. Na tomto patře je také malý obývací pokoj, kde si můžete přečíst, meditovat nebo se prostě relaxovat.
Oblast terasy je korunována nekonečným bazénem, kde si budete moci naplno užívat slunce a spektakulární výhledy. Ideální místo pro aperitiv, barbecue s přáteli a rodinou nebo prostě si zdřímnout na slunci.
291
Metry
266m2Pozemek
1000m2Ložnice
3Koupelny
4Bazén
Ano3
4
266m2
1000m2
Ano