RYKER PIERWOTNY WILLA Z WIDOKIEM NA MORZE W CUMBRE DEL SOL
Dom z jasną koncepcją, aby stworzyć fuzję między wnętrzem i na zewnątrz, uzyskując otwarte pobyty, jasne i funkcjonalne pokoje. Salon wychodzi na taras i zaprasza do cieszenia się wspaniałym śródziemnomorskim klimatem, który zapewnia nam prawie 300 słonecznych dni w roku.
Zaprojektowana w otwartych modułach w kształcie litery L, willa obejmuje główny ogród, w którym imponujący basen bez krawędzi łączy się z morzem. Przestrzeń otwarta na zewnątrz, która zachęca do korzystania ze słońca i śródziemnomorskiego klimatu, ale zorientowana w taki sposób, aby osiągnąć maksymalną prywatność.
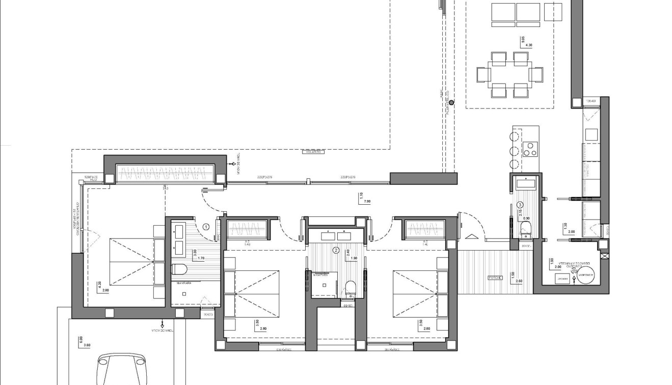
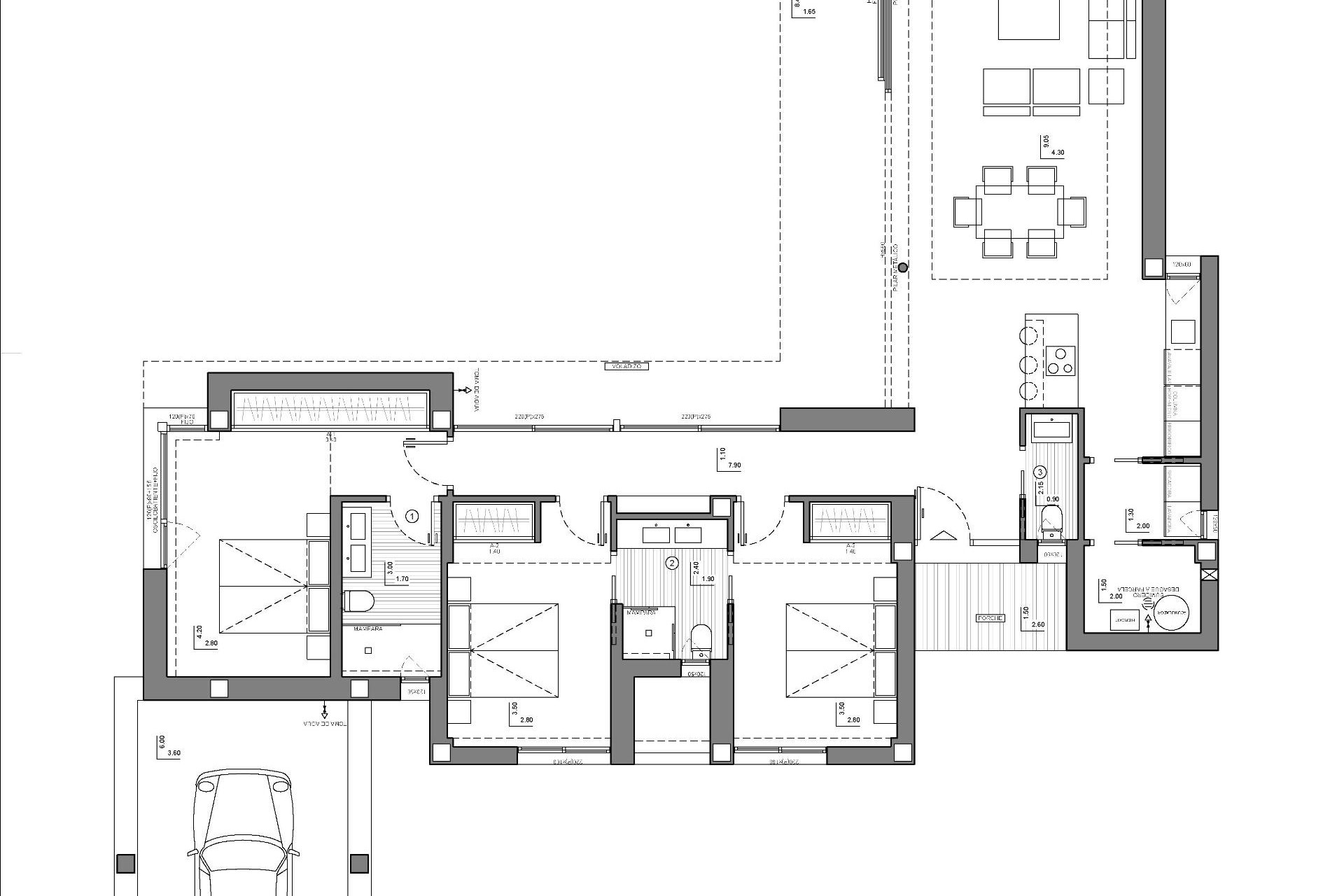
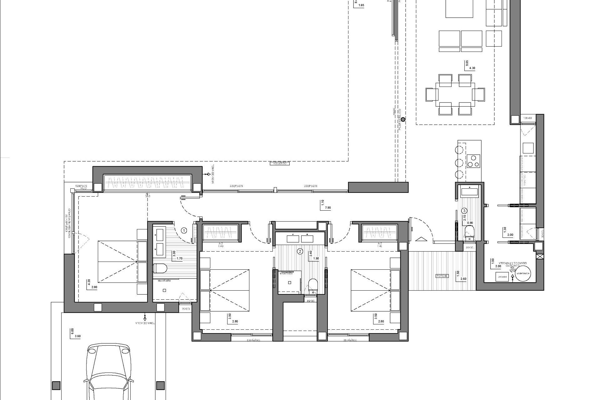
Willa jest podzielona na dwa poziomy. Na piętrze znajduje się część sypialna, gdzie dwie sypialnie mają wspólną łazienkę, podczas gdy główny apartament staje się prywatnym sanktuarium z własną łazienką i garderobą. Z pokoi można podziwiać zapierające dech w piersiach widoki na morze i góry, tworząc poczucie spokoju i ciszy, które zachęcają do relaksu.
Na parterze znajduje się moduł dzienny, który otwiera się na zewnątrz, tworząc poczucie ciągłości i połączenia z otoczeniem. Moduł dzienny składa się z holu wejściowego, toalety dla gości oraz tandemu utworzonego przez duży salon z jadalnią i kuchnię, które są doskonale zintegrowane. Oba moduły zbiegają się w obszarze zewnętrznym z tarasem i basenem jako punktem połączenia.
Współczesny styl New Build Villa łączy się ze śródziemnomorską tradycją, tworząc harmonijną i zrównoważoną przestrzeń, która zachęca do relaksu i cieszenia się zmysłami. Główny ogród ze śródziemnomorską roślinnością i aromatycznymi roślinami łączy cię z naturą.
To wyjątkowa i specjalna willa, zaprojektowana, aby cieszyć się pełnią życia i tworzyć niezapomniane wspomnienia w wymarzonym otoczeniu. Willa, która zaprasza do marzeń o życiu pełnym luksusu, komfortu i piękna, w przestrzeni, w której architektura i natura łączą się w idealnej symfonii.
291
Metry
142m2Działka
813m2Sypialnie
3Łazienki
3Basen
Tak3
3
142m2
813m2
Tak