NIEUWBOUW VILLA MET UITZICHT OP ZEE IN CUMBRE DEL SOL
Een huis met een duidelijk concept, om een fusie te creëren tussen binnen en buiten, door het verkrijgen van open verblijven, lichte en functionele kamers. De woonkamer komt uit op het terras en nodigt je uit om te genieten van het heerlijke mediterrane klimaat, dat ons bijna 300 dagen zon per jaar geeft.
Ontworpen in open L-vormige modules, omarmt de villa de hoofdtuin, waar een indrukwekkend overloopzwembad samensmelt met de zee. Een ruimte die open is naar buiten, die uitnodigt om te genieten van de zon en het mediterrane klimaat, maar die zo georiënteerd is dat maximale privacy wordt bereikt.
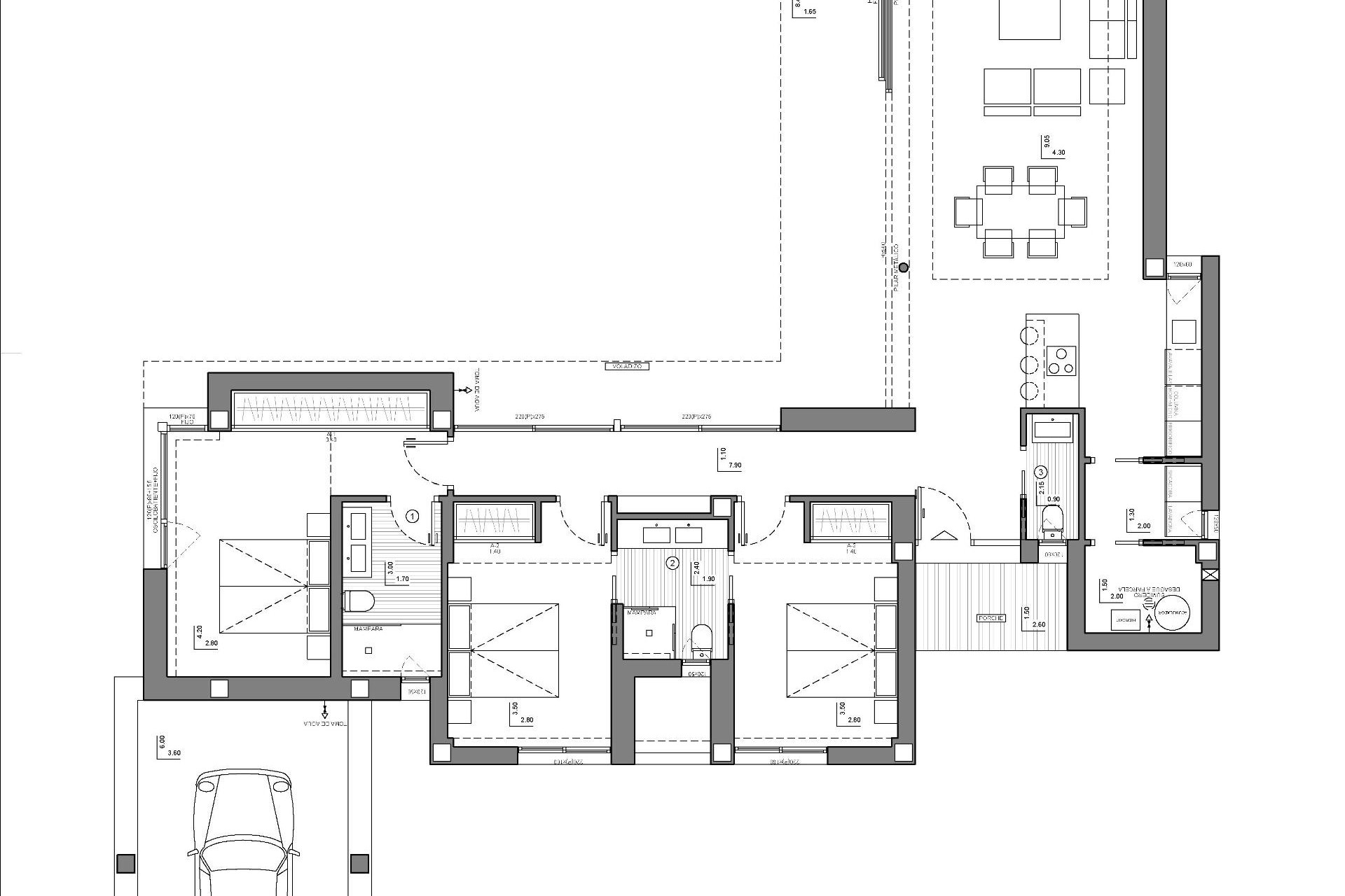
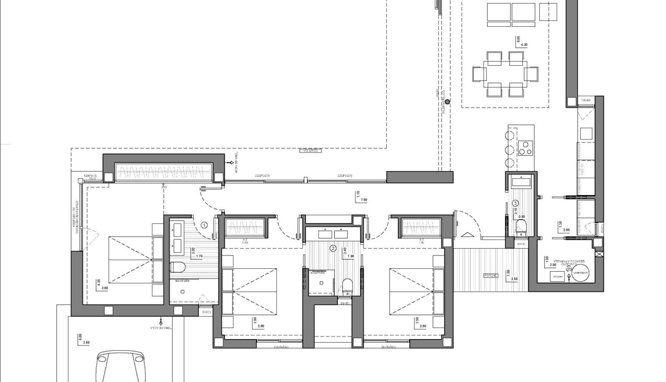
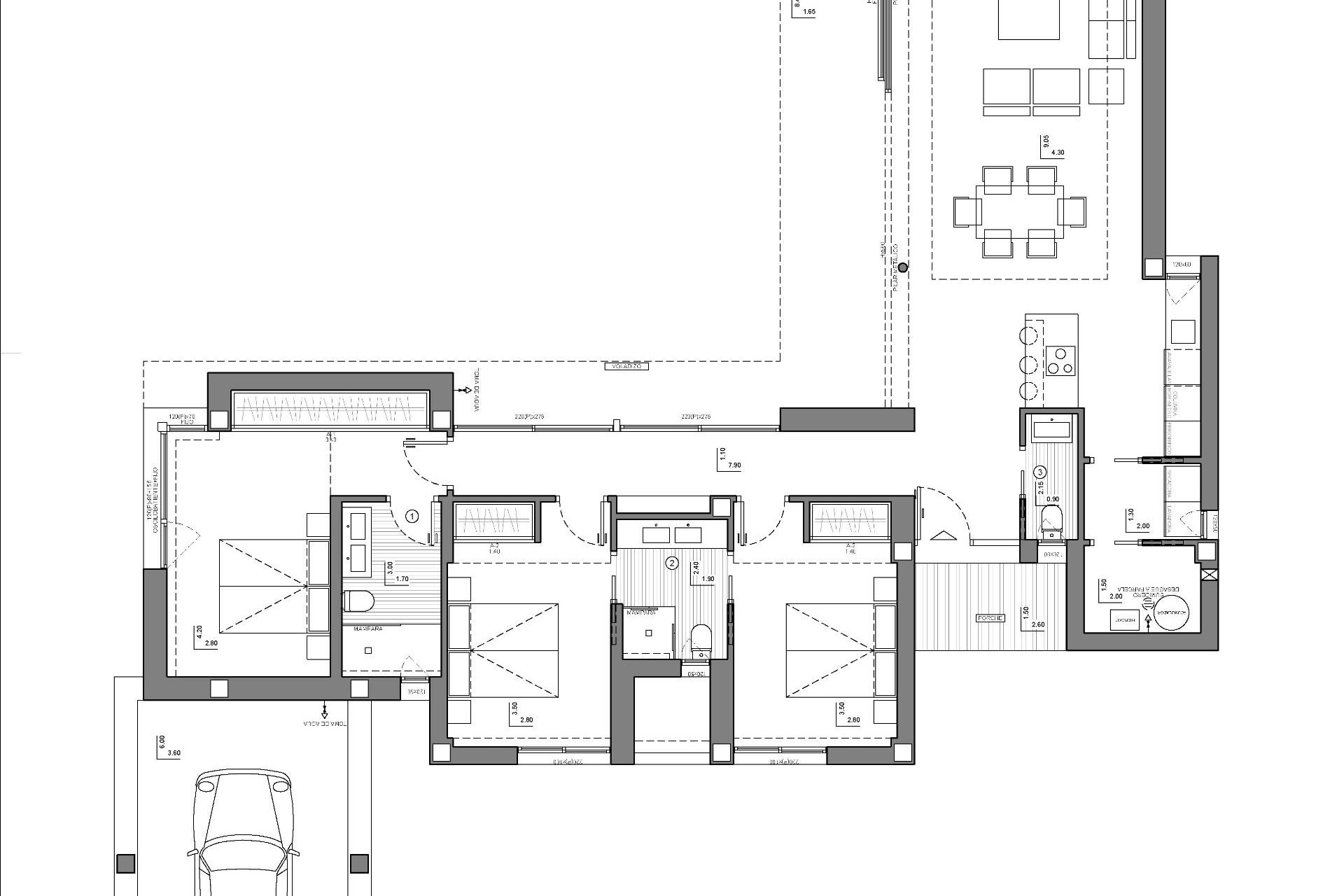
De villa is verdeeld in twee niveaus. Boven is het slaapgedeelte, waar twee slaapkamers een gemeenschappelijke badkamer delen, terwijl de master suite een privé heiligdom wordt met een eigen badkamer en kleedkamer. Vanuit de kamers kun je genieten van een adembenemend uitzicht op de zee en de bergen, waardoor een gevoel van sereniteit en rust ontstaat dat uitnodigt om te ontspannen.
Op de begane grond bevindt zich de dagmodule, die naar buiten opent en een gevoel van continuïteit en verbondenheid met de omgeving creëert. De dagmodule bestaat uit een hal, een gastentoilet en de tandem gevormd door een grote woon-eetkamer en keuken die perfect geïntegreerd zijn. Beide modules komen samen in de buitenruimte met het terras en het zwembad als verbindingspunt.
New Build Villa hedendaagse stijl vermengt met mediterrane traditie, het creëren van een harmonieuze en evenwichtige ruimte die ontspanning en genot van de zintuigen uitnodigt. De hoofdtuin, met zijn mediterrane vegetatie en aromatische planten, verbindt je met de natuur.
Dit is een unieke en bijzondere villa, ontworpen om volop van het leven te genieten en onvergetelijke herinneringen te creëren in een droomachtige omgeving. Een villa die je uitnodigt om te dromen van een leven vol luxe, comfort en schoonheid, in een ruimte waar architectuur en natuur samensmelten in een perfecte symfonie.
291
Meters
142m2Perceel
813m2Slaapkamers
3Badkamers
3Zwembad
Ja3
3
142m2
813m2
Ja