Lujosa casa moderna en el corazón de Moraira-Teulada: un refugio mediterráneo contemporáneo
Descubra una impresionante casa unifamiliar enclavada en la pintoresca localidad de Moraira-Teulada, Costa Blanca. Esta moderna propiedad ofrece una exquisita combinación de lujo, confort y belleza natural, situada en una generosa parcela que proporciona tanto privacidad como vistas panorámicas del paisaje mediterráneo circundante. Moraira-Teulada es conocida por su encantador ambiente costero, su vibrante cultura local y su fácil acceso a los principales servicios.
Excelencia arquitectónica con vistas panorámicas
Esta casa de diseño arquitectónico es una obra maestra moderna que se funde armoniosamente con el entorno natural. Construida con hormigón armado y acentuada con detalles de madera, el diseño de la casa integra a la perfección grandes paneles de cristal para maximizar la luz natural y enmarcar impresionantes vistas al mar y a la exuberante vegetación. La casa está construida sobre varias terrazas, complementando la pendiente natural del terreno y ofreciendo vistas despejadas desde todos los ángulos.
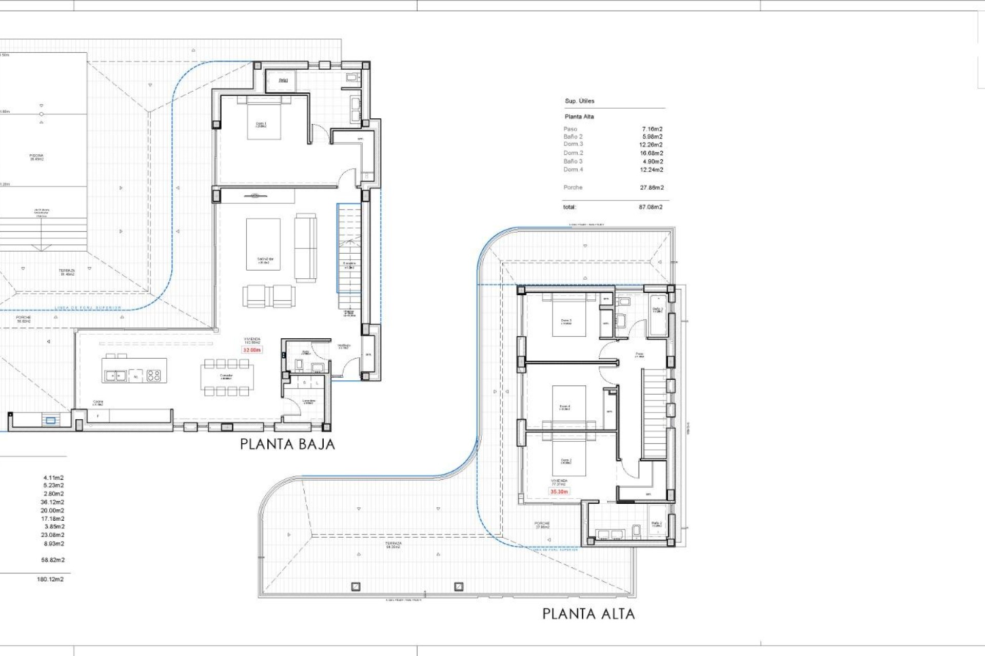
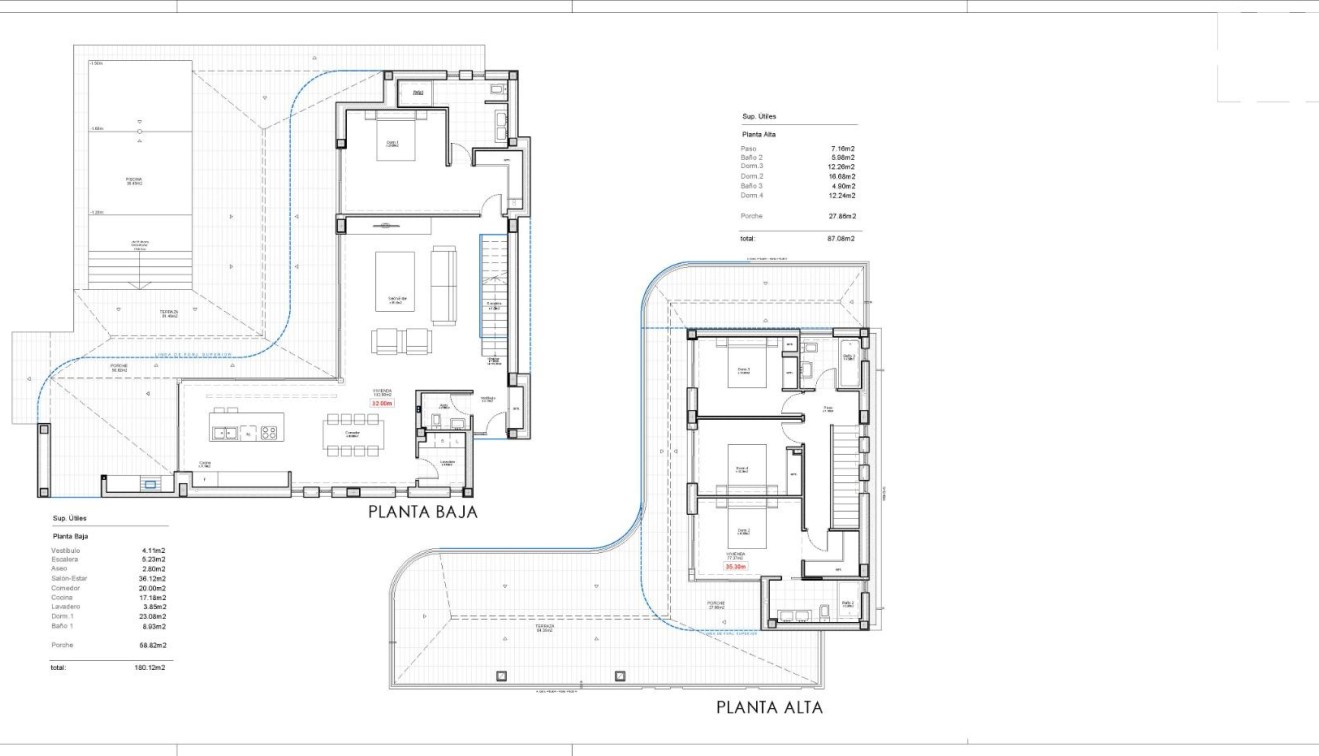
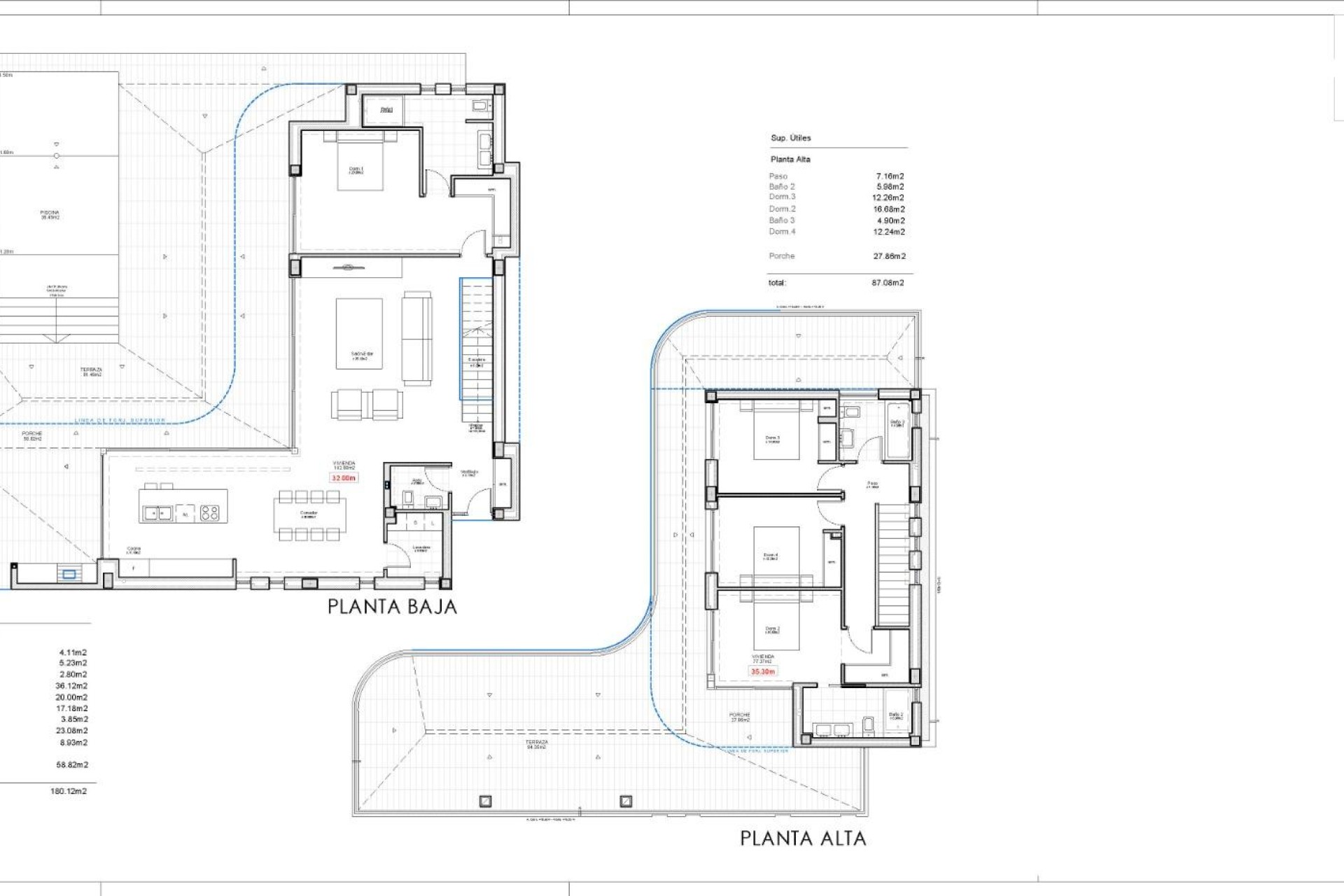
Espaciosa distribución interior para una vida elegante
La planta baja es el corazón de esta casa, con un amplio salón diáfano de 36 m² que conecta con una gran terraza exterior de 81 m². La cocina de alta gama y el comedor, de 20 m², están equipados con electrodomésticos de última generación, por lo que son ideales tanto para la vida diaria como para el entretenimiento. En la planta superior, la suite principal ofrece total privacidad con vestidor, baño en suite y acceso a una terraza privada. Tres dormitorios adicionales, cada uno con su propio cuarto de baño y terraza, ofrecen un lujoso confort para los miembros de la familia o los invitados.
Excepcional vida al aire libre y piscina infinita
Los espacios al aire libre están diseñados para la relajación y el entretenimiento, incluyendo una amplia terraza de 81 m² ideal para comer al aire libre o descansar bajo el sol mediterráneo. La terraza conduce a una impresionante piscina infinita que se funde con el horizonte, creando un oasis de paz. El cuidado jardín, repleto de plantas y árboles autóctonos, realza el ambiente sereno de la casa y proporciona privacidad adicional.
Características sostenibles y energéticamente eficientes
Esta propiedad está equipada con elementos sostenibles, como una avanzada bomba de calor aire-agua, calefacción por suelo radiante y aire acondicionado por conductos. Las ventanas y el aislamiento de alto rendimiento garantizan la eficiencia energética y el confort durante todo el año.
Ubicación privilegiada cerca de servicios clave
Aeropuerto de Alicante 90 km
Campo de golf La Sella: 15 km
Puerto de Moraira: 2 km
Centros Comerciales: 5 km
Experimente el lujo moderno y la tranquilidad en esta casa excepcional, perfectamente situada en la codiciada región de Moraira-Teulada.
291