Moderne luksusbolig i hjertet av Moraira-Teulada: Et moderne middelhavsresidens
Oppdag en fantastisk enebolig som ligger i den pittoreske byen Moraira-Teulada på Costa Blanca. Denne moderne eiendommen tilbyr en utsøkt kombinasjon av luksus, komfort og naturlig skjønnhet, og ligger på en sjenerøs tomt som gir både privatliv og panoramautsikt over det omkringliggende middelhavslandskapet. Moraira-Teulada er kjent for sin sjarmerende kystatmosfære, pulserende lokalkultur og enkel tilgang til viktige fasiliteter.
Arkitektonisk fortreffelighet med panoramautsikt
Dette arkitekttegnede hjemmet er et moderne mesterverk som smelter harmonisk sammen med de naturlige omgivelsene. Huset er bygget i armert betong med detaljer i tre, og har store glasspaneler som gir maksimalt med naturlig lys og en fantastisk utsikt over havet og det frodige grøntområdet. Huset er bygget på flere terrasser som utfyller tomtens naturlige helling og gir uhindret utsikt fra alle vinkler.
Romslig innredning for en elegant livsstil
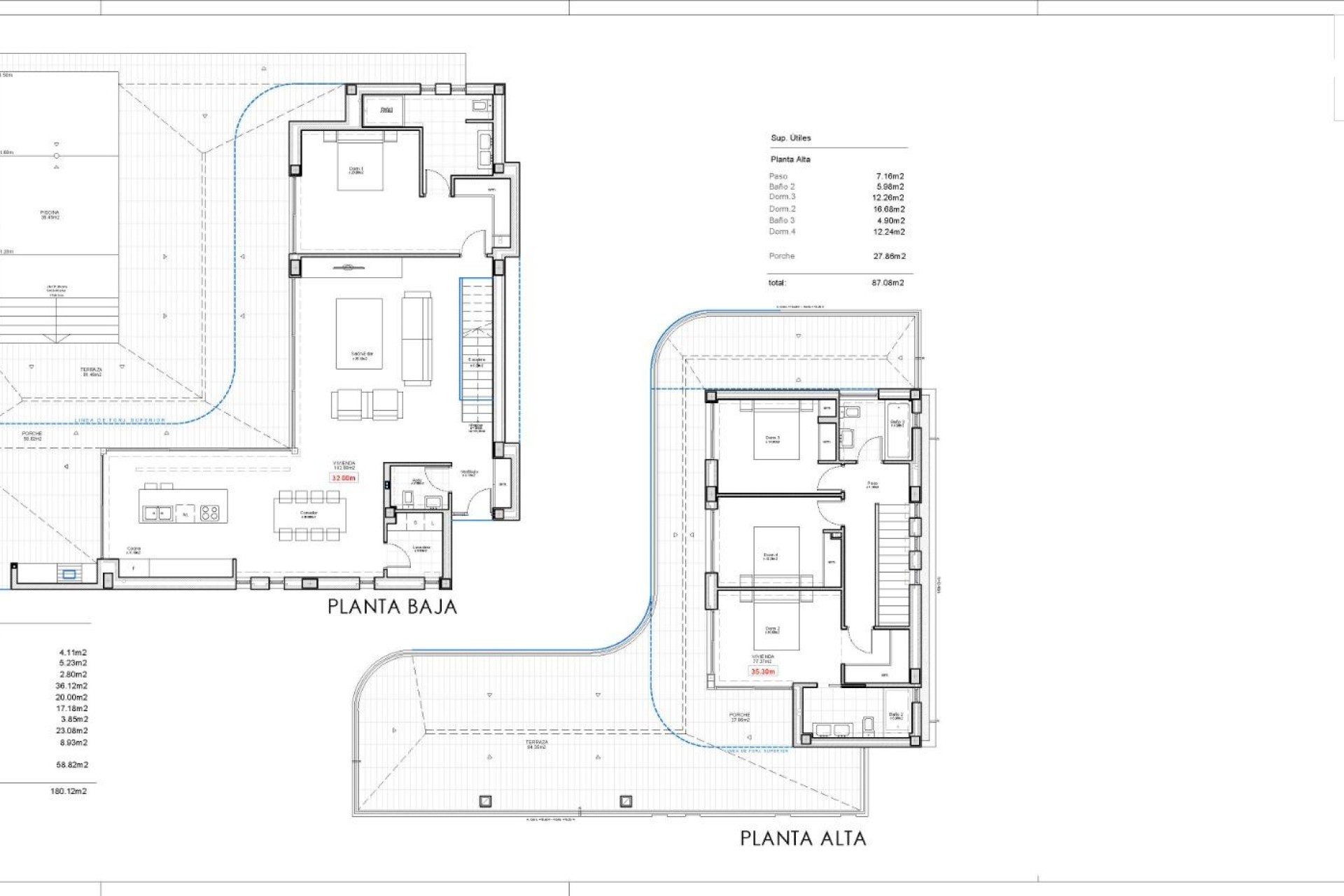
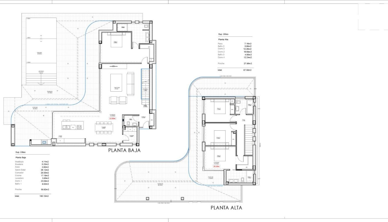
Første etasje er husets hjerte, med en romslig åpen stue på 36 m² som har forbindelse til en stor utendørsterrasse på 81 m². Det 20 m² store kjøkkenet og spisestuen er utstyrt med toppmoderne hvitevarer, noe som gjør det ideelt for både dagligliv og underholdning. I andre etasje ligger hovedsuiten med walk-in-closet, eget bad og utgang til en privat terrasse. Tre ekstra soverom, alle med eget bad og terrasse, gir luksuriøs komfort for familiemedlemmer eller gjester.
Eksepsjonelt utendørsliv og evighetsbasseng
Uteområdene er designet for avslapning og underholdning, inkludert en 81 m² stor terrasse som er ideell for uteservering eller avslapping i middelhavssolen. Terrassen fører til et fantastisk evighetsbasseng som smelter sammen med horisonten og skaper en fredelig oase. Den omhyggelig anlagte hagen, fylt med stedegne planter og trær, forsterker husets rolige atmosfære og gir ekstra privatliv.
Bærekraftige og energieffektive funksjoner
Denne eiendommen er utstyrt med bærekraftige funksjoner, inkludert en avansert luft-til-vann-varmepumpe, gulvvarme og kanalisert klimaanlegg. Vinduer og isolasjon med høy ytelse sørger for energieffektivitet og komfort året rundt.
Førsteklasses beliggenhet nær viktige fasiliteter
Alicante lufthavn: 90 km
La Sella golfbane: 15 km
Havnen i Moraira: 2 km
Kjøpesentre: 5 km
Opplev moderne luksus og ro i dette eksepsjonelle hjemmet, som ligger perfekt til i den ettertraktede regionen Moraira-Teulada.
291