Modern semi-detached house located in a quiet area of San Fulgencio, set on a plot with a private swimming pool and outdoor space designed for relaxation. The home has been designed so that the garden becomes a natural extension of the living area – large windows provide plenty of natural light and create bright, spacious interiors that feel open to the surroundings.
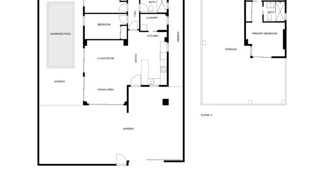
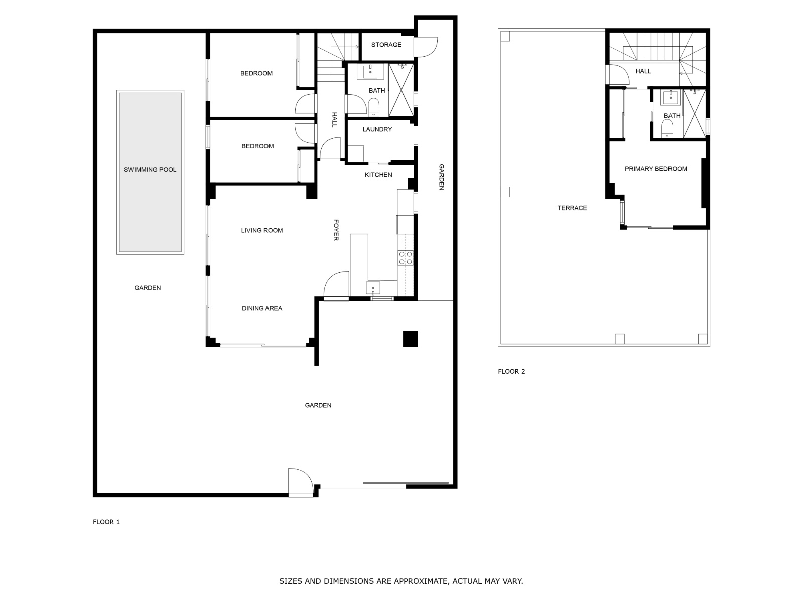
The property is distributed over two levels.
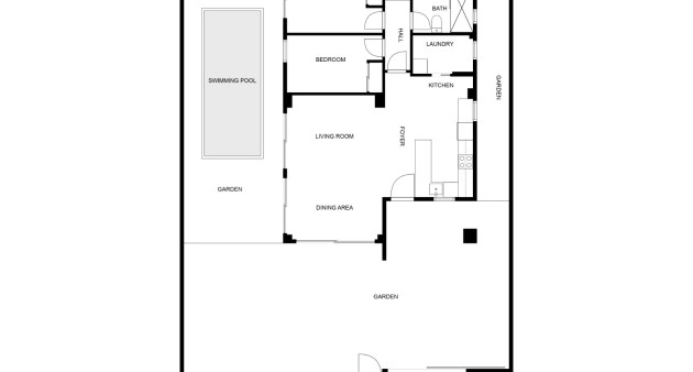
The ground floor features a spacious living room with an open-plan kitchen, with direct access to the garden. This level also includes two separate bedrooms, a bathroom accessed from the hallway, and a separate utility room intended for laundry and additional storage.
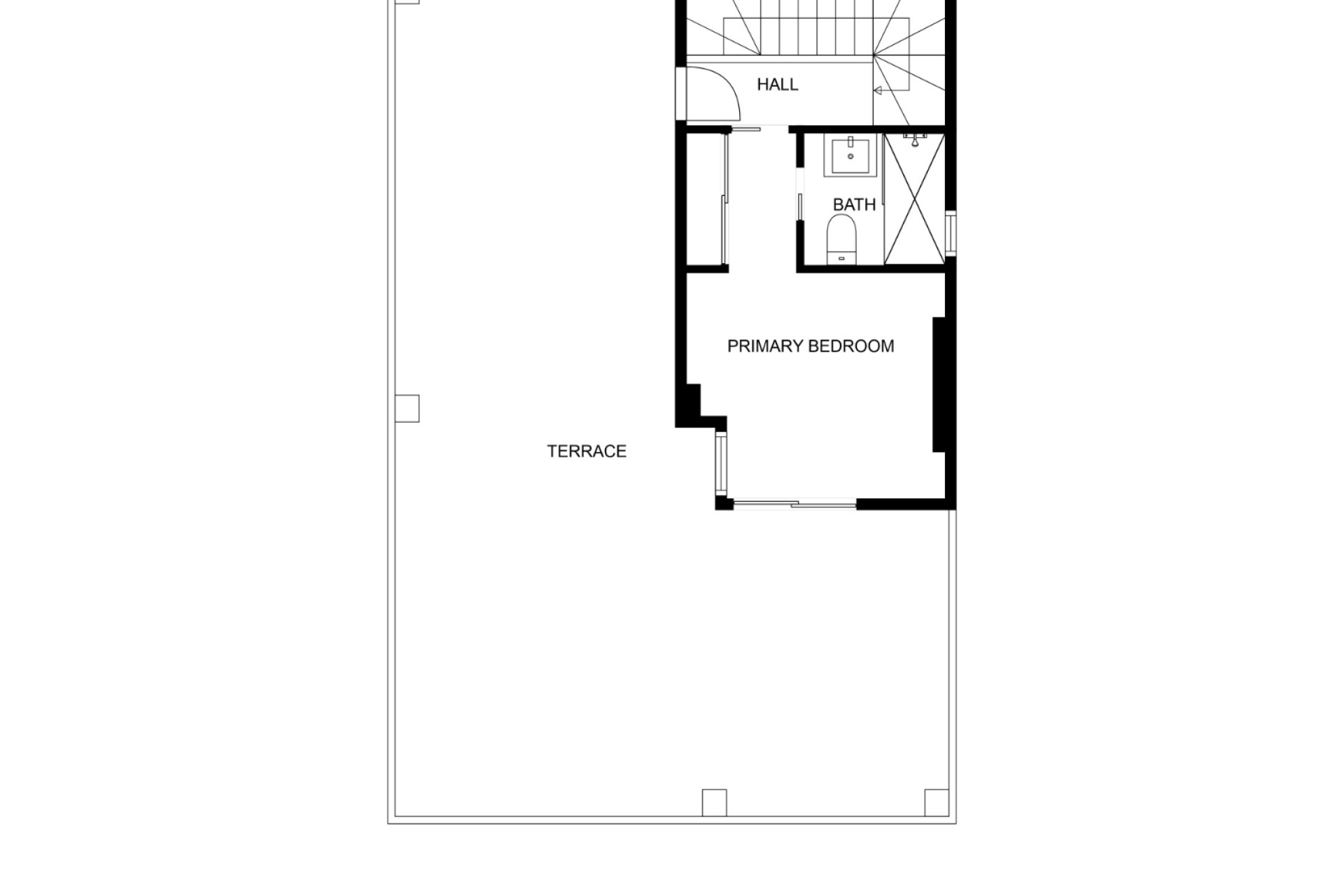
The first floor forms the private owners’ area, offering a bedroom with an en-suite bathroom and access to a large, sunny terrace, ideal for everyday relaxation.
The house was built in 2022, offering a modern standard and a functional layout.
The location combines everyday comfort with close proximity to nature — the property is situated approximately 5 km from the beach and around 30 km from Alicante–Elche Airport. Nearby you will find natural dunes, wide sandy beaches, and a peaceful residential environment.
This property is an excellent option both for those looking for a permanent home and for investors — its functional layout, contemporary architecture, and good location make it suitable for both purposes.
Meters
226m2Plot
129m2Bedrooms
3Bathrooms
2Pool
Yes2022
3
2
226m2
129m2
62m2
Yes
Reformed
271€