Ekskluzywna willa w stylu współczesnym w Sierra de Altea (północna Costa Blanca).
Nieruchomość zaprojektowana z myślą o klientach poszukujących nowoczesnej architektury, przestronności i widoków na Morze Śródziemne. Położona około 3 km od plaży w osiedlu Sierra de Altea.
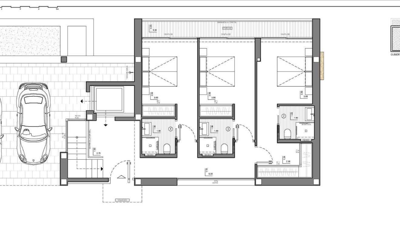
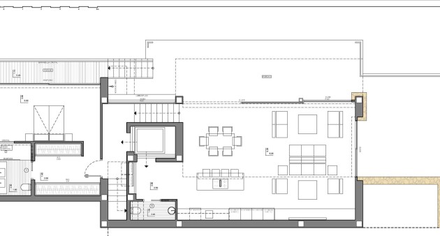
Willa rozciąga się na dwóch kondygnacjach i składa się z czterech sypialni z łazienkami, przestronnego salonu z jadalnią i kuchnią na otwartym planie oraz głównego tarasu z basenem bez krawędzi, który wtapia się w horyzont. Wszystkie główne pomieszczenia wychodzą na morze i mają bezpośredni dostęp na zewnątrz.
Willa posiada zadaszony garaż na dwa samochody z przygotowaniem do instalacji punktu ładowania samochodów elektrycznych, a także systemy aerotermiczne, automatykę domową, windę i panele słoneczne, zapewniające komfort i energooszczędność.
Ekskluzywna nieruchomość z wysokiej klasy wykończeniem i doskonałą lokalizacją w Altea, idealna dla klientów poszukujących domu gotowego do cieszenia się śródziemnomorskim stylem życia w najwyższej jakości.
Altea jest jednym z najbardziej urokliwych miast na Costa Blanca. Posiada również oficjalny tytuł Kulturalnej Stolicy Wspólnoty Walencji.
Altea cieszy się uprzywilejowaną lokalizacją, z morzem i plażą, a także górami i rzeką.
Altea ma ponad 8 km linii brzegowej, na której klify przeplatają się z małymi zatoczkami i odcinkami plaży na płaskim terenie.
Lotnisko w Alicante znajduje się 50 minut jazdy samochodem, a lotnisko w Walencji – 1,5 godziny drogi stąd.
291
Metry
245m2Działka
878m2Sypialnie
4Łazienki
4Basen
Tak4
4
245m2
878m2
Tak