Ciudad Quesada - Rojales. Alicante Bungalow - Nybygg

Ref: SP-12835

414.000€

Ciudad Quesada - Rojales. Alicante Bungalow - Nybygg

  • Boareal

    95m2
  • Tomt

    150m2
  • Soverom

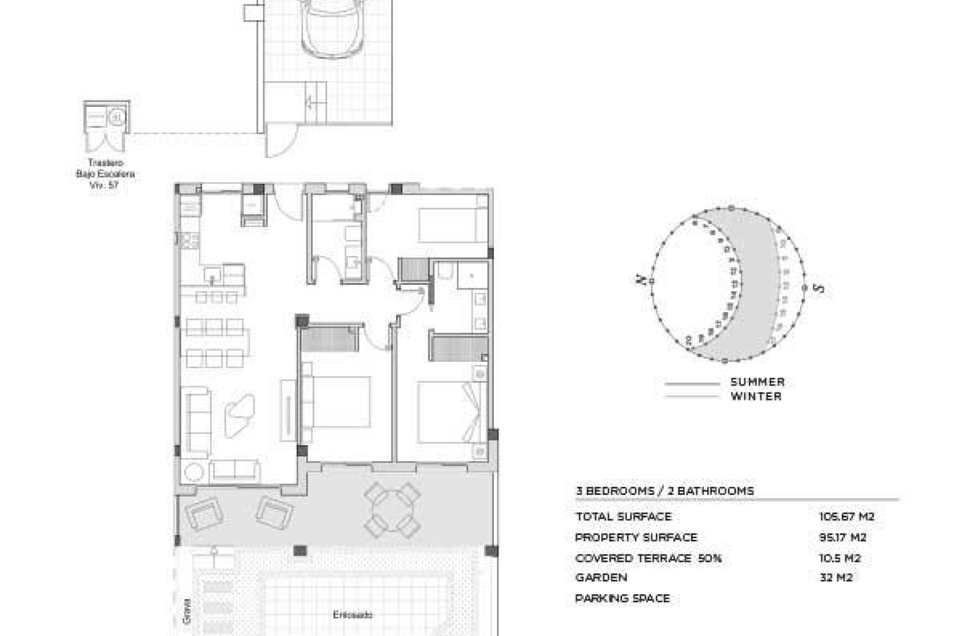
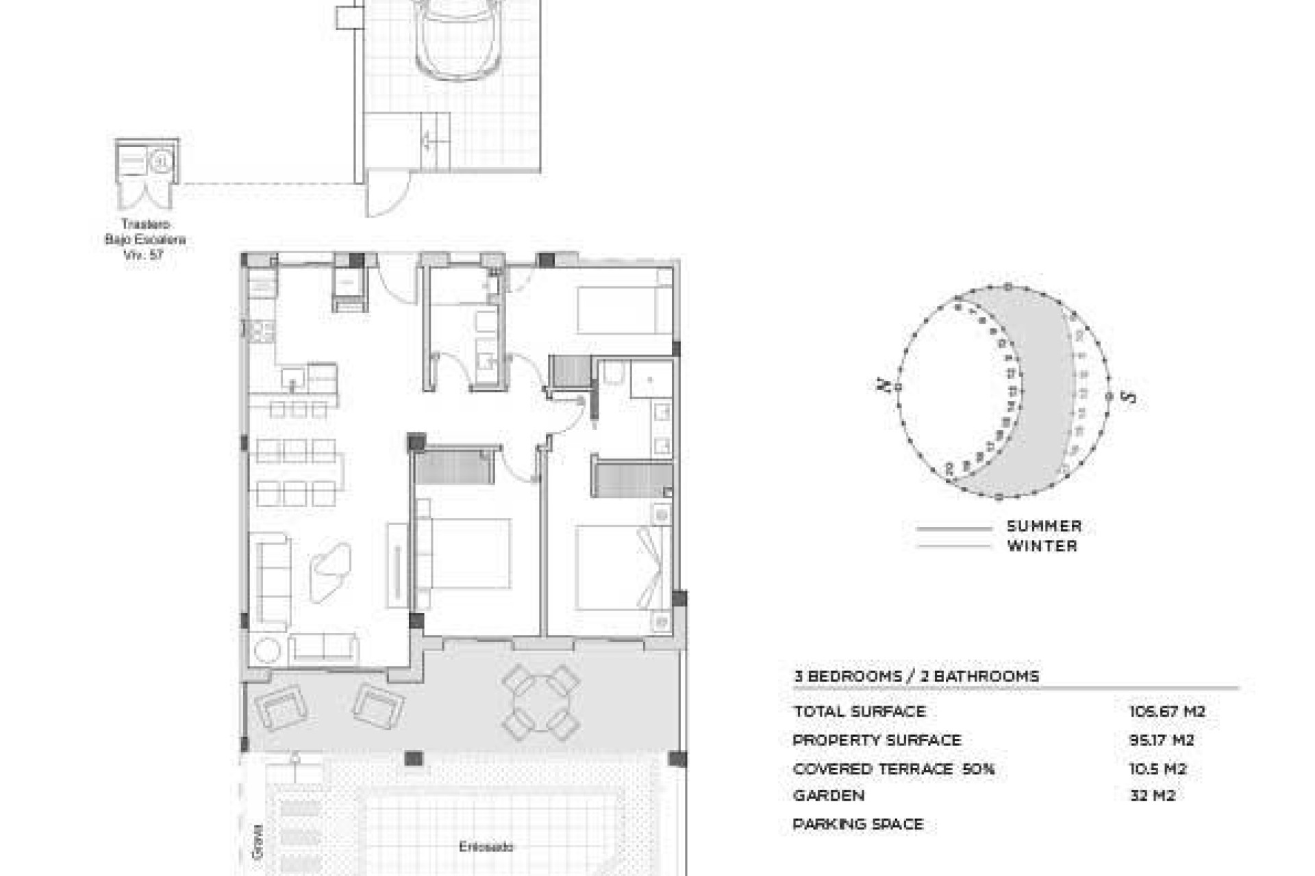
    3
  • Bad

    2
  • Svømmebasseng

    Ja
Soverom Soverom:

3

Bad Bad:

2

Boareal Boareal:

95m2

Tomt Tomt:

150m2

Basseng Basseng:

Ja

Hage
Communal Pool
Gated
Terrace: 20 Msq.
Near Schools
Near Commercial Center
Double Bedrooms: 3
Number of Parking Spaces: 1
Location: Rural, Urbanisation
Air Conditioning: Pre-Installed
Useable Build Space: 85 Msq.
Parking - Space
Beach: 6000 Meters
Storage / Trastero
Kine Tronstad

Kine Tronstad

Eier / CEO
+34 618 100 733 kine@costablancabolig.com

Plassering

Send en forespørsel

Responsable del tratamiento: Costablancabolig, SL, Finalidad del tratamiento: Gestión y control de los servicios ofrecidos a través de la página Web de Servicios inmobiliarios, Envío de información a traves de newsletter y otros, Legitimación: Por consentimiento, Destinatarios: No se cederan los datos, salvo para elaborar contabilidad, Derechos de las personas interesadas: Acceder, rectificar y suprimir los datos, solicitar la portabilidad de los mismos, oponerse altratamiento y solicitar la limitación de éste, Procedencia de los datos: El Propio interesado, Información Adicional: Puede consultarse la información adicional y detallada sobre protección de datos Aquí.
WhatsApp