NOVOSTAVBA REZIDENČNÍHO KOMPLEXU V ROJALES
Novostavba Rezidenční komplex apartmánů bungalovů, řadových domů a dvojvily v Rojales.
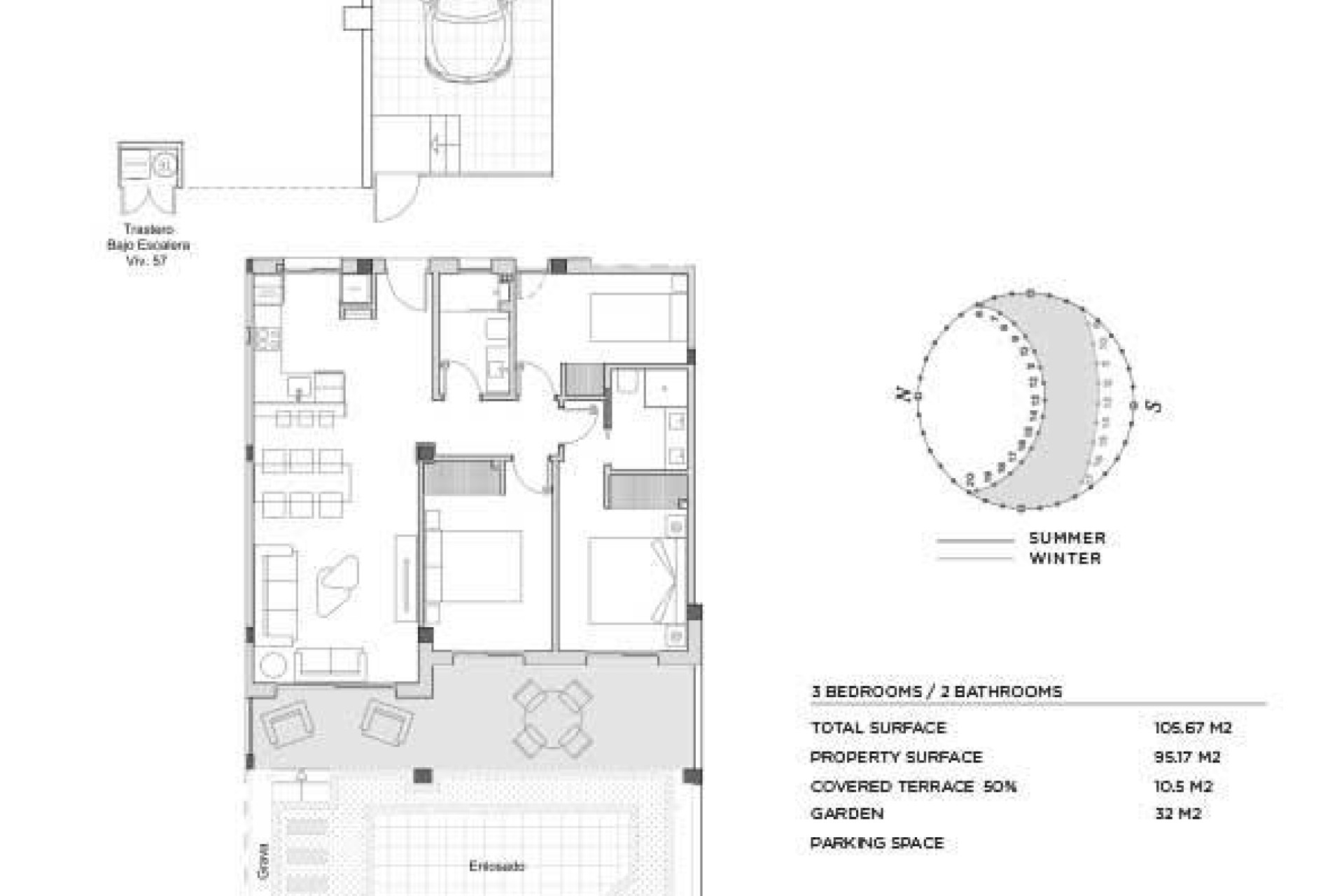
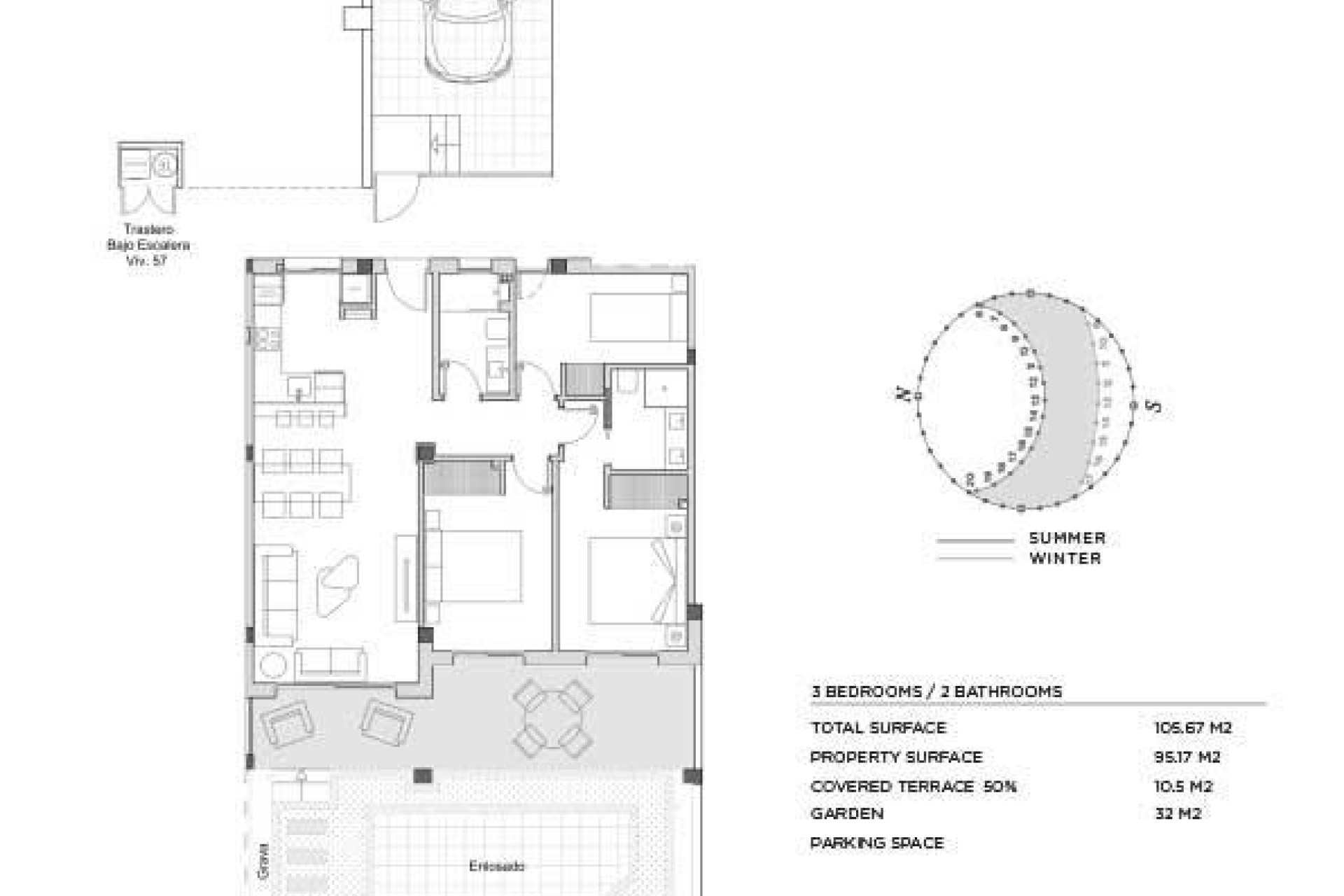
Moderní novostavba apartmánů bungalovů se 2 a 3 ložnicemi na 2 podlažích: přízemí s vlastní zahradou a první patro s vlastní střešní terasou.
Moderní řadové domy postavené na 2 podlažích mají 3 ložnice, 2 koupelny, otevřenou kuchyň a obývací část, vestavěné skříně, terasy, vlastní zahradu a solárium.
Moderní dvojvily postavené na 2 podlažích a mají 3 ložnice, 2 a 3 koupelny, otevřenou kuchyň a obývací část, vestavěné skříně, terasy, soukromou zahradu a solárium.
Soukromá rezidence se zelení, bazénem a soukromým parkovištěm.
Se všemi potřebnými službami na dosah ruky: supermarkety, golfová hřiště, restaurace, zdravotní střediska.
Rojales je tradičně zemědělské městečko, které se díky své strategické poloze v blízkosti silnice N-332 a AP-7 stalo jedním z oblíbených cílů ve vnitrozemí Vega Baja.
Díky výborné dostupnosti se za 20 minut dostanete na letiště v Alicante a za 15 minut si můžete užívat pláže v Guardamaru, La Mata nebo Torrevieja.
Rojales nabízí bohatou a rozmanitou gastronomickou nabídku a zábavu a má prestižní golfové hřiště La Marquesa Golf.
Rojales je krásná vesnice se všemi službami, jako jsou supermarkety, lékárny, banky, restaurace a přírodní park, které se nacházejí v těsné blízkosti vil.
La Marquesa Golf je jedno z nejhistoričtějších hřišť na pobřeží Costa Blanca, má 18 jamek a jedna z nich je stejně zvláštní jako 17. jamka na hřišti Sawgrass. Tradice, kvalita a zkušenosti se zde spojují, aby golfistům, kteří nás navštíví, nabídli jedinečný zážitek plný historie, kde.
291