Exclusieve halfvrijstaande villa's en appartementen in Bigastro, Alicante
Huizen in mediterrane stijl in het hart van de Vega Baja
Dit nieuwe wooncomplex in Bigastro, een charmant dorp in de Vega Baja, biedt 8 quads en 2 halfvrijstaande villa's ontworpen in een elegante mediterrane stijl. Gelegen in een rustige en goed bereikbare omgeving, zijn deze woningen ideaal voor wie op zoek is naar een perfecte combinatie van comfort, privacy en de nabijheid van alle voorzieningen.
Ruim en functioneel ontwerp
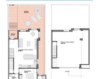
Elke woning is ontworpen om ruimte en comfort te bieden, met 4 slaapkamers en 3 badkamers verdeeld over 2 verdiepingen.
Begane grond: Een slaapkamer, badkamer, open keuken naar de woonkamer, wasruimte en toegang tot de tuin.
Bovenverdieping: 3 slaapkamers, waaronder de hoofdslaapkamer met badkamer ensuite.
Privé solarium van 40 m², ideaal om te genieten van het mediterrane klimaat en het open uitzicht.
Prive-tuin met de mogelijkheid van een zwembad, beschikbaar tegen een meerprijs.
Privégarage van meer dan 60 m² in de kelder, met directe toegang tot de woning.
Bigastro: Rust en Verbondenheid
Bigastro is een gezellige gemeente in het zuiden van Alicante, bekend om zijn rustige omgeving en zijn uitstekende verbinding met de belangrijkste steden en stranden van de Costa Blanca.
Orihuela - 5 km (5 minuten met de auto).
Guardamar stranden - 25 km (15 minuten met de auto).
Torrevieja - 30 km (25 minuten met de auto).
Vliegveld Alicante - 55 km (30 minuten met de auto).
Winkelcentrum Zenia Boulevard - 30 km (25 minuten met de auto).
De gemeente beschikt over alle essentiële voorzieningen, zoals supermarkten, scholen, sportcentra en een rijk gastronomisch aanbod, waardoor het een perfecte plek is, zowel voor permanente bewoning als om te genieten van een tweede huis.
Ontdek je nieuwe huis aan de Costa Blanca
Als je op zoek bent naar een moderne en ruime woning op een rustige maar goed verbonden locatie, dan zijn deze villa's en quads in Bigastro de ideale keuze. Neem vandaag nog contact met ons op voor meer informatie of om een bezichtiging te regelen.
Meters
198m2Perceel
113m2Slaapkamers
4Badkamers
34
3
198m2
113m2