Exclusivas Villas Pareadas y Quads de Obra Nueva en Bigastro, Alicante
Viviendas de Estilo Mediterráneo en el Corazón de la Vega Baja
Este nuevo complejo residencial en Bigastro, un encantador pueblo de la Vega Baja, ofrece 8 quads y 2 pareados diseñados con un elegante estilo mediterráneo. Ubicadas en una zona tranquila y bien comunicada, estas viviendas son ideales para quienes buscan una combinación perfecta de confort, privacidad y proximidad a todos los servicios.
Diseño Espacioso y Funcional
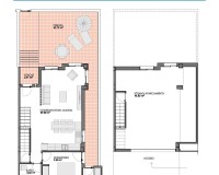
Cada vivienda ha sido diseñada para ofrecer amplitud y comodidad, con 4 dormitorios y 3 baños distribuidos en 2 plantas.
Planta baja: Un dormitorio, baño completo, cocina americana abierta al salón, lavadero y acceso al jardín.
Planta alta: 3 dormitorios, incluido el principal con baño ensuite.
Solárium privado de 40 m², ideal para disfrutar del clima mediterráneo y de las vistas abiertas.
Jardín privado con opción de piscina, disponible por un costo adicional.
Garaje privado de más de 60 m² en sótano, con acceso directo a la vivienda.
Bigastro: Tranquilidad y Conectividad
Bigastro es un acogedor municipio del sur de Alicante, conocido por su entorno tranquilo y su excelente conexión con las principales ciudades y playas de la Costa Blanca.
Orihuela – 5 km (5 minutos en coche).
Playas de Guardamar – 25 km (15 minutos en coche).
Torrevieja – 30 km (25 minutos en coche).
Aeropuerto de Alicante – 55 km (30 minutos en coche).
Centro Comercial Zenia Boulevard – 30 km (25 minutos en coche).
El municipio cuenta con todos los servicios esenciales, como supermercados, colegios, centros deportivos y una rica oferta gastronómica, lo que lo convierte en un lugar perfecto tanto para residencia permanente como para disfrutar de una segunda vivienda.
Descubra Su Nuevo Hogar en la Costa Blanca
Si busca una vivienda moderna y espaciosa en una ubicación tranquila pero bien conectada, estas villas y quads en Bigastro son la opción ideal. Contáctenos hoy mismo para más información o para agendar una visita.
Metros
198m2Terreno
113m2Habitaciones
4Baños
34
3
198m2
113m2