Maisons neuves à seulement 200 mètres de la plage à Puerto de Mazarrón
Une vie exclusive sur la côte de la Costa Cálida
Découvrez un nouveau complexe résidentiel de maisons modernes à Puerto de Mazarrón, situé à seulement 200 mètres de la magnifique Playa Negra. Situé dans l'une des zones côtières les plus prisées de la région de Murcie, ce projet offre une occasion exceptionnelle de profiter de la vie méditerranéenne à proximité de la mer, des commodités essentielles et d'un environnement naturel.
Puerto de Mazarrón est connu pour ses plages magnifiques, ses eaux cristallines, son charmant port de plaisance et son atmosphère détendue. Avec d'excellents services, des possibilités de loisirs en plein air et un climat chaud toute l'année, c'est une destination idéale pour vivre à l'année ou passer des vacances.
Design moderne et agencements fonctionnels
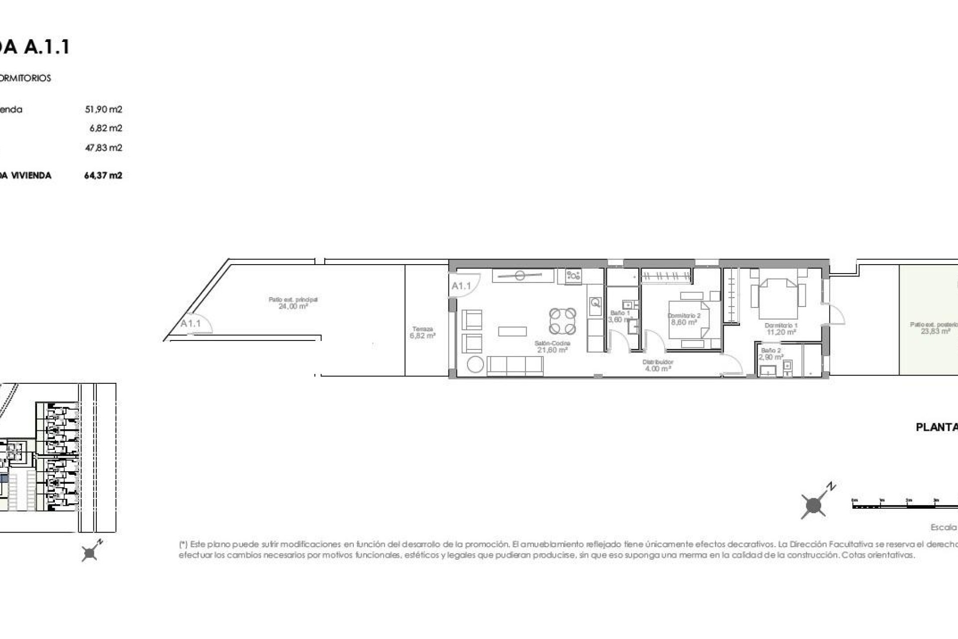
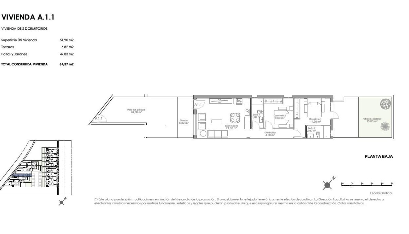
Ce projet exclusif se compose de 30 maisons contemporaines comprenant 2 chambres et 1 ou 2 salles de bains, conçues avec soin pour offrir confort, style et efficacité. Le complexe de faible hauteur comprend des logements au rez-de-chaussée avec terrasses et jardins privés, ainsi que des logements au premier étage avec terrasses et solariums privés sur le toit. Les maisons disposent de places de parking privées soit sur la propriété, soit au sein de la résidence.
Les maisons sont orientées de manière à maximiser la lumière naturelle, avec des espaces de vie ouverts, de grandes fenêtres et des finitions haut de gamme. La première phase propose des maisons personnalisables avec des agencements fonctionnels qui peuvent être adaptés à votre style de vie.
Les logements du rez-de-chaussée comprennent un jardin privé, un patio arrière et un parking sur la parcelle ou un parking communautaire.
Les logements du dernier étage offrent un accès privé au rez-de-chaussée, une terrasse au premier étage et un solarium sur le toit, ainsi qu'un parking attribué.
Les options supplémentaires comprennent des piscines privées sur les terrasses du rez-de-chaussée ou des jacuzzis sur les solariums.
Spécifications de haute qualité
Chaque propriété comprend
Porte d'entrée renforcée
Pré-installation pour la climatisation canalisée
Salles de bains complètes avec meubles, miroir et parois de douche
Espaces extérieurs conçus pour les barbecues, les pergolas et les zones de détente
Cette communauté résidentielle offre un environnement sûr, familial et établi, à quelques pas des supermarchés, des écoles, des services médicaux, des parcs et de la plage.
Emplacement privilégié à Puerto de Mazarrón
Distances vers les principaux points d'intérêt
Playa Negra 0,2 km
Port de plaisance de Mazarrón 2 km
Centre commercial Mazarrón Park 5 km
Cartagena 35 km
Ville de Murcie 70 km
Aéroport de Murcie Corvera 45 km
Parcours de golf Camposol et Hacienda del Álamo 25-35 km
Profitez des sports nautiques, de la randonnée et du vélo dans la Sierra de las Moreras toute proche, et découvrez le meilleur du style de vie de la Costa Cálida.
Faites de la Méditerranée votre chez-vous
Ne manquez pas l'occasion d'acquérir une propriété neuve à quelques pas de la plage à Puerto de Mazarrón. Contactez-nous dès aujourd'hui pour connaître les disponibilités, obtenir des détails et prendre rendez-vous pour une visite.
291