VILLA DE LUJO DE NUEVA CONSTRUCCIÓN EN CUMBRE DEL SOL
Cumbre del Sol es un lugar donde se puede disfrutar tanto de la naturaleza como del sol y el mar. Este chalet de lujo ofrece tranquilidad y confort para que el propietario pueda relajarse tranquilamente con unas increíbles vistas al mar. ¿Podría ser este su futuro hogar?
El diseño de la villa de nueva construcción combina de forma elegante y funcional una arquitectura verdaderamente moderna. En su fachada, caracterizada por grandes figuras geométricas creadas a base de líneas rectas y forma de cubos, domina el color blanco, que confiere a la villa un diseño elegante a la par que minimalista. Su jardín, de estilo 100% mediterráneo, cuenta con muros de piedra que ayudan a integrar la villa con su entorno.
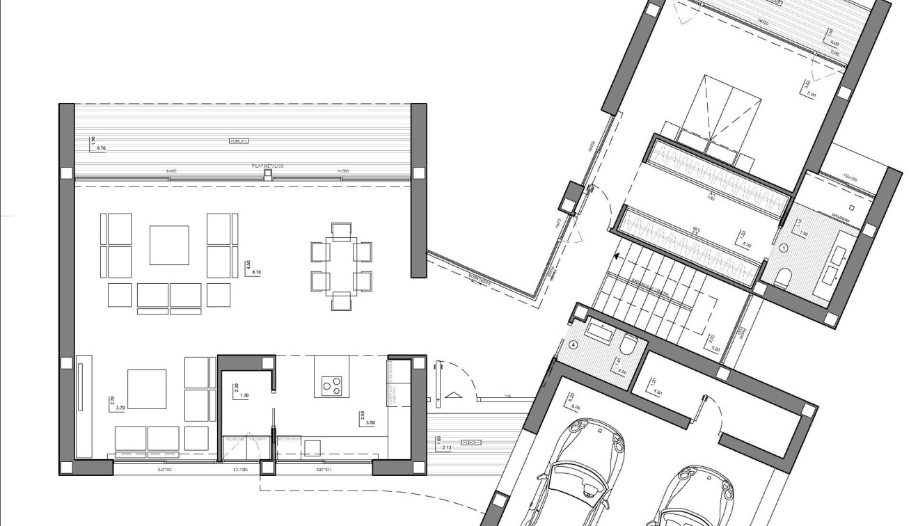
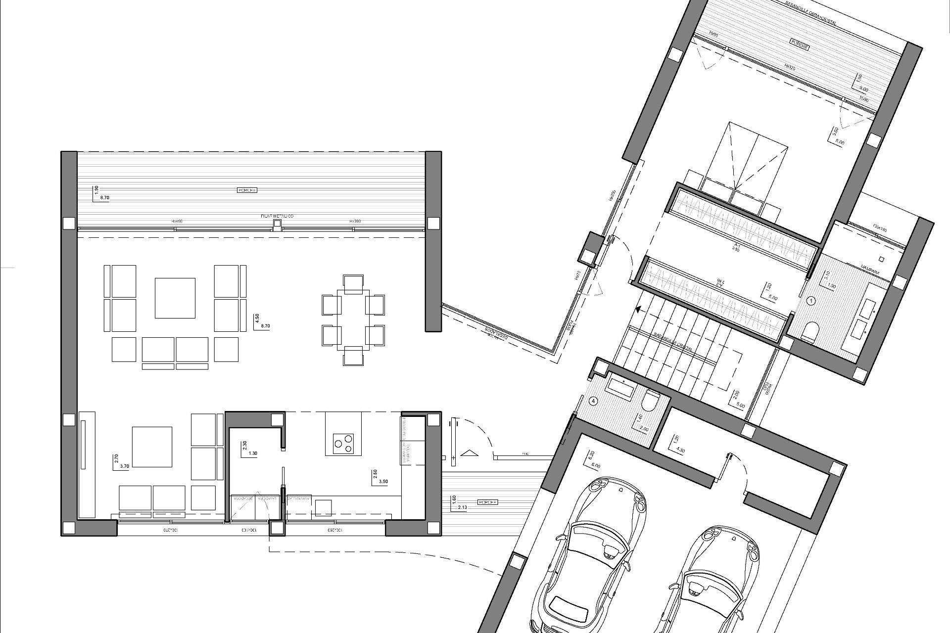
La zona de estar se encuentra en la misma planta. Una espaciosa cocina con isla central y equipada con electrodomésticos de primeras marcas, un gran salón y terraza con unas impresionantes vistas al mar Mediterráneo.
El salón tiene un diseño muy cálido y acogedor. Consta de una gran estancia, que podría dividirse en dos habitaciones para mayor privacidad.
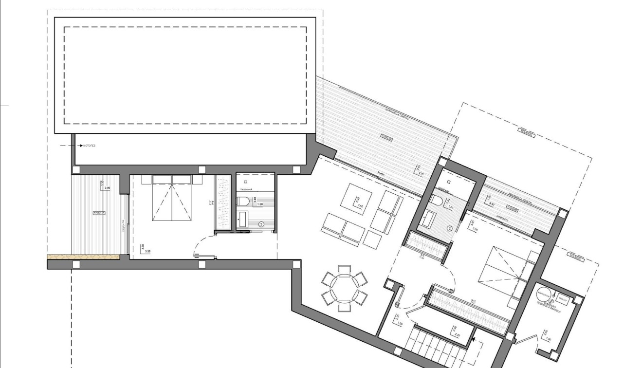
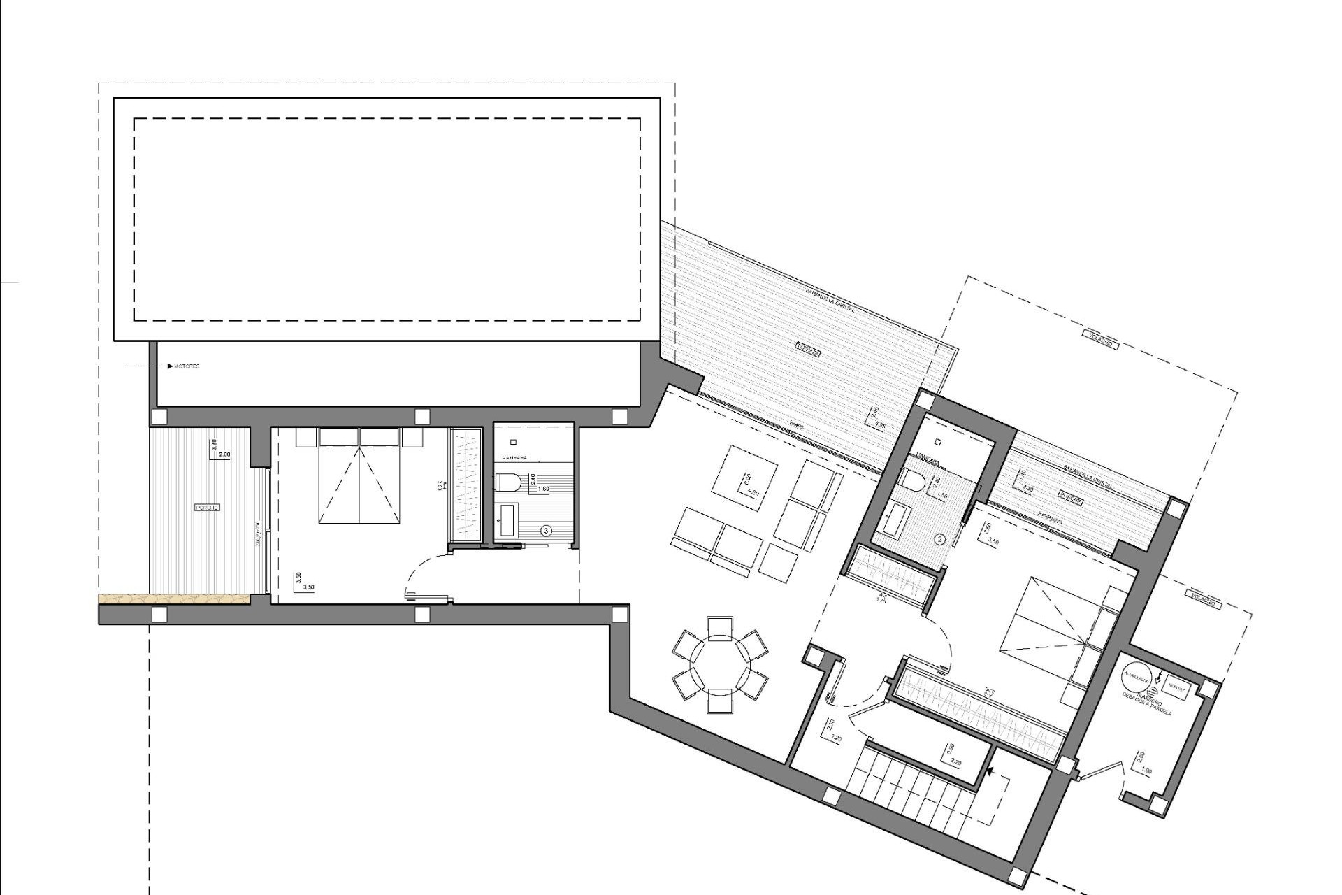
En la misma planta se encuentra la suite principal con baño propio y terraza privada, donde podrá disfrutar del buen tiempo y de las vistas al mar desde la privacidad que le da estar en su propia habitación.
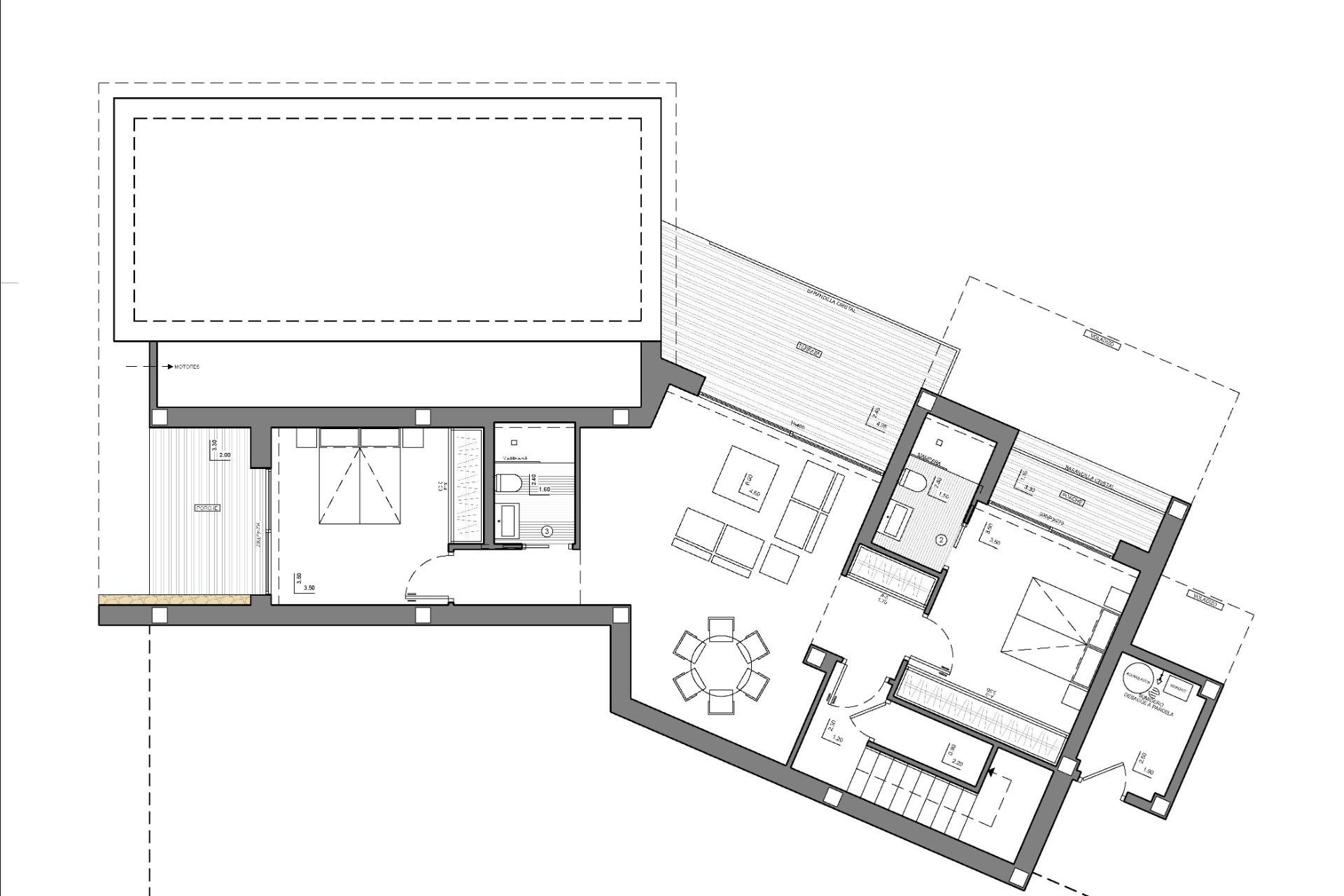
En la planta inferior hay dos amplios dormitorios, cada uno con su propio baño y terraza, donde poder disfrutar del aire libre. También hay una pequeña sala de estar en esta planta, donde podrá leer, meditar o simplemente relajarse.
La zona de terraza está coronada por una piscina infinita, donde podrá aprovechar al máximo el sol y las espectaculares vistas. Un lugar ideal para tomar un aperitivo, disfrutar de una barbacoa con amigos y familiares o simplemente echar una siesta al sol.
291