Apartamentos de nueva construcción en Cumbre del Sol Benitatxell, entre Jávea y Moraira
Vida residencial exclusiva en la Costa Blanca
Situado en la prestigiosa zona de Cumbre del Sol, en Benitatxell, entre Jávea y Moraira, este moderno complejo de apartamentos le invita a disfrutar de la Costa Blanca desde una perspectiva única. Rodeado de naturaleza y con vistas al Mediterráneo, es la opción ideal para quienes buscan una segunda residencia junto al mar o un hogar tranquilo durante todo el año con servicios de calidad cerca.
Cumbre del Sol es un exclusivo enclave residencial conocido por sus impresionantes acantilados, calas escondidas y vistas panorámicas al mar. La zona cuenta con supermercados, restaurantes, instalaciones deportivas, un centro ecuestre y el renombrado colegio Lady Elizabeth, lo que la hace perfecta para familias y compradores internacionales.
Diseño moderno con privacidad y vistas abiertas
El complejo consta de edificios de baja densidad con solo cinco apartamentos por bloque, lo que garantiza la privacidad y la tranquilidad. La arquitectura combina un diseño moderno, funcional y sostenible con líneas limpias y espacios abiertos que maximizan la luz natural.
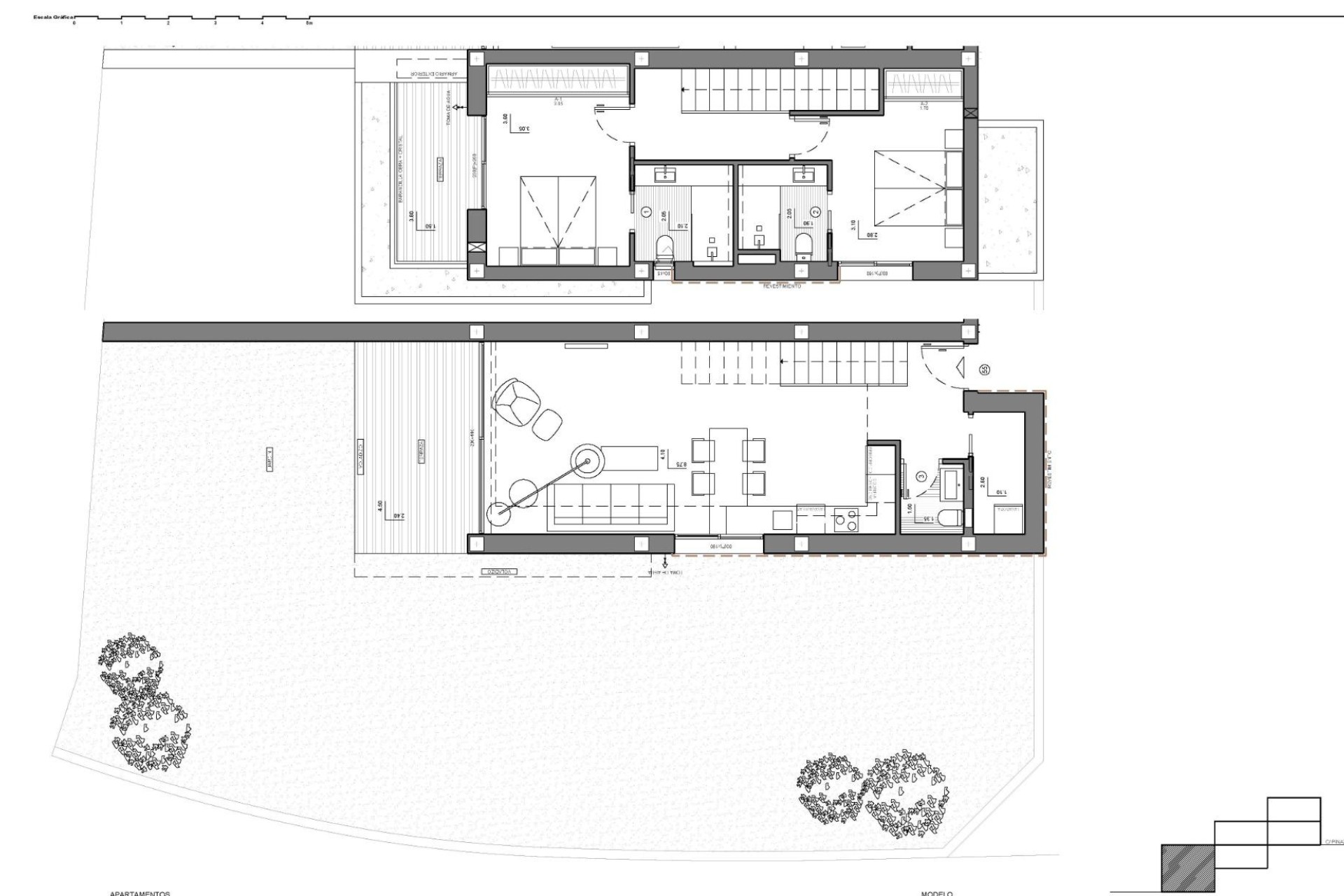
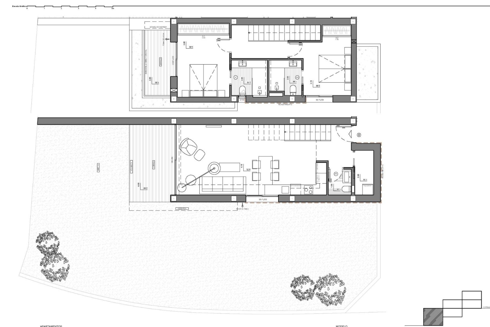
Los compradores pueden elegir entre apartamentos de 2 y 3 dormitorios con 2 baños, cocina abierta y amplias zonas de estar. Dependiendo del modelo, las propiedades incluyen grandes terrazas en las plantas intermedias, jardines privados en las plantas bajas o exclusivos soláriums en la azotea para los áticos. Todas las viviendas ofrecen vistas abiertas que mejoran la conexión con el paisaje mediterráneo circundante.
Acabados de alta calidad y eficiencia energética
Cada apartamento está construido con materiales de primera calidad y sistemas avanzados de eficiencia energética, incluyendo aire acondicionado por conductos, calefacción por suelo radiante, ventilación permanente y un sistema aerotérmico híbrido. La carpintería exterior de aluminio con rotura de puente térmico garantiza un excelente aislamiento y confort durante todo el año.
Excelentes zonas comunes y entorno natural
Los residentes pueden disfrutar de varias piscinas comunitarias, jardines paisajísticos, un club social, parque infantil y zonas de aparcamiento comunitarias. El complejo está integrado en el entorno natural de Cumbre del Sol, ofreciendo acceso directo a rutas de senderismo y ciclismo.
Algunas de las calas más bonitas de la costa alicantina se encuentran a pocos minutos, mientras que las encantadoras localidades de Moraira, Jávea, Altea y Calpe son fácilmente accesibles.
Distancias a puntos de interés clave
Playa y calas 2 km
Moraira 6 km
Jávea 7 km
Club de golf de Jávea 5 km
Aeropuerto de Alicante 95 km
Aeropuerto de Valencia 120 km
Descubra su refugio mediterráneo
Esta nueva promoción en Cumbre del Sol ofrece privacidad, vistas al mar y comodidad moderna en una de las zonas más deseadas de la Costa Blanca. Póngase en contacto con nosotros hoy mismo para obtener más información y asegurarse su nuevo apartamento junto al Mediterráneo.
291