Novostavby bytů v Cumbre del Sol Benitatxell mezi Javea a Moraira
Exkluzivní bydlení na pobřeží Costa Blanca
Tento moderní bytový komplex se nachází v prestižní oblasti Cumbre del Sol v Benitatxell, mezi Javea a Moraira, a zve vás k prožití pobytu na pobřeží Costa Blanca z jedinečné perspektivy. Obklopen přírodou a s výhledem na Středozemní moře je ideální volbou pro ty, kteří hledají druhé bydlení u moře nebo klidný domov po celý rok s kvalitními službami v okolí.
Cumbre del Sol je exkluzivní rezidenční enkláva známá svými úchvatnými útesy, skrytými zátokami a panoramatickým výhledem na moře. V okolí se nacházejí supermarkety, restaurace, sportovní zařízení, jezdecké centrum a renomovaná škola Lady Elizabeth School, což z něj činí ideální místo pro rodiny a mezinárodní kupce.
Moderní design s soukromím a otevřenými výhledy
Komplex se skládá z budov s nízkou hustotou, pouze s pěti byty v každém bloku, což zajišťuje soukromí a klid. Architektura kombinuje moderní, funkční a udržitelný design s čistými liniemi a otevřenými prostory, které maximalizují přirozené světlo.
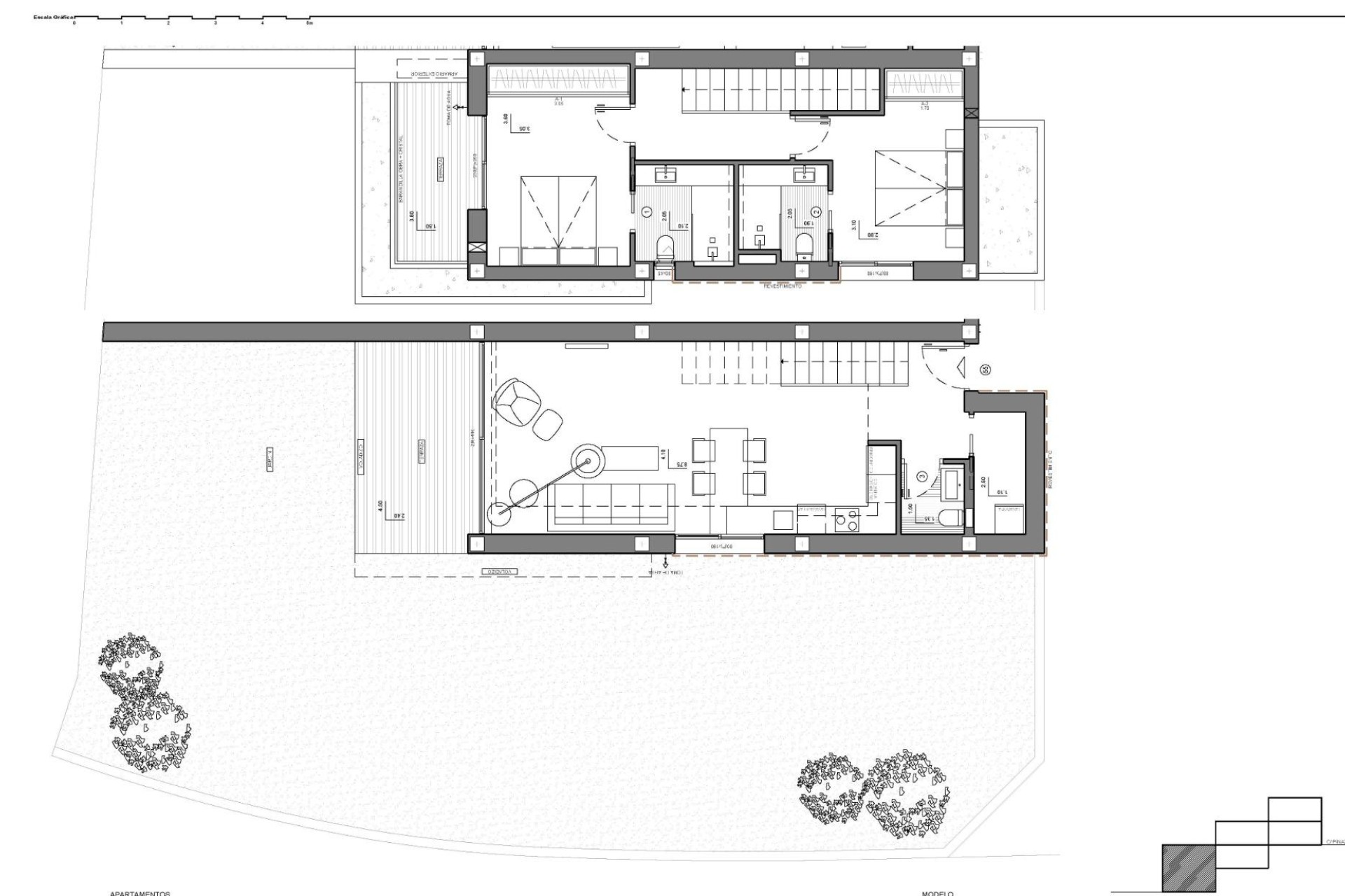
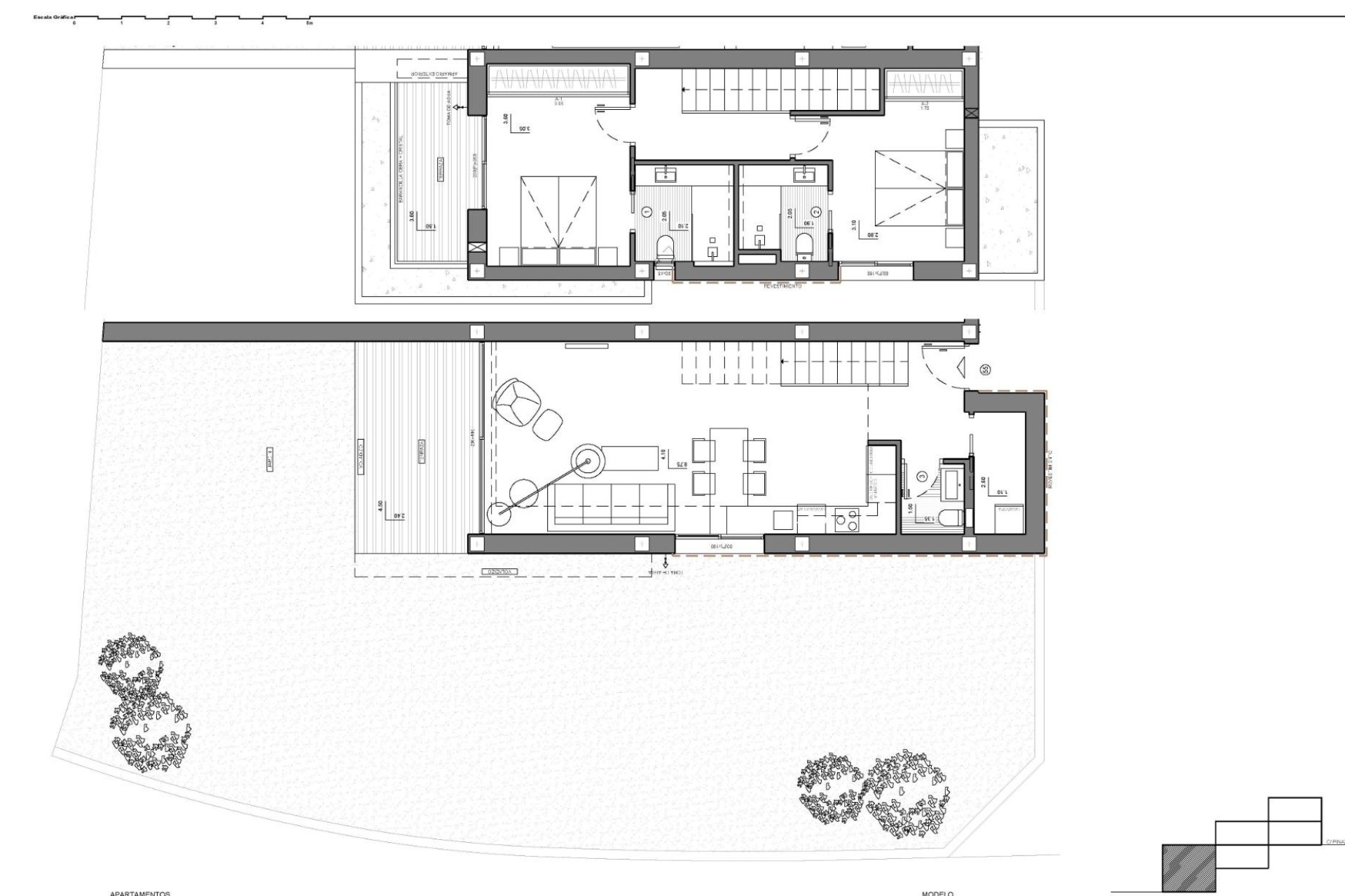
Kupující si mohou vybrat mezi byty se 2 nebo 3 ložnicemi, 2 koupelnami, otevřenou kuchyní a prostornými obývacími prostory. V závislosti na modelu zahrnují nemovitosti velké terasy v mezipatře, soukromé zahrady v přízemí nebo exkluzivní střešní solária pro penthousy. Všechny domy nabízejí otevřené výhledy, které umocňují spojení s okolní středomořskou krajinou.
Vysoce kvalitní povrchové úpravy a energetická účinnost
Každý byt je postaven z prvotřídních materiálů a vybaven pokročilými energeticky účinnými systémy, včetně klimatizace s potrubím, podlahového vytápění, trvalého větrání a hybridního aerotermálního systému. Hliníkové vnější truhlářské výrobky s tepelnou izolací zajišťují vynikající izolaci a komfort po celý rok.
Vynikající společné prostory a přírodní okolí
Obyvatelé mohou využívat několik společných bazénů, upravené zahrady, společenský klub, dětské hřiště a společná parkoviště. Komplex je integrován do přírodního prostředí Cumbre del Sol a nabízí přímý přístup k turistickým a cyklistickým trasám.
Některé z nejkrásnějších zátok na pobřeží Alicante jsou vzdáleny jen několik minut, zatímco okouzlující městečka Moraira, Javea, Altea a Calpe jsou snadno dostupná.
Vzdálenosti od hlavních zajímavostí
Pláž a zátoky 2 km
Moraira 6 km
Javea 7 km
Javea Golf Club 5 km
Letiště Alicante 95 km
Letiště Valencie 120 km
Objevte své středomořské útočiště
Tento nově postavený komplex v Cumbre del Sol nabízí soukromí, výhled na moře a moderní komfort v jedné z nejžádanějších oblastí Costa Blanca. Kontaktujte nás ještě dnes pro více informací a zajistěte si svůj nový byt u Středozemního moře.
291