NEUGEBAUTE VILLA MIT MEERBLICK IN CUMBRE DEL SOL
Ein Haus mit einem klaren Konzept, um eine Verschmelzung zwischen drinnen und draußen zu schaffen, indem man offene, helle und funktionelle Räume erhält. Das Wohnzimmer geht in die Terrasse über und lädt dazu ein, das wunderbare mediterrane Klima zu genießen, das uns fast 300 Sonnentage im Jahr beschert.
Die Villa ist in offenen L-förmigen Modulen konzipiert und umschließt den Hauptgarten, in dem ein beeindruckender Infinity-Pool mit dem Meer verschmilzt. Ein nach außen offener Raum, der zum Genießen der Sonne und des mediterranen Klimas einlädt, aber so ausgerichtet ist, dass ein Maximum an Privatsphäre erreicht wird.
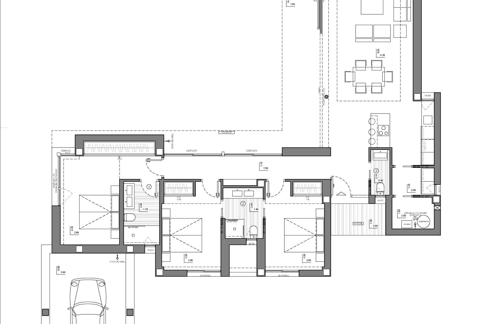
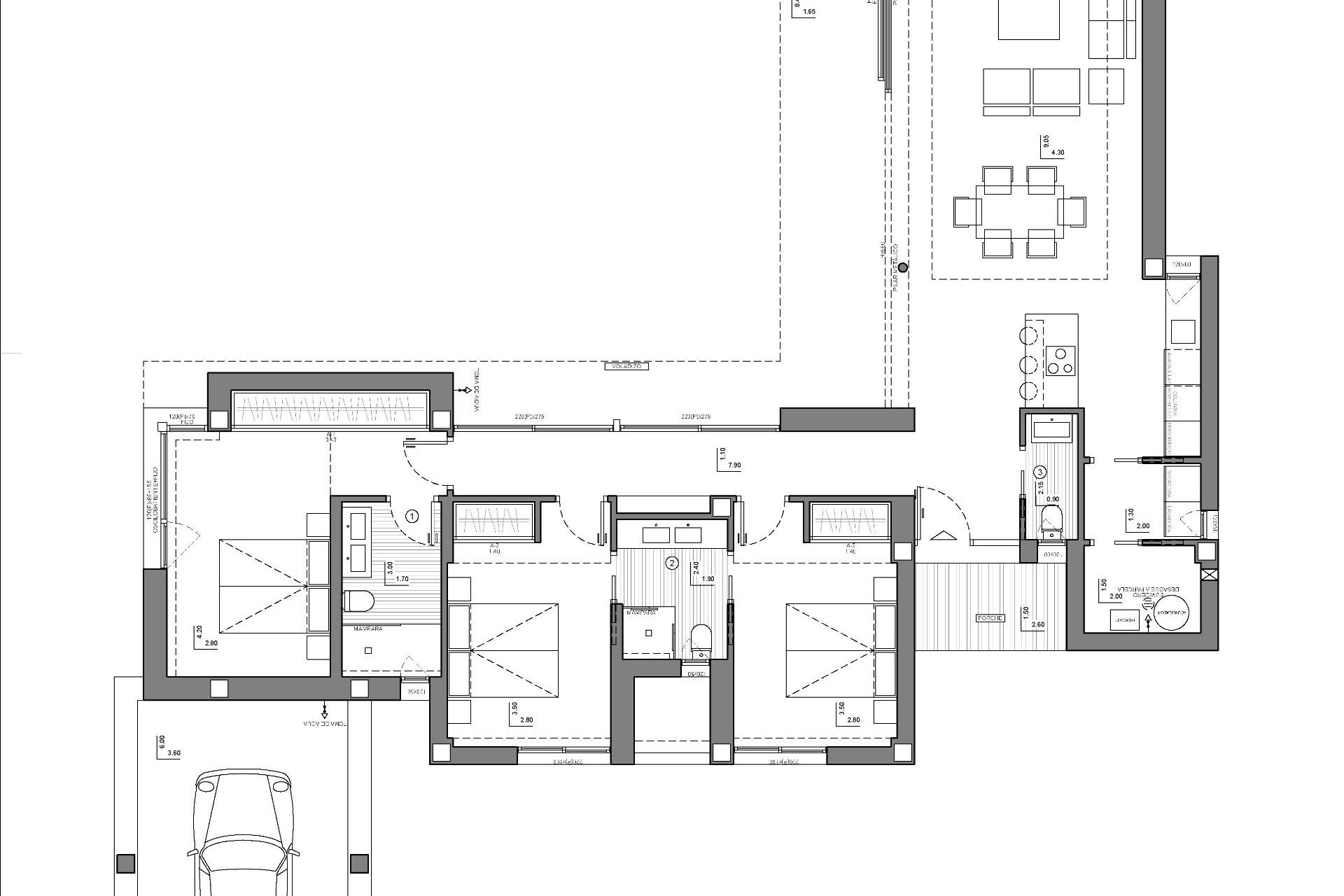
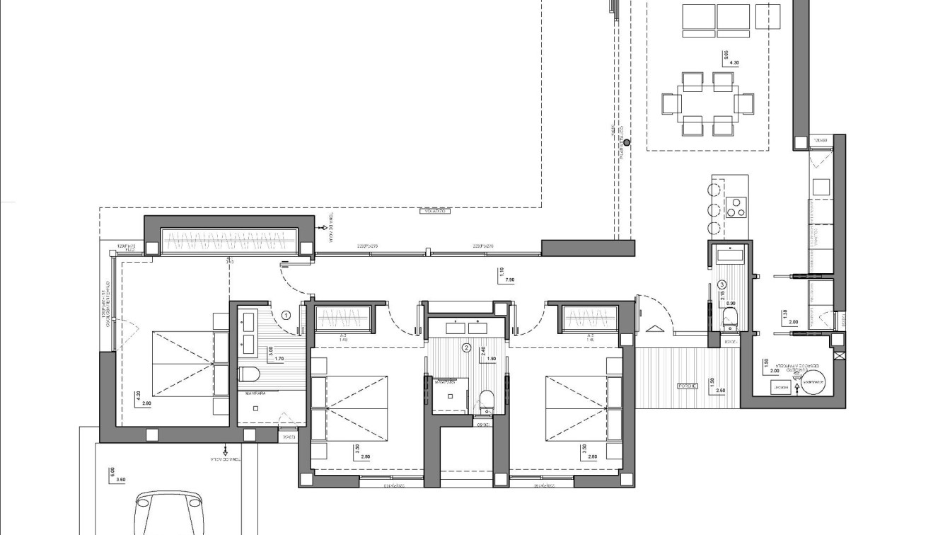
Die Villa ist in zwei Ebenen unterteilt. Im Obergeschoss befindet sich der Schlafbereich, in dem sich zwei Schlafzimmer ein gemeinsames Bad teilen, während die Master-Suite ein privates Refugium mit eigenem Bad und Ankleideraum ist. Von den Zimmern aus genießt man einen atemberaubenden Blick auf das Meer und die Berge, der ein Gefühl der Ruhe und Gelassenheit vermittelt und zum Entspannen einlädt.
Im Erdgeschoss befindet sich das Tagesmodul, das sich nach außen hin öffnet und so ein Gefühl der Kontinuität und Verbindung mit der Umgebung schafft. Das Tagesmodul besteht aus einer Eingangshalle, einer Gästetoilette und dem Tandem aus einem großen Wohn-Esszimmer und einer Küche, die perfekt integriert sind. Beide Module laufen im Außenbereich zusammen, mit der Terrasse und dem Swimmingpool als Verbindungspunkt.
Der zeitgenössische Stil der New Build Villa verschmilzt mit der mediterranen Tradition und schafft einen harmonischen und ausgewogenen Raum, der zur Entspannung und zum Genuss der Sinne einlädt. Der Hauptgarten mit seiner mediterranen Vegetation und den aromatischen Pflanzen verbindet Sie mit der Natur.
Dies ist eine einzigartige und besondere Villa, entworfen, um das Leben in vollen Zügen zu genießen und unvergessliche Erinnerungen in einer traumhaften Umgebung zu schaffen. Eine Villa, die Sie dazu einlädt, von einem Leben voller Luxus, Komfort und Schönheit zu träumen, in einem Raum, in dem Architektur und Natur zu einer perfekten Symphonie verschmelzen.
291