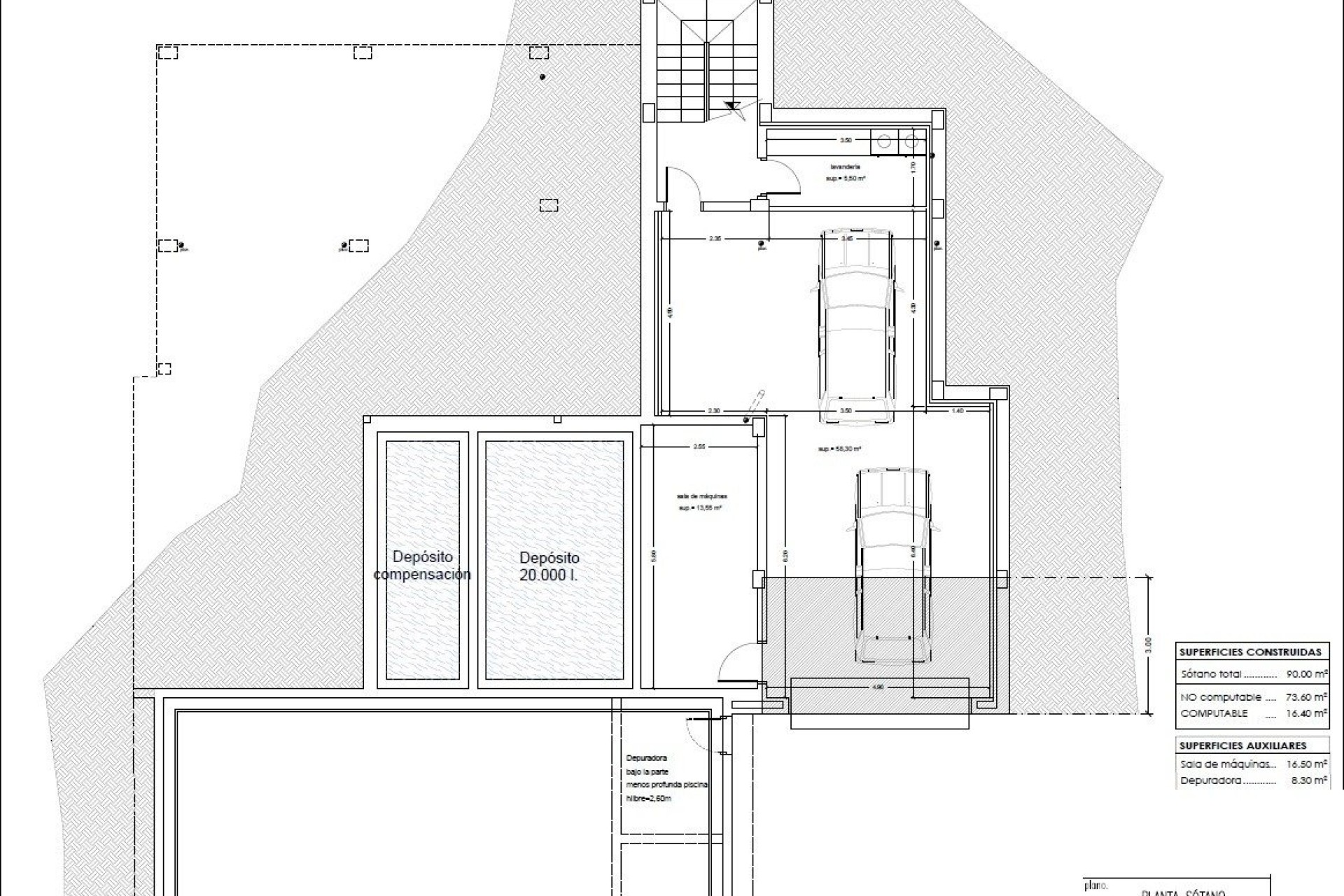
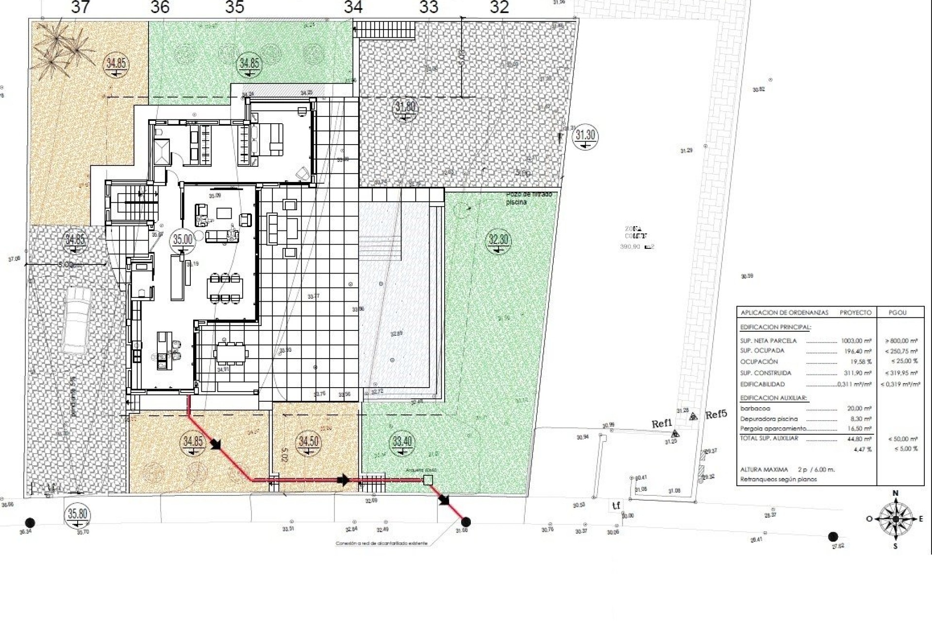
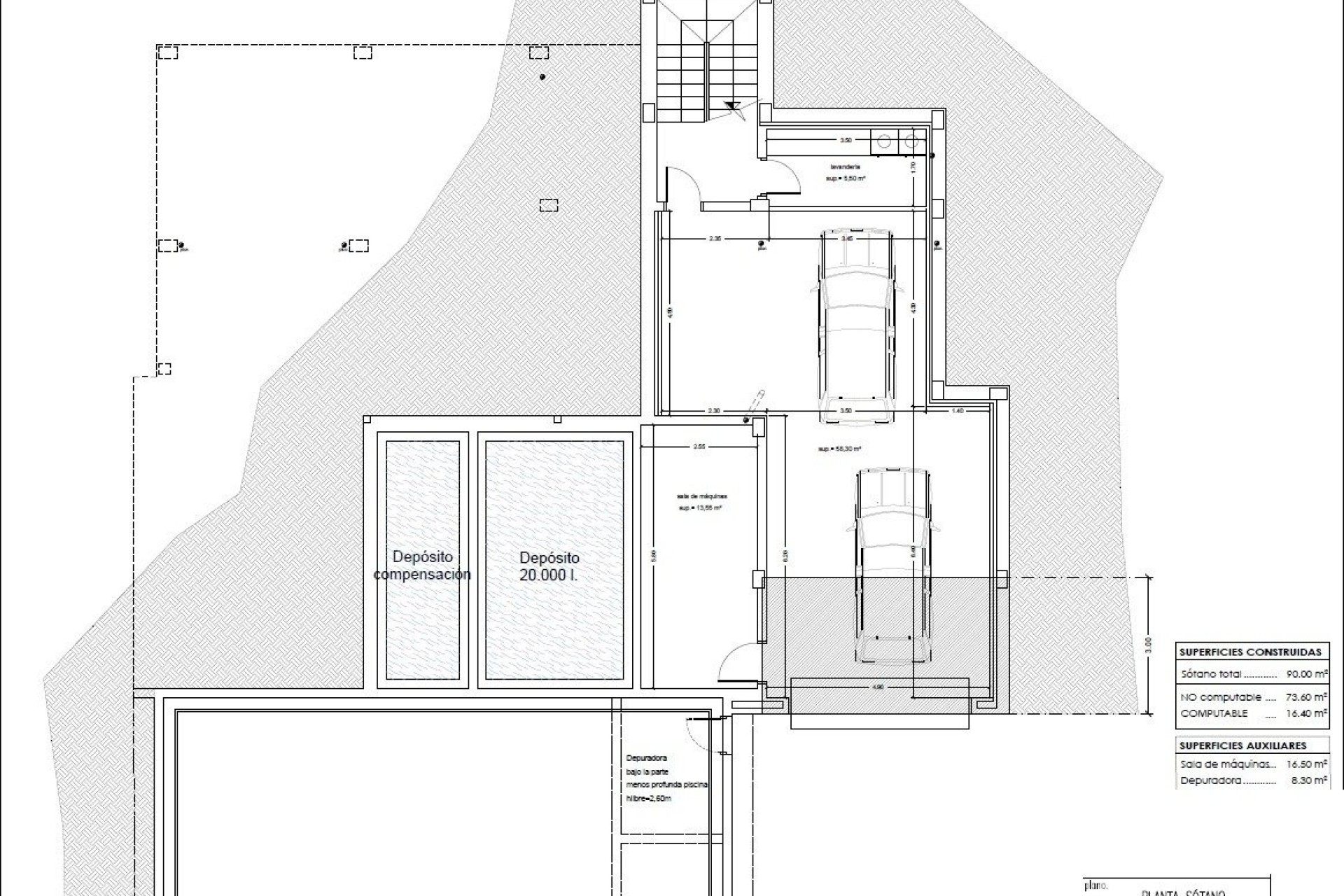
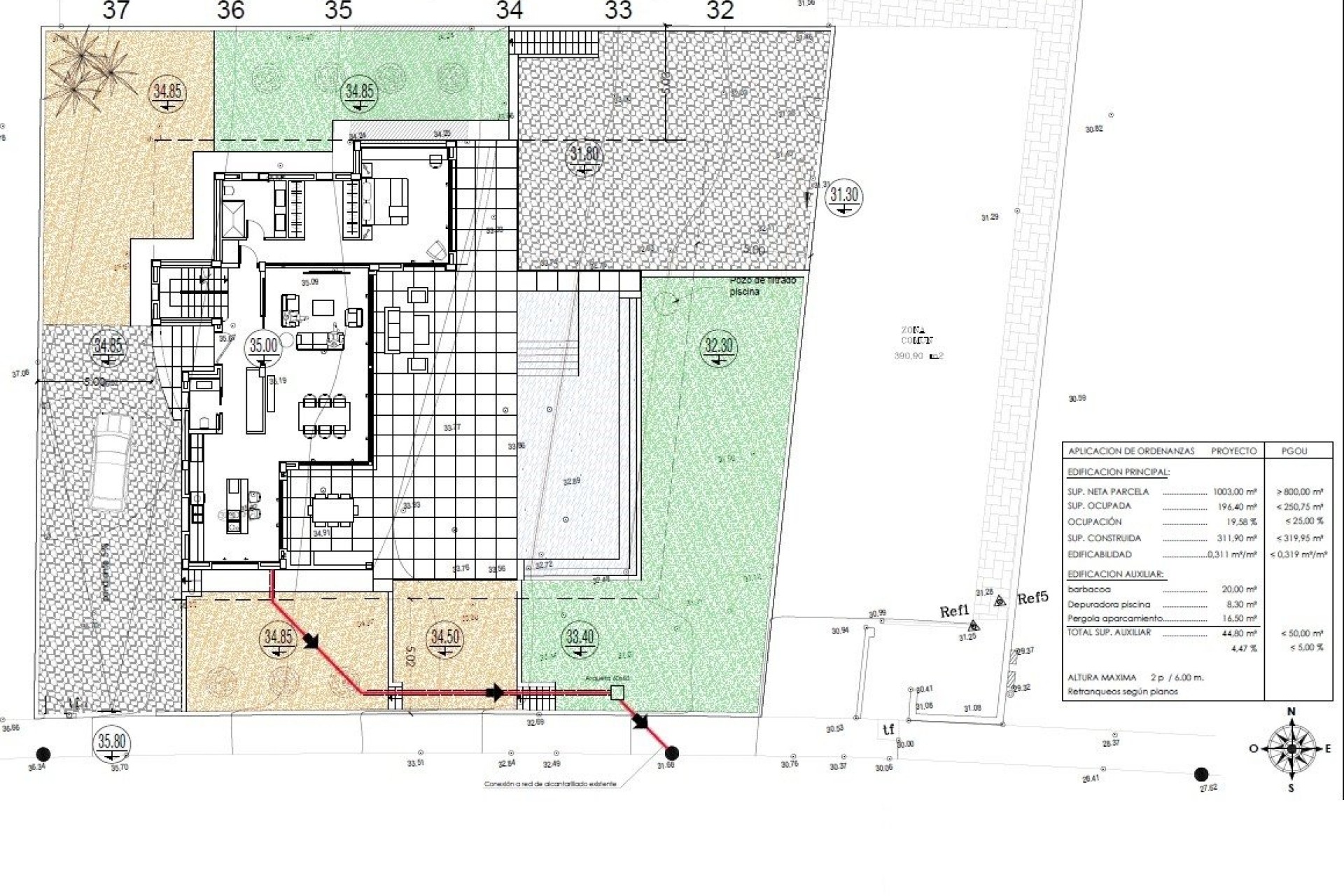
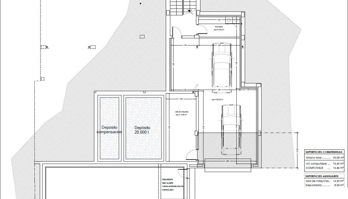
LUXUSNÍ NOVOSTAVBA VILY V MORAIŘE Novostavba luxusní vily s nejlepšími vlastnostmi a v pěší vzdálenosti od krásných pláží a centra Morairy. Tato luxusní vila je rozložena do 3 podlaží: v přízemí (147,30 m2) se nachází velký světlý obývací pokoj vedle otevřené kuchyně s kuchyňským ostrůvkem, toaleta pro hosty a ložnice s vlastní koupelnou. Ve venkovní části tohoto podlaží najdeme bazén a prostor pro grilování. Poté vystoupáme do horního patra (133,65 m2), kde najdeme 3 prostorné pokoje s vlastní koupelnou. Nakonec sklepní podlaží, odkud vede cesta do dvojgaráže a prádelny. EXTRAS: V celém domě jsou k dispozici: technické truhlářské práce s bezpečnostním sklem, kompletní kuchyňská linka se spotřebiči Siemens, kompletní koupelny a baterie značky Roca, LED osvětlení, aerotermální systém pro ohřev vody a podlahové vytápění, kanálová klimatizace (teplá a studená) v celém domě, solární panely, vestavěné skříně, elektrické žaluzie, vnitřní alarm, předinstalace venkovního alarmu a bezpečnostních kamer. Obdélníkový bazén s přepadovým systémem 12x4,5 m, prostor pro grilování 22 m2, prádelna, dokončená zahrada. Automatické vstupní dveře. Energetická klasifikace A. Orientace na jih. Moraira je malé městečko s dobrými restauracemi, bary a spoustou supermarketů v okolí. Přímo u města se nachází velmi příjemná pláž, která je vhodná pro rodiny s dětmi. Z nábřeží je nádherný výhled na Penon Ifach přes záliv v Calpe. Pobřežní cesta, po které se tam dostanete, stojí za to a nabízí nádherné výhledy. Moraira se nachází asi 1 hodinu a 15 minut severně po dálnici A7 od letiště v Alicante a je poměrně snadno dostupná. Z letiště ve Valencii je to přibližně stejně daleko nebo o něco méně na jih.
291