Novostavba rezidenčních apartmánů v La Nucía s veškerým zázemím v okolí
Moderní domy v srdci La Nucía
Tento exkluzivní rezidenční projekt se nachází v La Nucía, jednom z nejvyhledávanějších měst na pobřeží Costa Blanca, pouhých 7 km od písečných pláží Benidormu a Altea. Tato oblast se nachází v nové a živé čtvrti Ciudad del Deporte a nabízí dokonalou kombinaci přírody, pohodlí a moderního bydlení. V blízkosti najdete nejmodernější sportovní zařízení, nově plánované nákupní centrum, školy a všechny základní služby pro každodenní život. Letiště Alicante-Elche je vzdáleno přibližně 60 km, což zajišťuje vynikající spojení pro obyvatele i návštěvníky.
Stylové byty navržené pro pohodlí
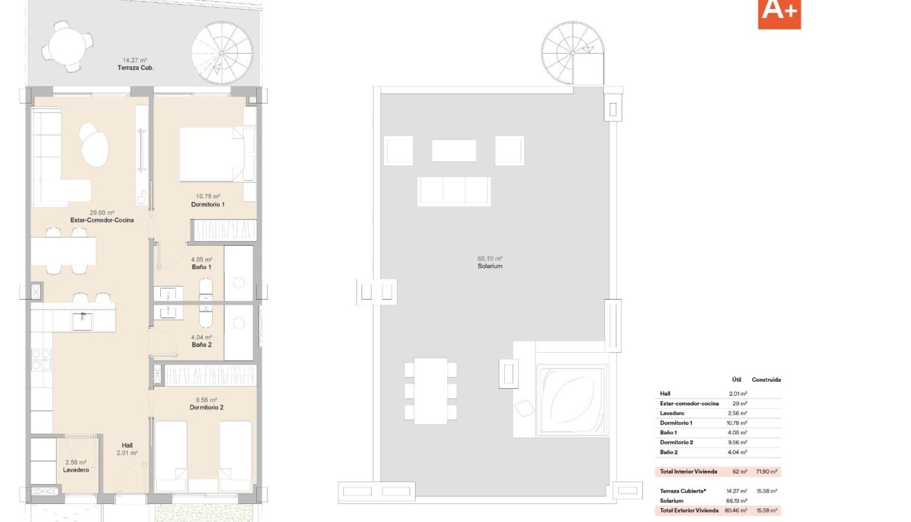
Projekt nabízí byty se 2 a 3 ložnicemi, přízemní jednotky se soukromými zahradami a penthousy s prostornými solárii. Každý dům nabízí otevřené a světlé obytné prostory navržené tak, aby maximalizovaly přirozené světlo a plynule propojovaly vnitřní a venkovní bydlení. Velké terasy poskytují ideální prostředí pro celoroční užívání si mírného středomořského klimatu.
Exkluzivní vybavení komunity
Obyvatelé budou moci využívat výjimečné společné prostory určené pro relaxaci a volný čas. Velký společný bazén s oddělenou dětskou částí nabízí ideální místo k ochlazení v teplých dnech, zatímco upravené zahrady a dětské hřiště poskytují prostor pro zábavu celé rodiny. Pro ty, kteří si cení fitness a wellness, je v rámci komplexu k dispozici plně vybavená posilovna a moderní společenský klub, které vytvářejí příjemné komunitní prostředí.
Prémiová kvalita a udržitelný design
Každý dům je postaven z vysoce kvalitních materiálů a povrchových úprav, včetně plastových nebo lakovaných hliníkových oken s tepelnou pojistkou a dvojitým zasklením, pancéřových vstupních dveří a aerotermálních systémů pro efektivní výrobu teplé vody a regulaci klimatu. Kuchyně jsou plně vybaveny horními a dolními skříňkami, indukčními varnými deskami, troubami, digestořemi a mikrovlnnými troubami, zatímco koupelny jsou dodávány s nábytkem, zrcadly a sprchovými zástěnami. Součástí každého apartmánu je také vlastní parkovací místo a úložný prostor v suterénu.
Perfektní poloha obklopená přírodou a volným časem
La Nucía je známá svým klidným prostředím, obklopeným středomořskými borovicovými lesy a výhledem na hory, a přitom nabízí snadnou dostupnost do živých pobřežních měst Benidorm a Altea. Milovníci golfu najdou v okruhu 15 km několik špičkových hřišť a rušná nákupní centra Finestratu jsou vzdálena pouhých 10 km.
Zajistěte si svůj nový domov v La Nucía ještě dnes a poznejte středomořský životní styl na pobřeží Costa Blanca.
291