La Romana. Alicante Villa - New Build

Ref: RD-88788

378.000€

La Romana. Alicante Villa - New Build

  • Meters

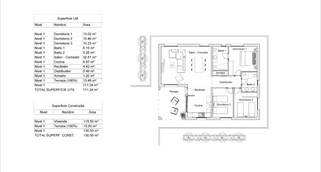
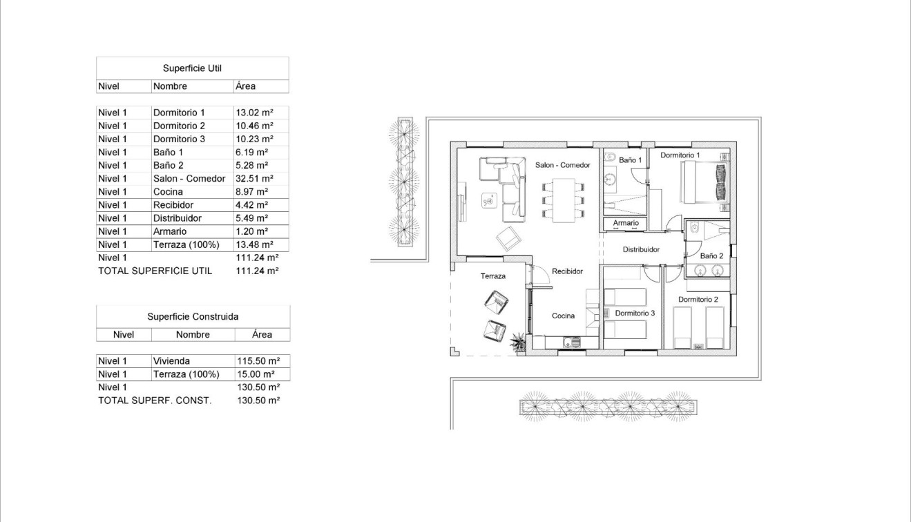
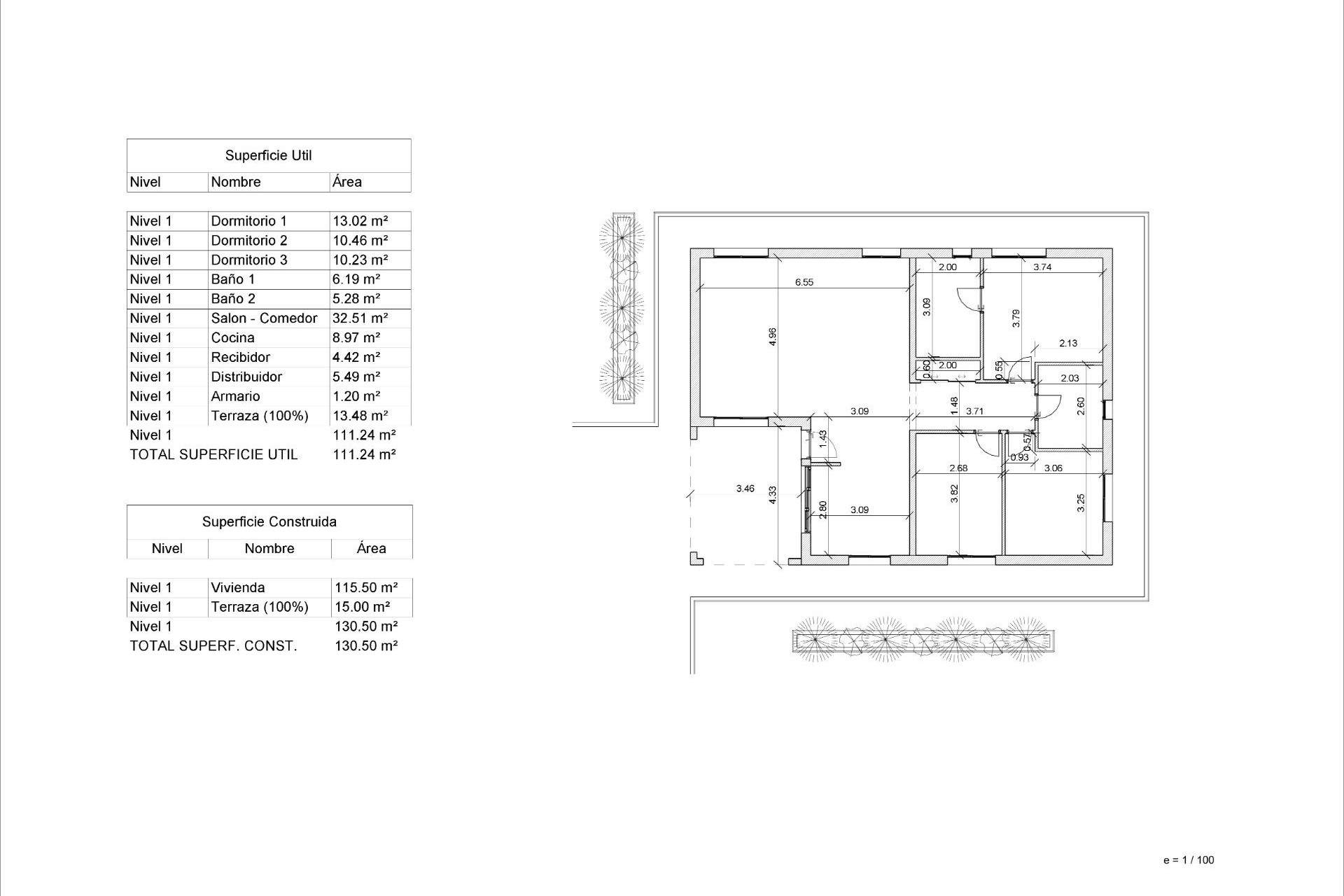
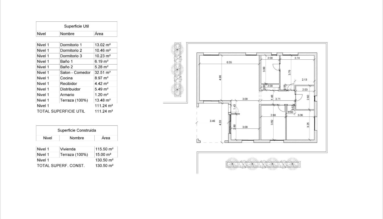
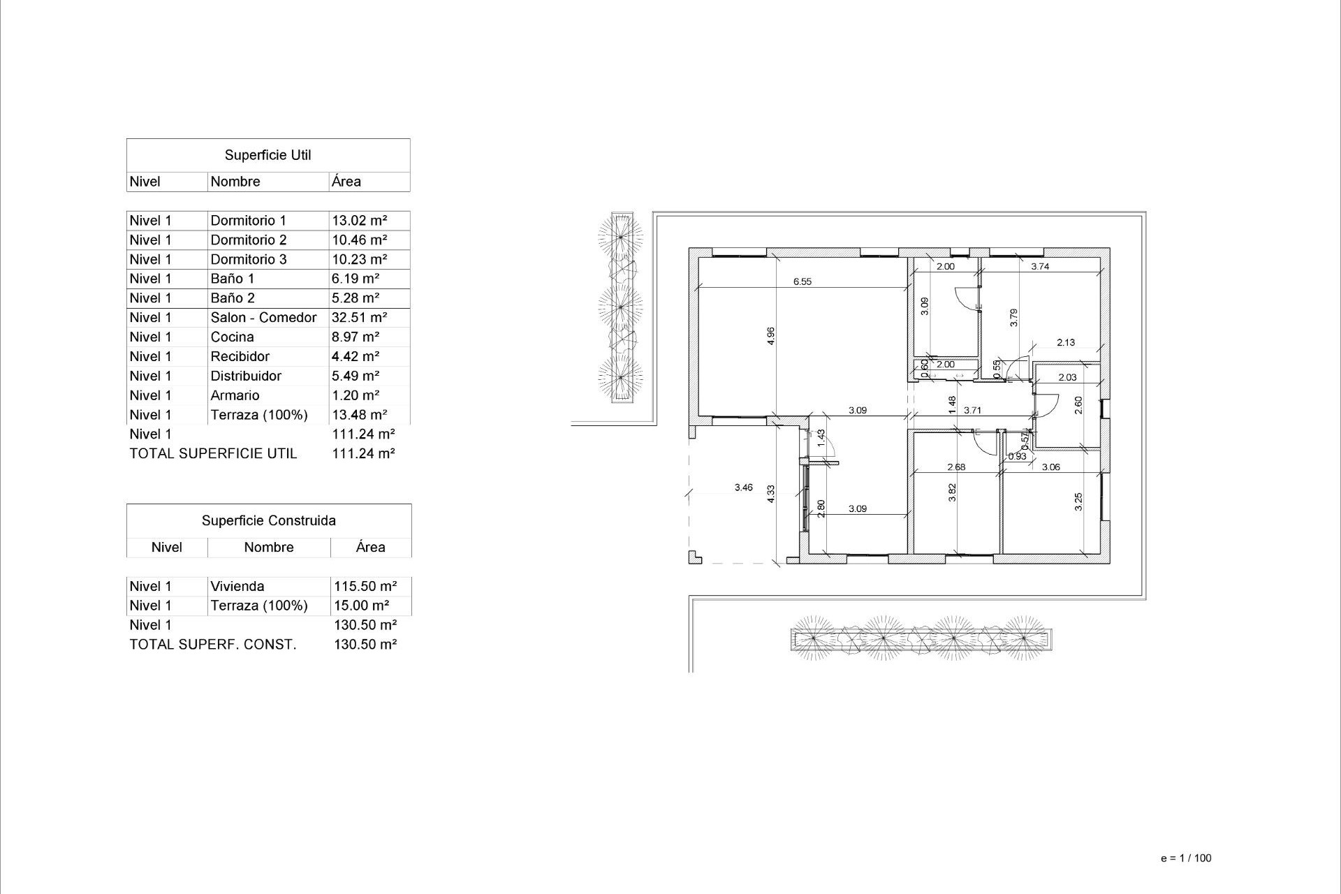
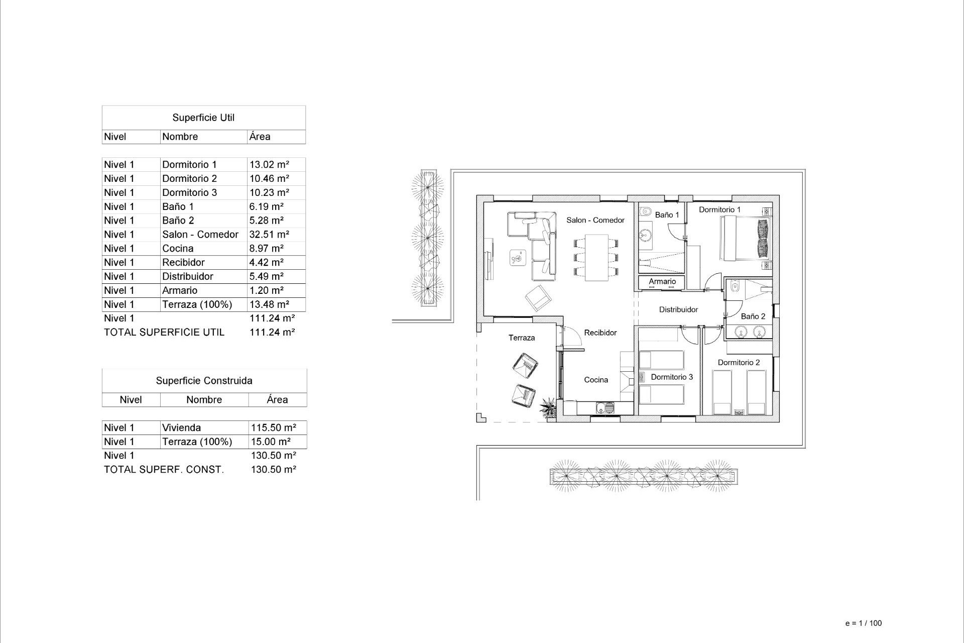
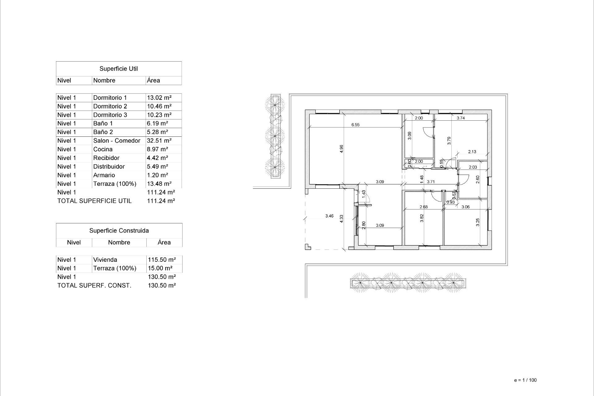
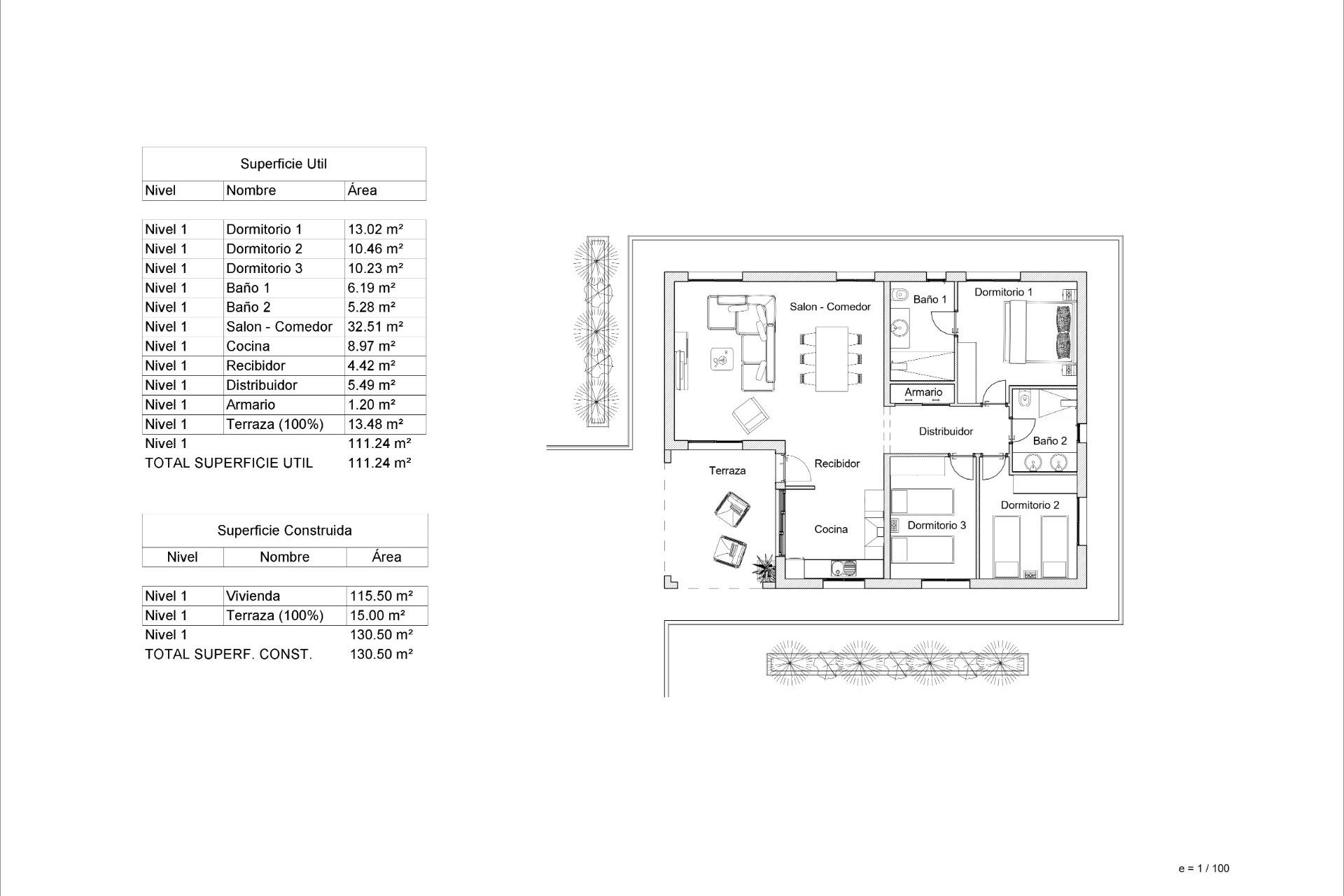
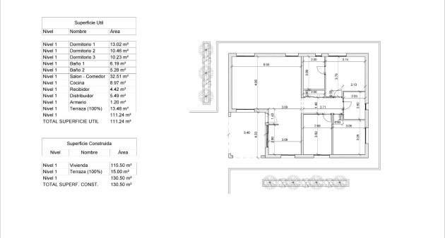
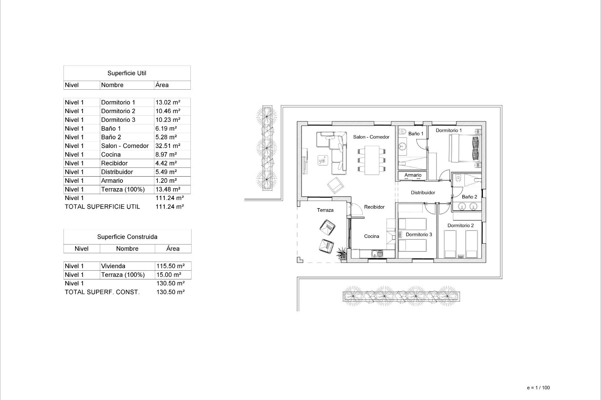
    130m2
  • Plot

    10227m2
  • Bedrooms

    3
  • Bathrooms

    2
  • Pool

    Yes
Bedrooms Bedrooms:

3

Bathrooms Bathrooms:

2

Built Built:

130m2

Plot Plot:

10227m2

Pool Pool:

Yes

Garden
Gated
Near Schools
Double Bedrooms: 3
Number of Parking Spaces: 1
Air Conditioning: Pre-Installed
Terrace: 15 Msq.
Private Pool
Useable Build Space: 110 Msq.
Parking - Space
Beach: 40000 Meters
Location: Mountain
Kine Tronstad

Kine Tronstad

Owner / CEO
+34 618 100 733 kine@costablancabolig.com

Location

Make an enquiry

Responsable del tratamiento: Costablancabolig, SL, Finalidad del tratamiento: Gestión y control de los servicios ofrecidos a través de la página Web de Servicios inmobiliarios, Envío de información a traves de newsletter y otros, Legitimación: Por consentimiento, Destinatarios: No se cederan los datos, salvo para elaborar contabilidad, Derechos de las personas interesadas: Acceder, rectificar y suprimir los datos, solicitar la portabilidad de los mismos, oponerse altratamiento y solicitar la limitación de éste, Procedencia de los datos: El Propio interesado, Información Adicional: Puede consultarse la información adicional y detallada sobre protección de datos Aquí.
WhatsApp