Discover this magnificent corner townhouse, a unique opportunity for those seeking spaciousness, comfort, and an unbeatable location.
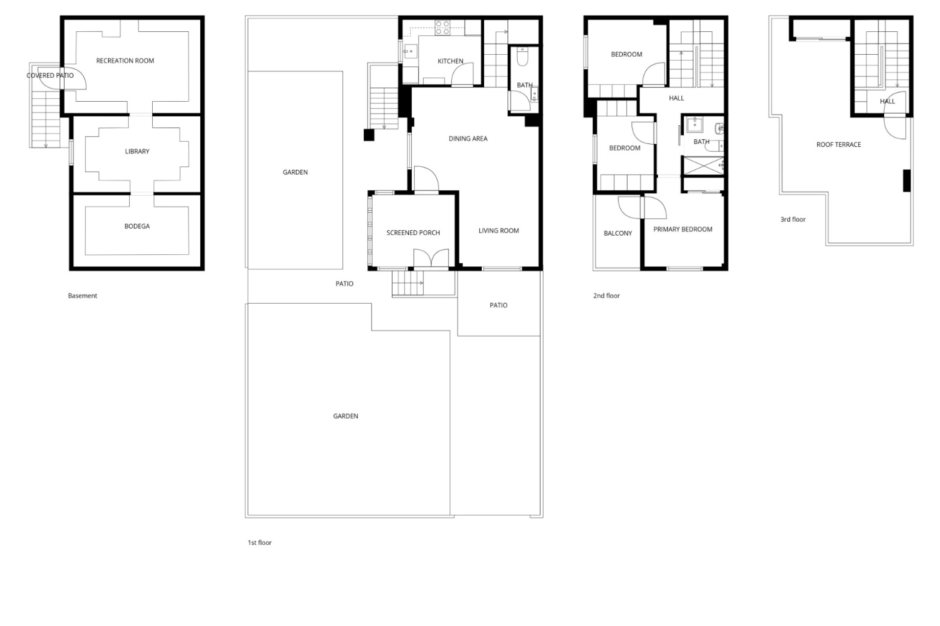
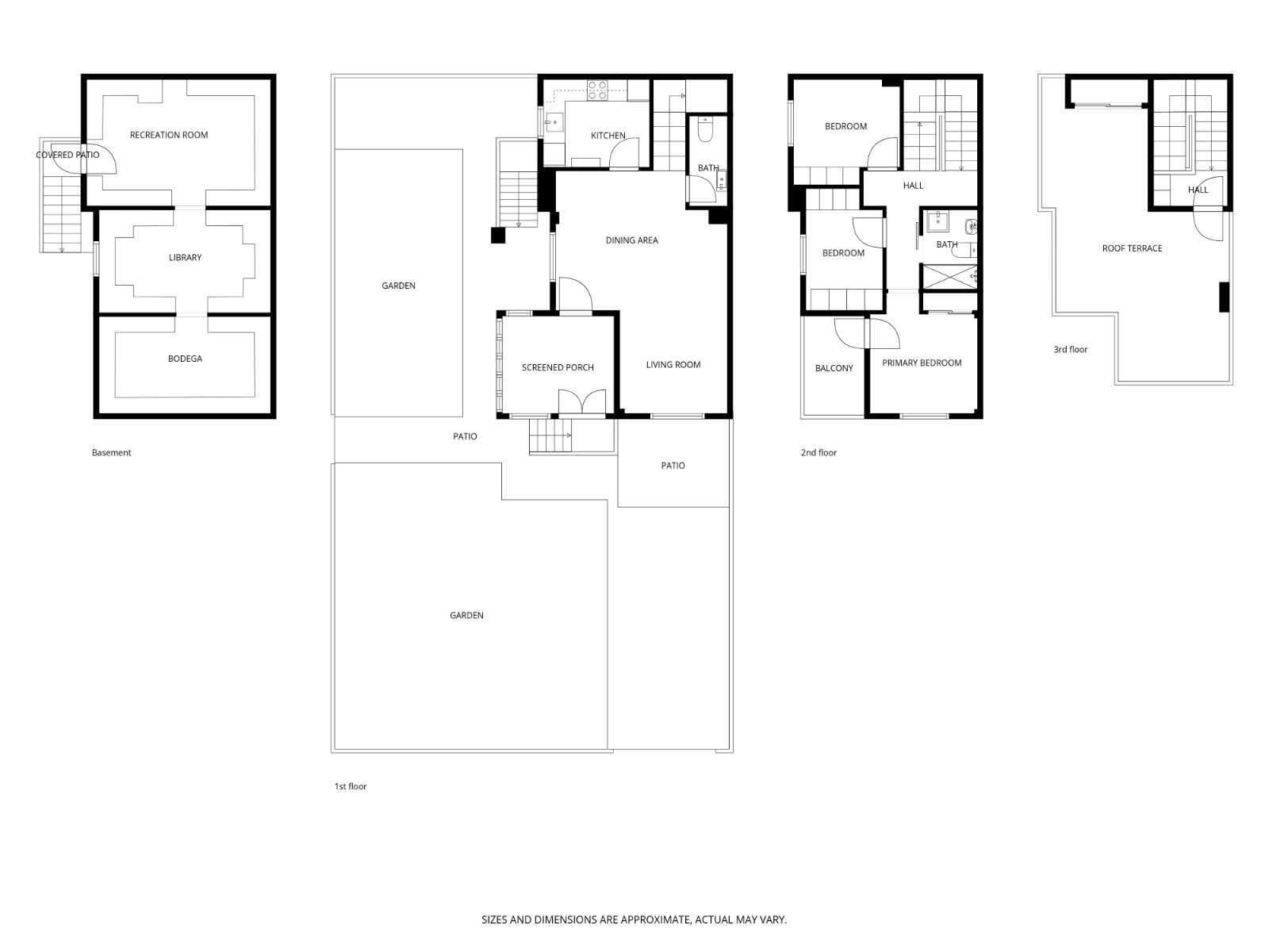
From the moment you step inside, the property captivates with its meticulously maintained private garden, perfect for enjoying the Mediterranean climate year-round. It also includes a parking space within the property for your convenience.
Upon entering the house, you are greeted by a fully glazed terrace, a versatile space ideal as a relaxation area, winter dining room, or reading nook. Next, you'll find a bright living-dining room that seamlessly integrates with a separate, functional, and well-distributed kitchen. On this same floor, there is also a convenient guest toilet.
Upstairs, you'll find the sleeping area, comprising three bedrooms and a separate full bathroom. One of the bedrooms boasts a private balcony, an intimate corner where you can enjoy the fresh air and tranquility.
Going up one level, we access the private solarium, where you can enjoy pleasant, unobstructed views of the park—the perfect place to unwind, sunbathe, or enjoy evenings outdoors.
The property also offers a large, habitable basement, a space with multiple possibilities: a recreation room, library, gym, office, or even a guest area.
As an added bonus, the complex features a large, recently renovated communal swimming pool, complete with restrooms for added convenience, creating an ideal environment for relaxation and family life.
The location is simply exceptional: just 50 meters away you'll find supermarkets, shops, restaurants, and a pharmacy, as well as excellent access to the road to Torrevieja and quick access to the AP-7 motorway towards Alicante Airport.
A home that has it all: space, light, privacy, and a strategic location. Ideal as a primary residence, a second home, or a high-yield investment.
Meters
95m2Bedrooms
3Bathrooms
1Pool
Community2005
3
1
1
95m2
9m2
Community
Independent
South
250€
150€