Altea. Alicante Chalet - New Build

Ref: X-003507

2.295.000€

Altea. Alicante Chalet - New Build

Puput 58: where design meets nature

  • Meters

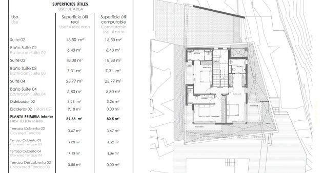
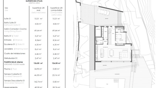
    484m2
  • Plot

    1396m2
  • Bedrooms

    4
  • Bathrooms

    4
  • Pool

    Yes
  • Parking

    Private
Year of construction Year of construction:

2026

Delivery date Delivery date:

2026-07-31

Bedrooms Bedrooms:

4

Bathrooms Bathrooms:

4

Toilets Toilets:

1

Built Built:

484m2

Plot Plot:

1396m2

Terrace Terrace:

282 m2

Pool Pool:

Yes

Parking Parking:

Private

Terrace Terrace
Air condition Air condition
Underfloor heating Underfloor heating
Solar panel Solar panel
Built-in wardrobes Built-in wardrobes
Anna Gawlowska

Anna Gawlowska

Co-Owner
+34 633 909 851 anna@costablancabolig.com

Location

Make an enquiry

Responsable del tratamiento: Costablancabolig, SL, Finalidad del tratamiento: Gestión y control de los servicios ofrecidos a través de la página Web de Servicios inmobiliarios, Envío de información a traves de newsletter y otros, Legitimación: Por consentimiento, Destinatarios: No se cederan los datos, salvo para elaborar contabilidad, Derechos de las personas interesadas: Acceder, rectificar y suprimir los datos, solicitar la portabilidad de los mismos, oponerse altratamiento y solicitar la limitación de éste, Procedencia de los datos: El Propio interesado, Información Adicional: Puede consultarse la información adicional y detallada sobre protección de datos Aquí.
WhatsApp