Nowoczesne kamienice w pobliżu pól golfowych w Santa Rosalia – Murcja
Nowe domy w spokojnej, wiejskiej okolicy
Odkryj tę atrakcyjną, nową inwestycję obejmującą nowoczesne kamienice, położoną w uroczej miejscowości Santa Rosalia w regionie Murcji. Otoczona jednymi z najbardziej prestiżowych pól golfowych w okolicy i oddalona o zaledwie kilka minut jazdy samochodem od plaż Mar Menor, lokalizacja ta stanowi idealne połączenie spokoju, wygody i aktywnego stylu życia.
Santa Rosalia to tradycyjna hiszpańska wioska o przyjaznej atmosferze, gdzie mieszkańcy mogą korzystać z lokalnych sklepów, supermarketu, barów i restauracji, w tym popularnej La Almazara. Jej strategiczne położenie pomiędzy Roda Golf, Mar Menor Golf i Los Alcazares sprawia, że jest to bardzo atrakcyjna lokalizacja zarówno na stałe zamieszkanie, jak i na domy wakacyjne.
Stylowe kamienice z solarium i przestrzenią na świeżym powietrzu
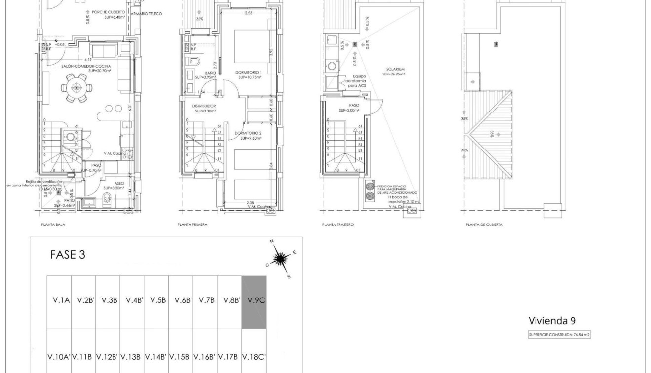
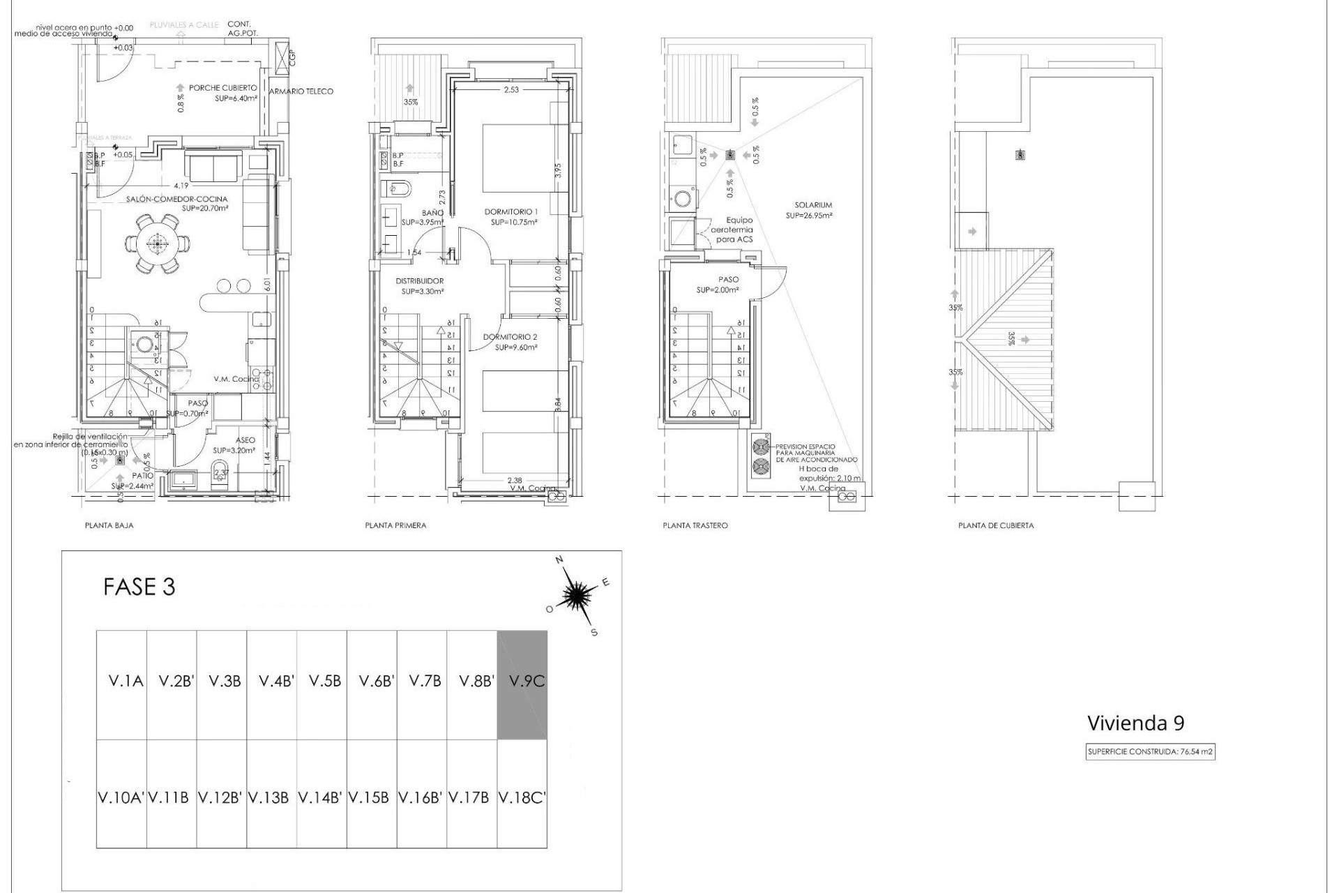
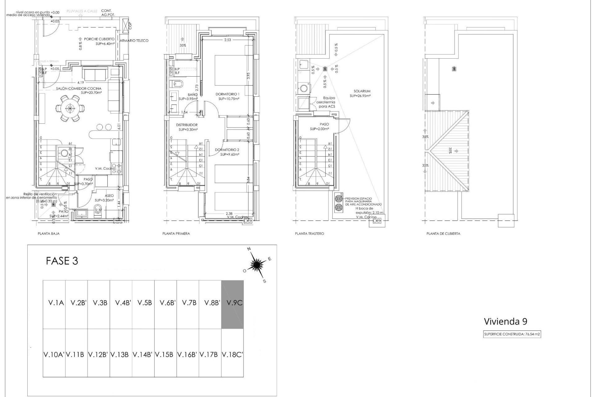
Inwestycja składa się z 18 nowoczesnych domów szeregowych z 2 lub 3 sypialniami i 2 łazienkami, zaprojektowanych zgodnie z nowoczesnym stylem otwartej przestrzeni. Każdy dom posiada jasną część dzienną połączoną z w pełni wyposażoną kuchnią, tworząc funkcjonalną i komfortową przestrzeń mieszkalną.
Wszystkie nieruchomości posiadają prywatne solarium na dachu z letnią kuchnią, idealne do cieszenia się śródziemnomorskim klimatem, przyjmowania gości lub relaksu na świeżym powietrzu przez cały rok. Ponadto każdy dom posiada prywatne miejsce parkingowe oraz schowek w garażu wspólnym.
Wysokiej jakości wykończenia i nowoczesne udogodnienia
Domy te zostały zbudowane z wysokiej jakości materiałów i zaprojektowane z myślą o komforcie oraz oszczędności energii. Wyposażenie obejmuje system aerotermiczny do podgrzewania wody, instalację przygotowaną do montażu klimatyzacji kanałowej oraz w pełni wyposażone łazienki z meblami, lustrami i kabinami prysznicowymi.
W ramach inwestycji znajduje się również wspólny basen, stanowiący idealne miejsce na relaks i cieszenie się słonecznymi dniami w spokojnym otoczeniu.
Doskonała lokalizacja w pobliżu pola golfowego i morza
Santa Rosalia jest idealnie położona zaledwie 4,5 km od plaż w Los Alcazares, znanych ze spokojnych wód i długiej promenady wzdłuż Mar Menor. Okolica to raj dla miłośników golfa, z kilkoma najlepszymi polami oddalonymi o zaledwie kilka minut.
Pobliskie miasteczko Los Alcazares oferuje szeroki wybór usług, restauracji, sklepów i atrakcji rekreacyjnych, dzięki czemu codzienne życie jest łatwe i przyjemne.
Odległości do najważniejszych atrakcji
Plaże Los Alcazares 4,5 km
Roda Golf 3 km
Mar Menor Golf 4 km
Kartagena 25 km
Międzynarodowe lotnisko w Murcji 30 km
Twój idealny dom na Costa Calida
Ta inwestycja stanowi doskonałą okazję do nabycia nowoczesnego domu szeregowego w dobrze skomunikowanej i spokojnej lokalizacji w pobliżu pól golfowych i morza. Skontaktuj się z nami już dziś, aby uzyskać więcej informacji lub umówić się na wizytę i zapewnić sobie nowy dom w Santa Rosalia.
Metry
76m2Sypialnie
2Łazienki
2Basen
Tak2
2
76m2
Tak