Torrevieja. Spain Bungalow - Nowo zbudowane

Ref: RD-64713

330.000€

Torrevieja. Spain Bungalow - Nowo zbudowane

  • Metry

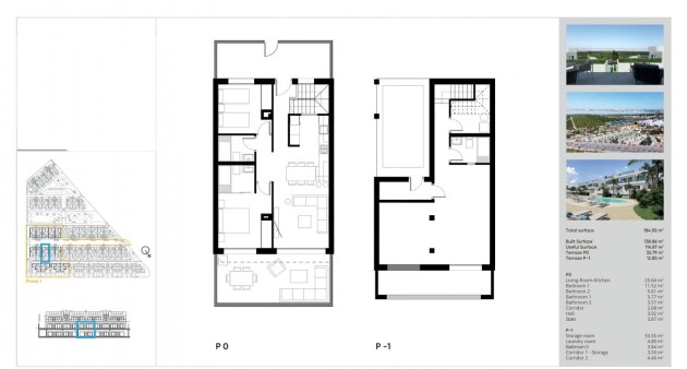
    75m2
  • Sypialnie

    2
  • Łazienki

    2
  • Basen

    Tak
Sypialnie Sypialnie:

2

Łazienki Łazienki:

2

Powierzchnia Powierzchnia:

75m2

Basen Basen:

Tak

Communal Pool
Gated
Near Trees
Near Schools
Near Commercial Center
Near Bus Route
Location: Coastal, Urbanisation
Solarium: Yes
Number of Parking Spaces: 1
Air Conditioning: Pre-Installed
Double Bedrooms: 2
Useable Build Space: 65 Msq.
Parking - Space
Beach: 4000 Meters
Terrace: 91 Msq.
Key Ready
Kine Tronstad

Kine Tronstad

Eigentümer / CEO
+34 618 100 733 kine@costablancabolig.com

Lokalizacja

Powiadom o ofercie

Responsable del tratamiento: Costablancabolig, SL, Finalidad del tratamiento: Gestión y control de los servicios ofrecidos a través de la página Web de Servicios inmobiliarios, Envío de información a traves de newsletter y otros, Legitimación: Por consentimiento, Destinatarios: No se cederan los datos, salvo para elaborar contabilidad, Derechos de las personas interesadas: Acceder, rectificar y suprimir los datos, solicitar la portabilidad de los mismos, oponerse altratamiento y solicitar la limitación de éste, Procedencia de los datos: El Propio interesado, Información Adicional: Puede consultarse la información adicional y detallada sobre protección de datos Aquí.
WhatsApp