Nybyggleiligheter i La Nucía – moderne livsstil i Ciudad del Deporte nær Benidorm
Førsteklasses beliggenhet i La Nucía på Costa Blanca
Oppdag dette enestående nye boligprosjektet i La Nucía, et av de mest attraktive områdene på Costa Blanca. Beliggende i det innovative bydelen Ciudad del Deporte, byr dette området på en unik blanding av moderne infrastruktur, naturskjønne omgivelser og praktiske hverdagsfasiliteter. Bare 7 km fra strendene i Benidorm og Altea, er La Nucía kjent for sitt fredelige miljø, utmerkede idrettsanlegg og høye livskvalitet. Området har også internasjonale skoler, shoppingområder og alle nødvendige tjenester innen rekkevidde, noe som gjør det ideelt for både fastboende og ferieopphold.
Moderne leiligheter designet for middelhavsliv
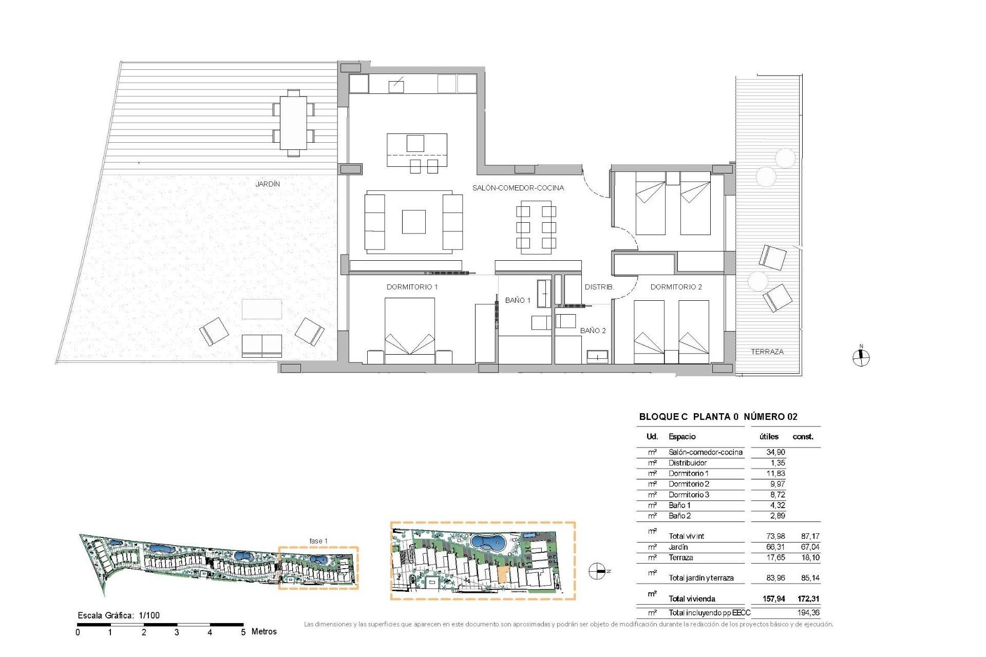
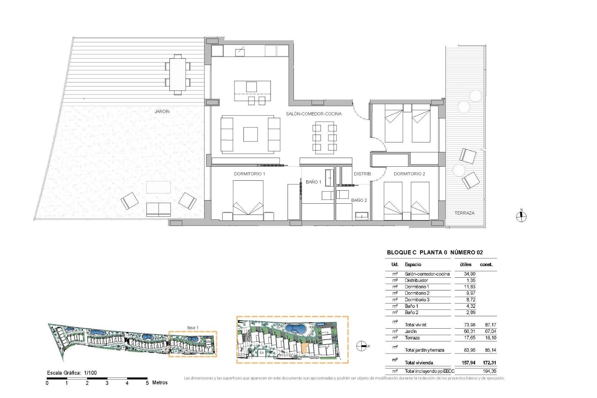
Denne første fasen omfatter 64 stilfulle leiligheter med 2 og 3 soverom. Kjøpere kan velge mellom leiligheter i første etasje med private hager, leiligheter i mellomste etasje med romslige terrasser eller penthouse-leiligheter med private solterrasser. De fleste boligene har to store terrasser som vender mot øst og sørvest, slik at du kan nyte sollyset hele dagen og få mest mulig ut av middelhavsklimaet.
Interiøret er designet med åpen planløsning, noe som maksimerer naturlig lys og skaper en sømløs overgang mellom innendørs og utendørs områder. Fullt utstyrte kjøkken med Bosch-apparater integreres perfekt med stuen, mens badene har gulvvarme, moderne møbler, speil og dusjvegger.
Høykvalitets finish og energieffektivitet
Hver bolig er bygget med førsteklasses materialer og moderne teknologi for å sikre komfort og bærekraft. Funksjonene inkluderer doble vinduer med varmeisolasjon, motoriserte persienner, forsterkede sikkerhetsdører og et aerotermisk system for varmt vann og klimakontroll. Hver leilighet har også en privat parkeringsplass og et oppbevaringsrom i den underjordiske garasjen.
Eksklusive fellesarealer for livsstil og velvære
Prosjektet tilbyr enestående fellesfasiliteter designet for avslapning, fritid og produktivitet. Beboerne kan nyte et stort svømmebasseng omgitt av anlagte hager, et fullt utstyrt treningsstudio og et velværespa på over 200 m² med boblebad, badstue og tyrkisk bad. Ytterligere fasiliteter inkluderer en sosial klubb med kontorfellesskap og et lekeområde for barn, noe som skaper et livlig og behagelig fellesskapsmiljø.
Utmerket tilknytning og nærliggende severdigheter
Strendene i Benidorm 7 km
Altea 8 km
La Nucía sentrum 3 km
Alicante lufthavn 60 km
Villaitana Golf 6 km
Altea havn 10 km
Investeringsmulighet og middelhavslivsstil
Dette prosjektet tilbyr ikke bare et moderne hjem, men også en utmerket investeringsmulighet, med valgfrie utleietjenester designet for å maksimere avkastningen når boligen ikke er i bruk. Kontakt oss i dag for å få mer informasjon eller for å avtale en visning og sikre deg din nye eiendom i La Nucía.
291
Boareal
87m2Tomt
66m2Soverom
3Bad
2Svømmebasseng
Ja3
2
87m2
66m2
Ja