Nybyggede rekkehus med solarium og kjellergarasje i Bigastro Vega Baja
Eksklusivt prosjekt med kun to moderne boliger
Dette boutique-nybyggprosjektet består av kun to rekkehus i den fredelige byen Bigastro, som ligger i Vega Baja-området på Costa Blanca Sør. Disse boligene er designet med en praktisk planløsning over flere etasjer, og kombinerer plass, komfort og energieffektivitet i et godt tilknyttet boligområde.
Bigastro er kjent for sin rolige atmosfære, tradisjonelle spanske karakter og utmerkede tilgang til nærliggende byer, strender og tjenester. Det tilbyr en avslappet livsstil samtidig som det ligger nær alt du trenger i hverdagen, noe som gjør det ideelt både for permanent opphold og ferie.
Romslig planløsning over fire nivåer
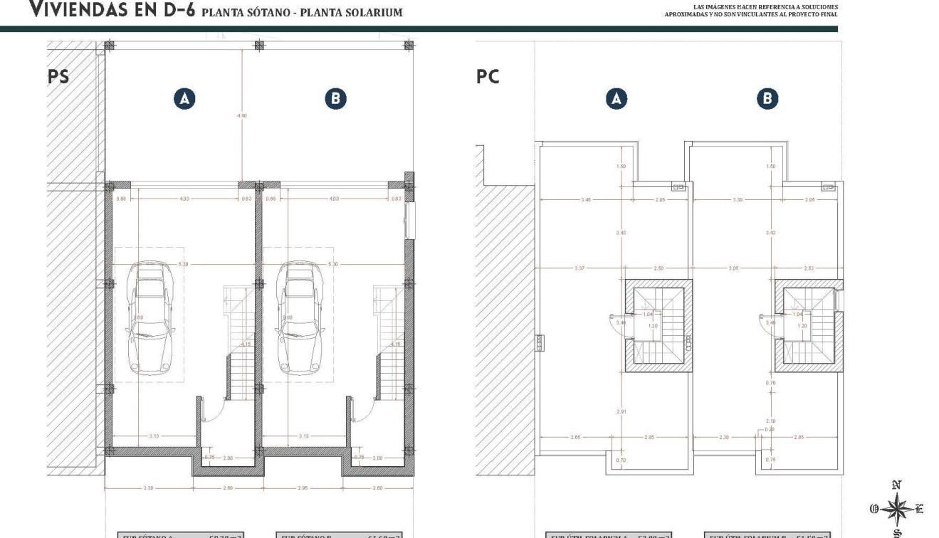
Hver eiendom er fordelt på kjeller, første etasje, andre etasje og solarium på taket, og tilbyr romslige oppholdsområder både innendørs og utendørs.
Kjelleren på 59 m2 er designet som en privat garasje med motorisert inngangsdør, og tilbyr sikker parkering og ekstra lagringsplass.
I første etasje finner du en lys åpen stue med kjøkken, gjestetoalett og to terrasser, en foran og en bak, som gir naturlig lys og ventilasjon hele dagen.
Første etasje har 3 soverom og 2 bad, hvorav det ene er en-suite, samt en ekstra terrasse. På øverste etasje gir et privat solarium på taket på ca. 40 m2 det perfekte stedet for å slappe av, sole seg eller skape et utendørs avslapningsområde.
Kvalitetsfunksjoner og energieffektive systemer
Disse boligene er bygget med moderne materialer og gjennomtenkte detaljer for å sikre komfort og effektivitet, inkludert:
Forsterket sikkerhetsdør
Aerotermisk system for varmt vann
Fotovoltaisk solcellepanel
Elektriske persienner i stue og soverom
Forhåndsinstallert luftkondisjonering
Motorisert garasjeport
Beboerne har også tilgang til felles svømmebasseng i boligområdet, noe som gir ekstra verdi for fritid og avslapning.
Godt tilknyttet beliggenhet nær strender og tjenester
Bigastro sentrum 0,5 km
Orihuela by 5 km
Guardamar del Segura strender 15 km
Zenia Boulevard kjøpesenter 20 km
Vega Baja sykehus 10 km
Alicante internasjonale lufthavn 48 km
Flere golfbaner innen 15 km
Den nærliggende motorveien AP 7 gir raske forbindelser til Alicante, Murcia og de omkringliggende kystbyene.
En utmerket mulighet i et voksende boligområde
Med lokale butikker, skoler, idrettsanlegg, parker og restauranter blir Bigastro stadig mer populært blant både nasjonale og internasjonale kjøpere som søker livskvalitet og gode forbindelser.
Kontakt oss i dag for å få mer informasjon eller for å avtale en visning av disse eksklusive nybygde rekkehusene i Bigastro.