NYBYGG VILLA I CALPE
Nybygget villa beliggende i et av boligområdene foretrukket av alle innbyggerne i Calpe, på grunn av sin nærhet til sentrum, strendene og samtidig fordi det er et rolig, men trygt område, siden det ligger i utkanten. av sentrum.
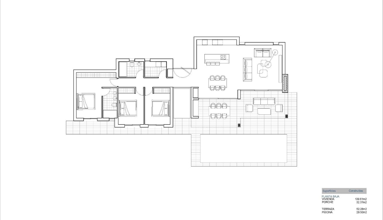
Eiendommen er planlagt i en etasje, noe som gjør dette prosjektet praktisk og komfortabelt.
Hele tomten er inngjerdet og har en hekk av sypresser innvendig, noe som gir privatliv og hyggelig miljø.
Fra hovedinngangen til huset har vi tilgang til en hall, hvorfra vi til venstre tilgang til dagområdet, bestående av stue med spisestue og åpen kjøkkenløsning med øy. Fra stuen har vi tilgang til utsiden, hvor vi har en overbygd veranda med grill og en stor terrasse med svømmebasseng på 40m2.
På høyre side av huset er soveområdet, med 4 soverom: hovedsuiten med omkledningsrom og bad, et annet soverom med eget bad og ytterligere to soverom som deler bad. Det er også et vaskerom.
Utenfor er det en parkeringsplass med pergola i form av et seil for to biler.
Calpe, en av byene La Marina Alta, ligger på nordkysten av provinsen Alicante, omgitt av byene Altea, Benidorm, Teulada-Moraira, Benissa.
Calpe har en herlig blanding av gammel valenciansk kultur og moderne turistfasiliteter. Det er en flott base for å utforske lokalområdet eller nyte de mange lokale strendene. Calpe alene har tre av de vakreste sandstrendene på kysten.
Calpe har også to seilklubber: Real Club Náutico de Calpe og Club Náutico de Puerto Blanco.
Fiskerlandsbyen Calpe nå forvandlet til en turistmagnet, byen har en ideell beliggenhet, lett tilgjengelig fra motorveien A7 og N332 som går fra Valencia til Alicante; Det er ca. 1 times kjøring fra flyplassen i Alicante og 1,5 time til Valencias flyplass.