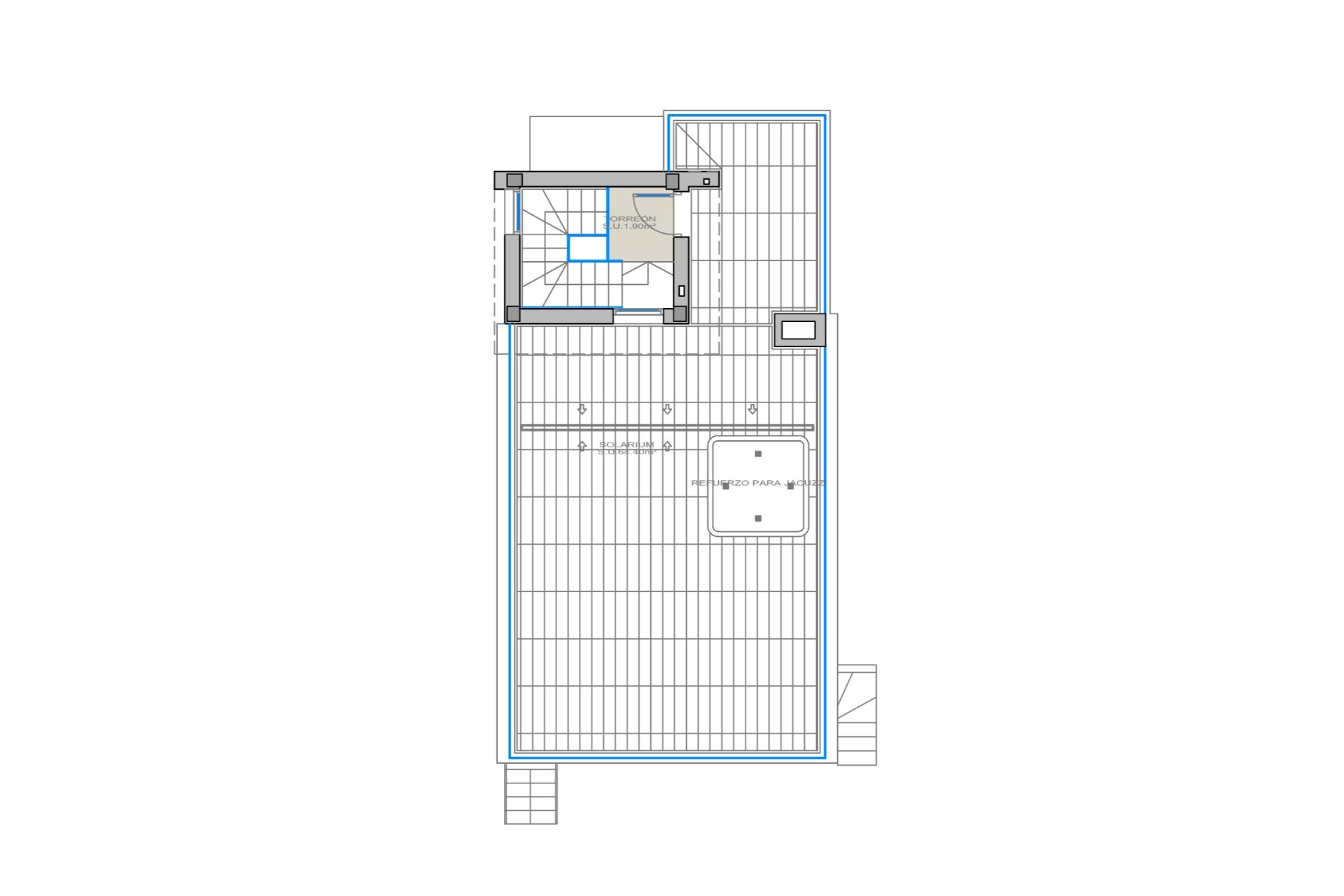
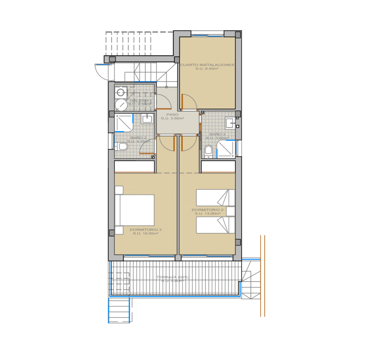
Lekre luksusvillaer til salgs i La Mata, like ved stranden. Villaene har et boareal på 140 kvm. og går over to etasjer. På bakkeplan er det et soverom med en-suite bad, et gjestetoalett, stue, spisestue og kjøkken med åpen løsning. I andre etasje er det tre soverom, to bad, det ene en-suite, og et vaskerom.
Villaene holder en meget høy standard, og har innebygde garderobeskap på tre av soverommene, air condition, varme i gulv, smart system som lar deg styre lys og varme via smarttelefon, alarm, sikkerthetsinngang med kamera og mye mer. Prisene varierer fra 795.000 Euro til 845.000 Euro. Vennligst kontakt oss for mer informasjon.
Villaene ligger på tomter på mellom 170 kvm. og 213 kvm. Her er det privat svømmebasseng, hage og terrasse designet av en landskapsarkitekt, en privat takterrasse med grillområde, og parkering på tomten for én bil.
OmrådeVillaene ligger i La Mata, et populært område i utkanten av Torrevieja. Villaene ligger i en av sidegatene til den 2,9 kilometer lange sandstranden, hvor man også finner en flott strandpormenade med koselige restauranter, kafeer og barer. Innen kort avstand ligger det også flere butikker og supermarkeder. Sentrum av Torrevieja ligger kun et par minutters kjøretur unna, og her finner man alle fasilitetstilbud man trenger. Langs den strandpromenaden i Torrevieja finner man restauranter, kafeer, barer, butikker, kveldsmarked, tivoli og mye mer. Flyplassen i både Alicante og Murcia / San Javier ligger omtrent 40 minutter unna.
Boareal
140m2Tomt
170m2Soverom
4Bad
3Svømmebasseng
Ja