La Romana. Alicante Villa - Nouvelle construction

Réf: RD-41856

402.000€

La Romana. Alicante Villa - Nouvelle construction

  • Mètres

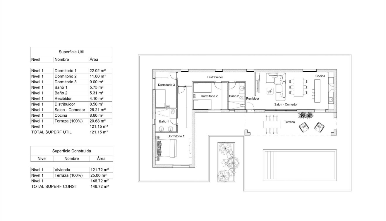
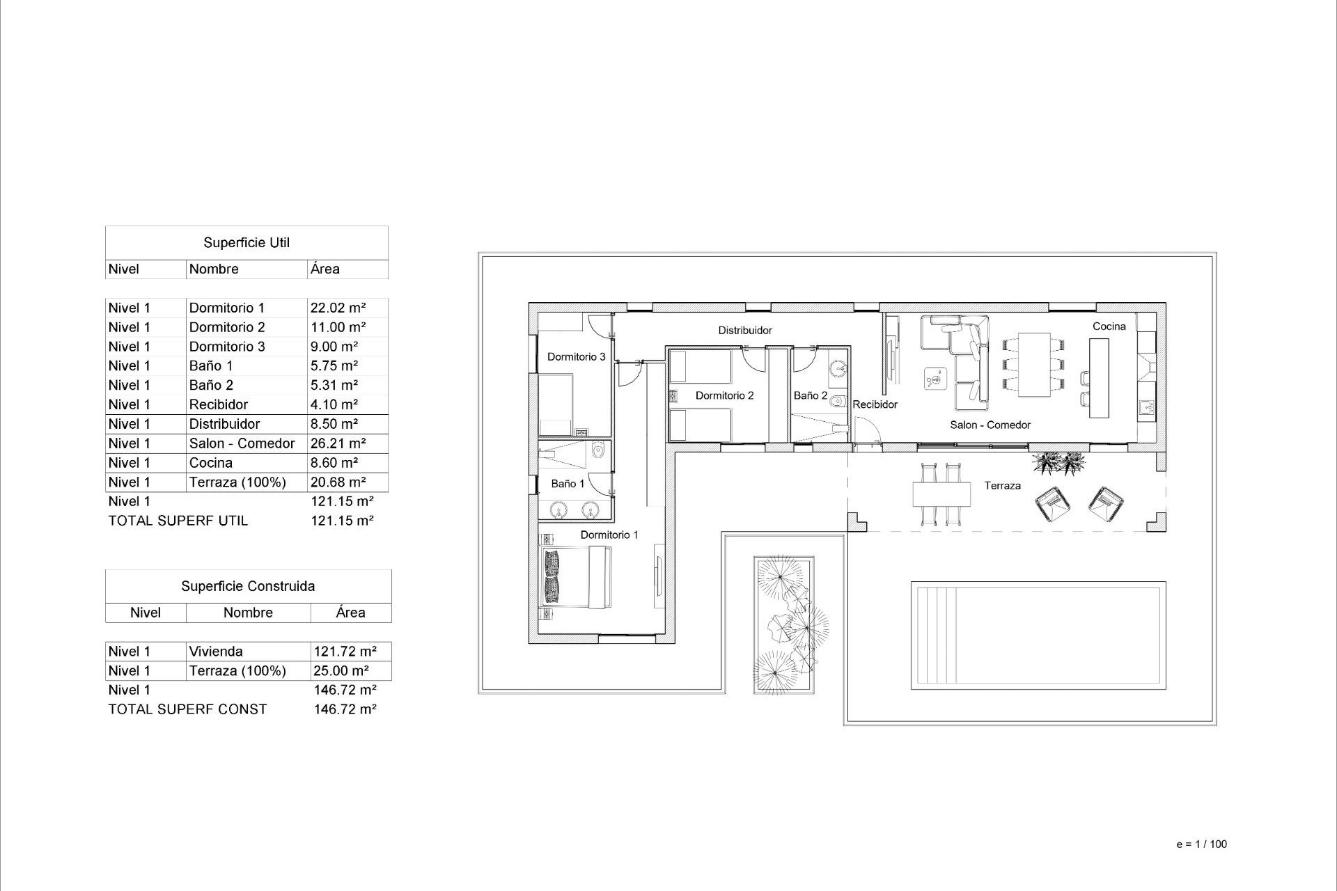
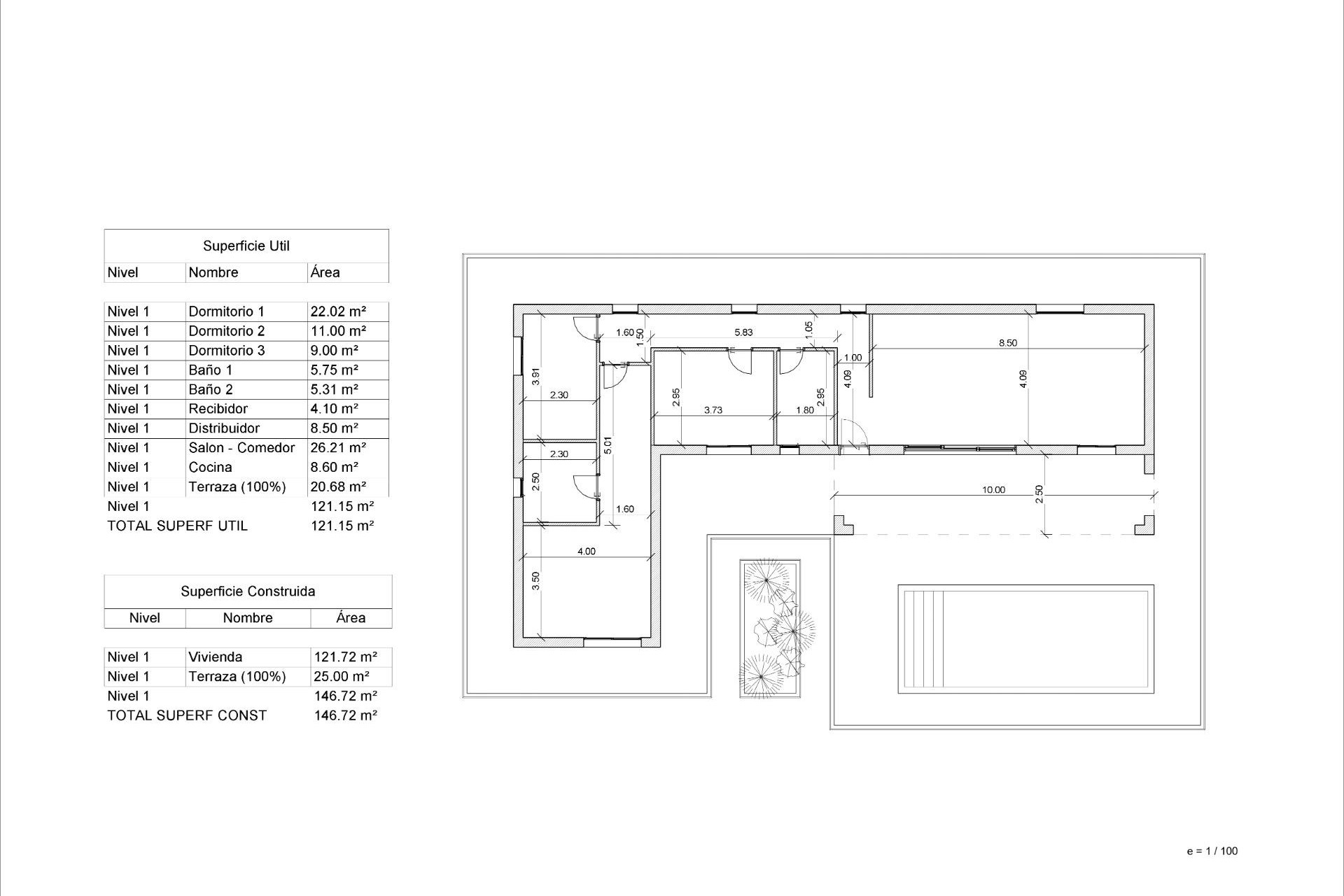
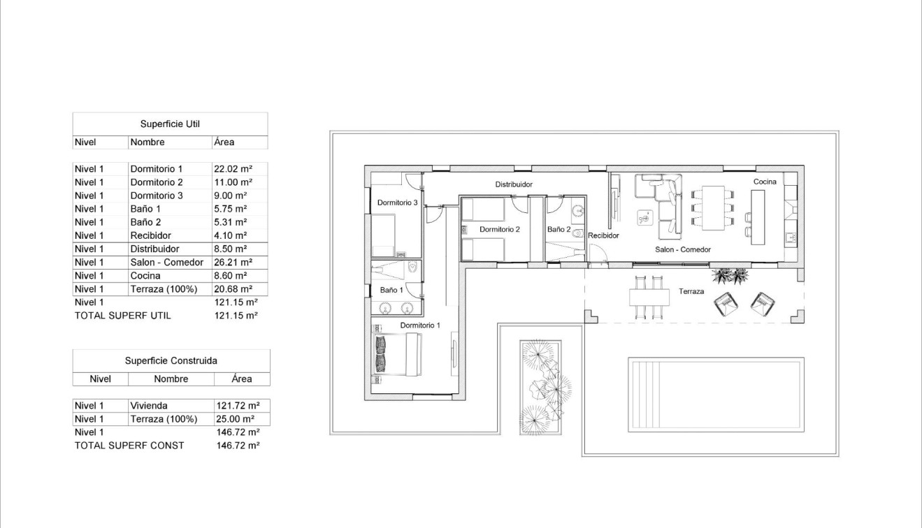
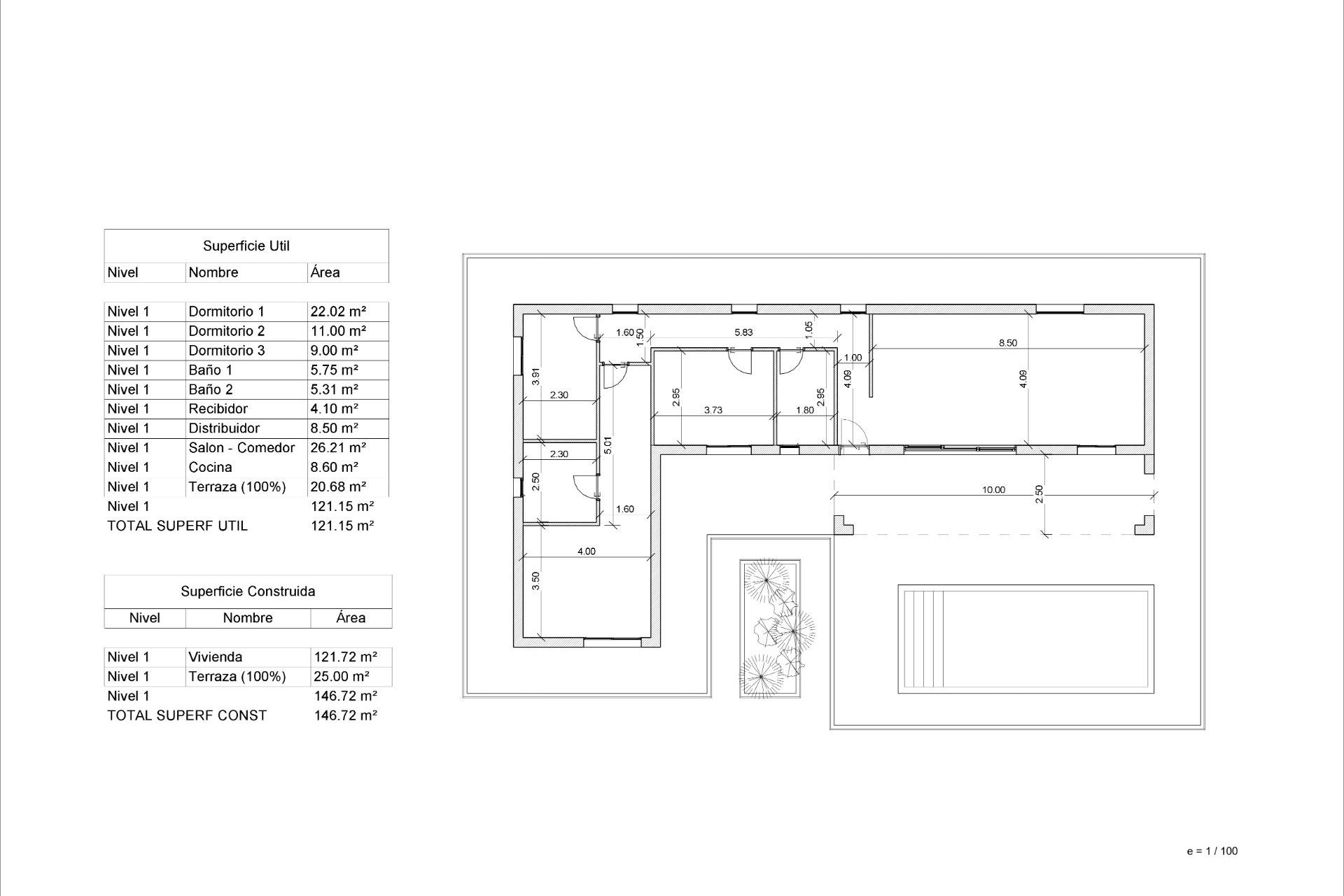
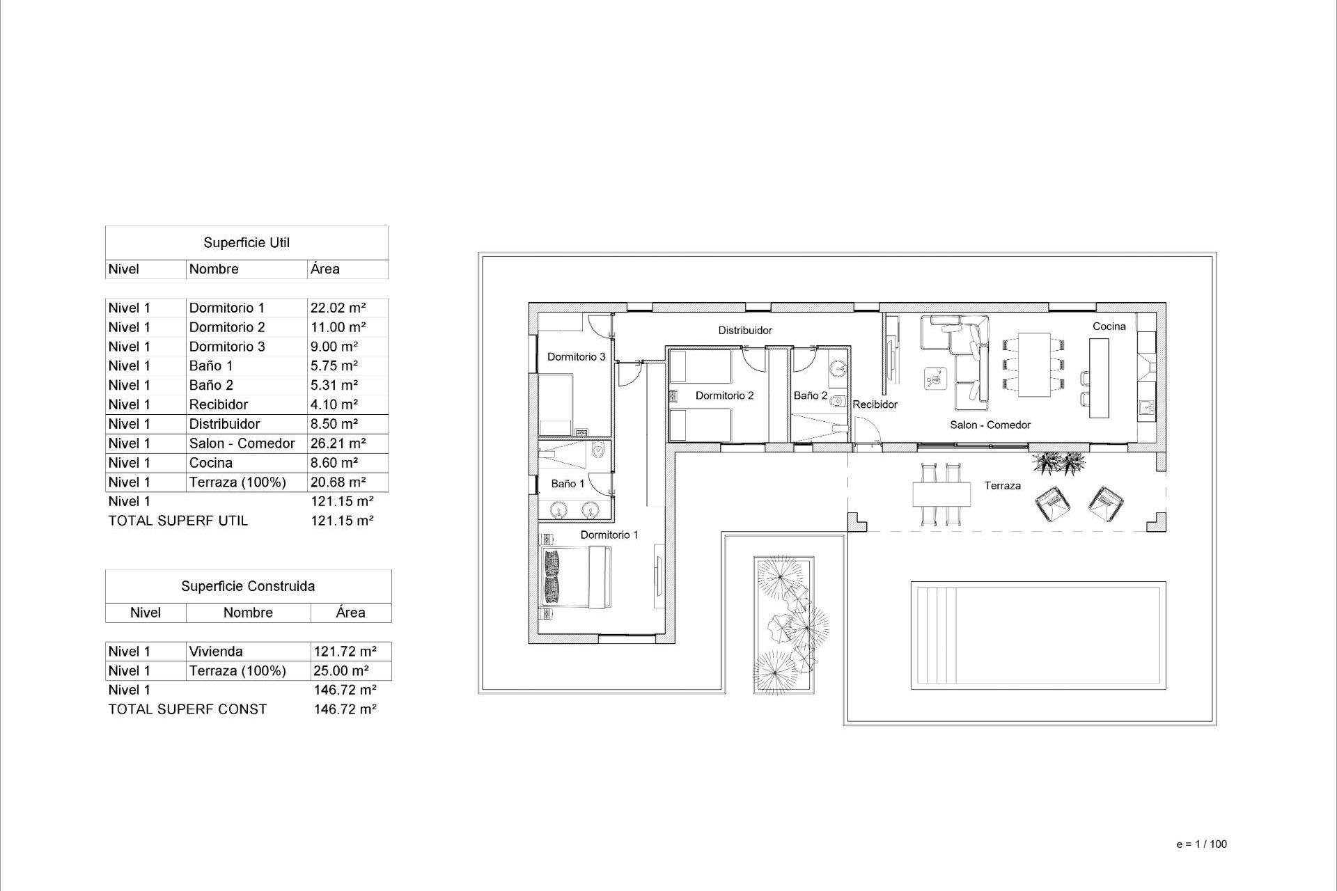
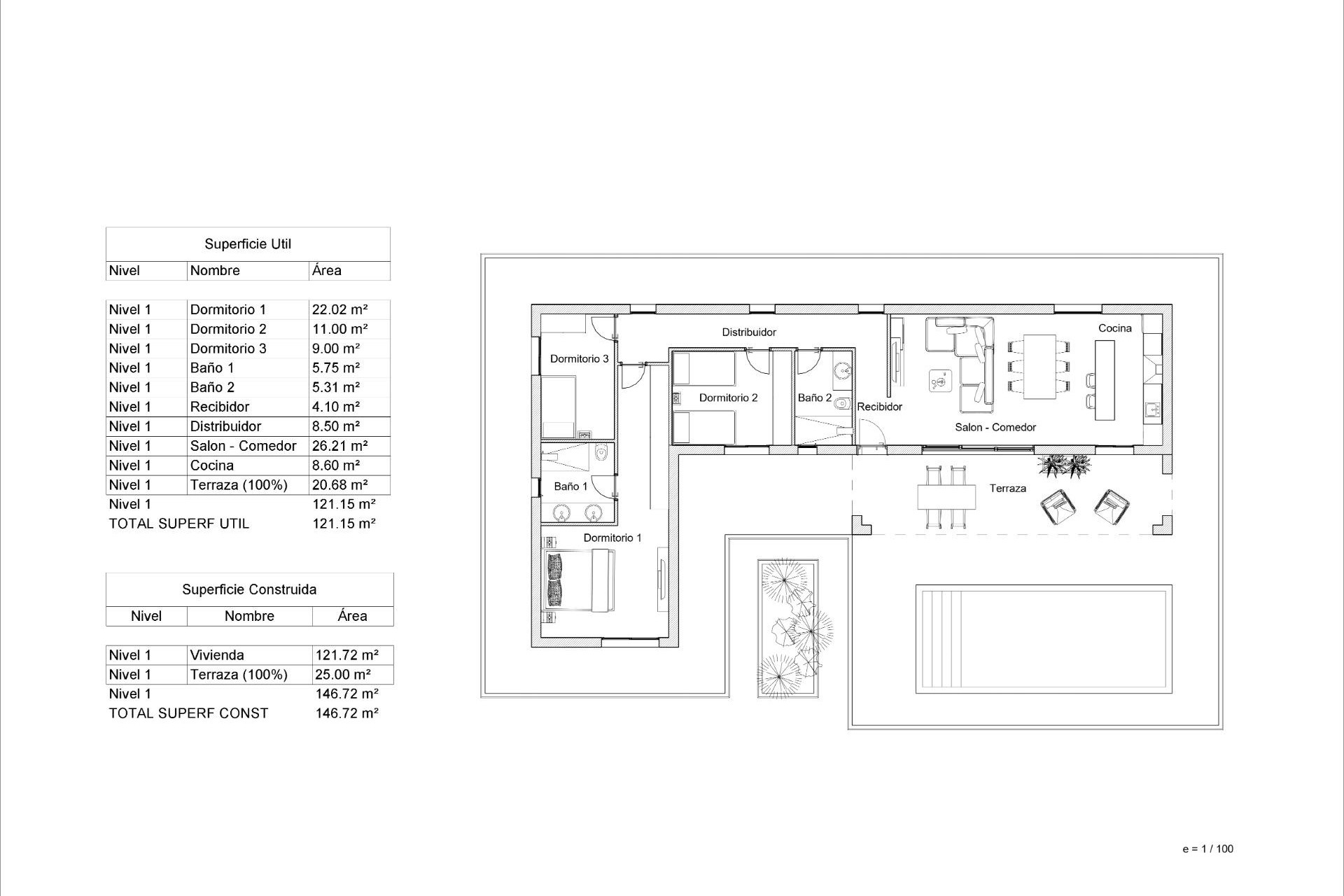
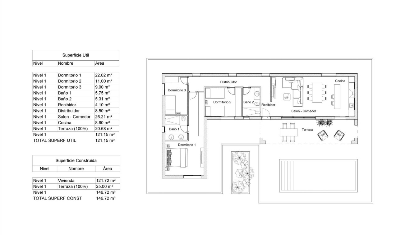
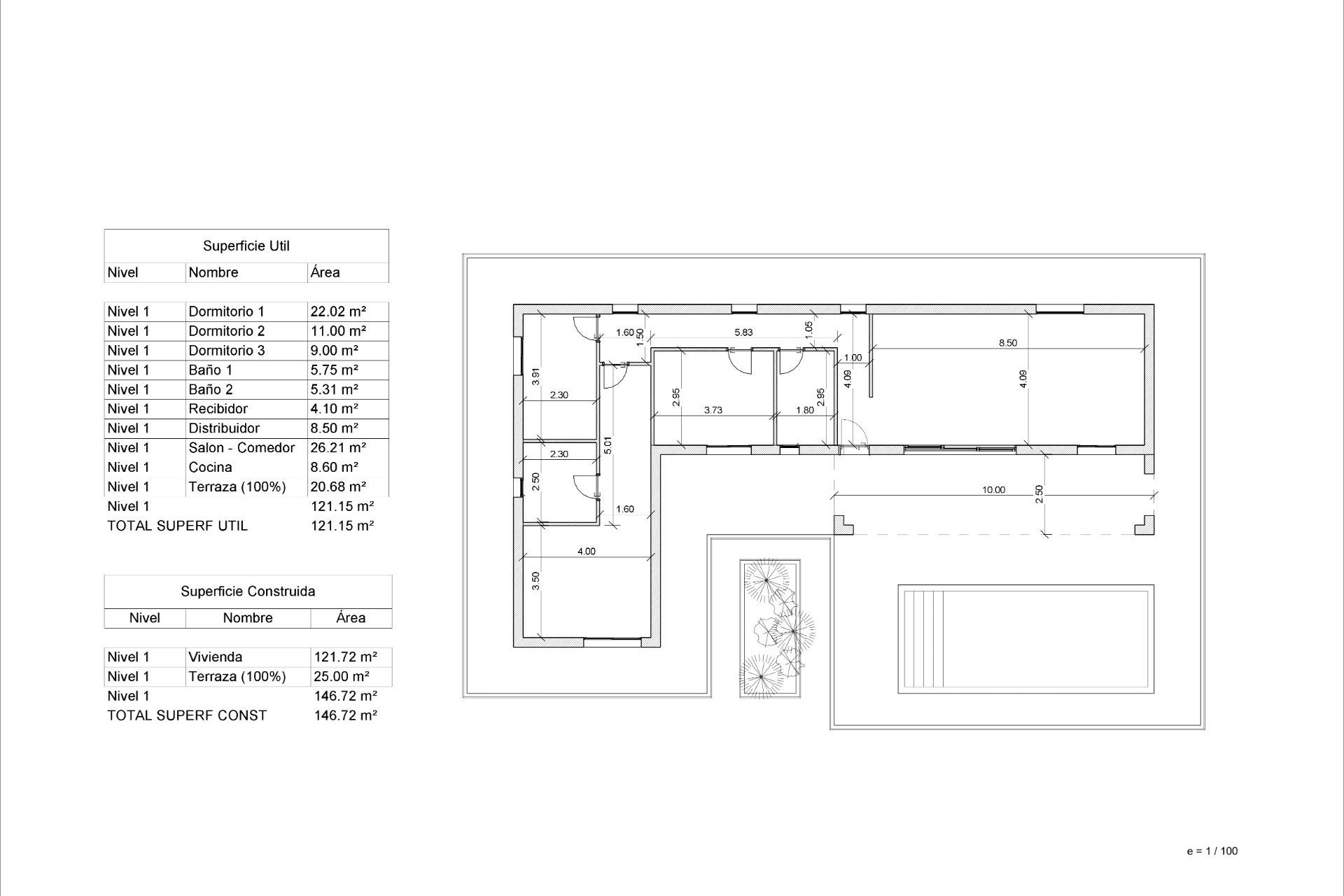
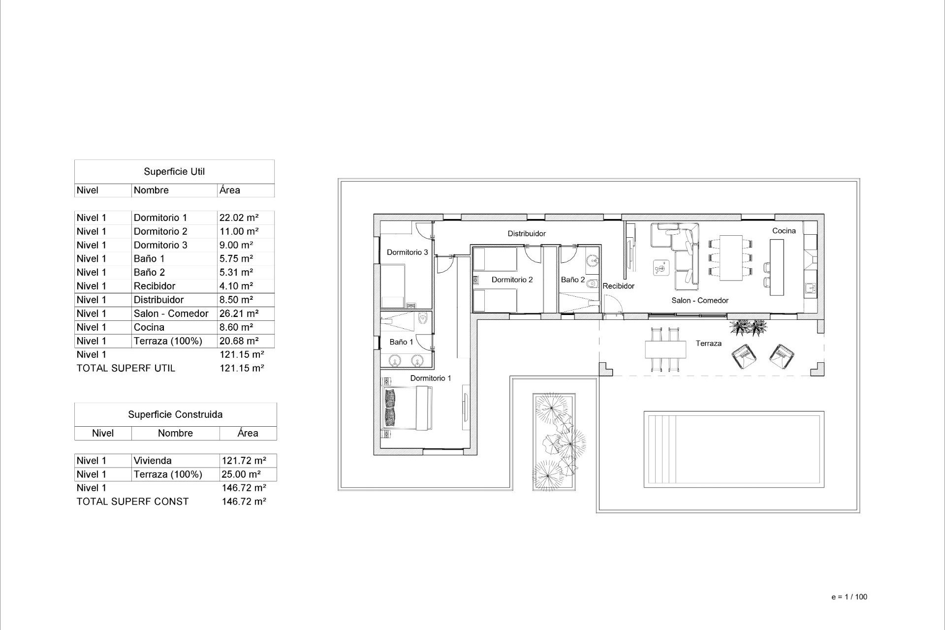
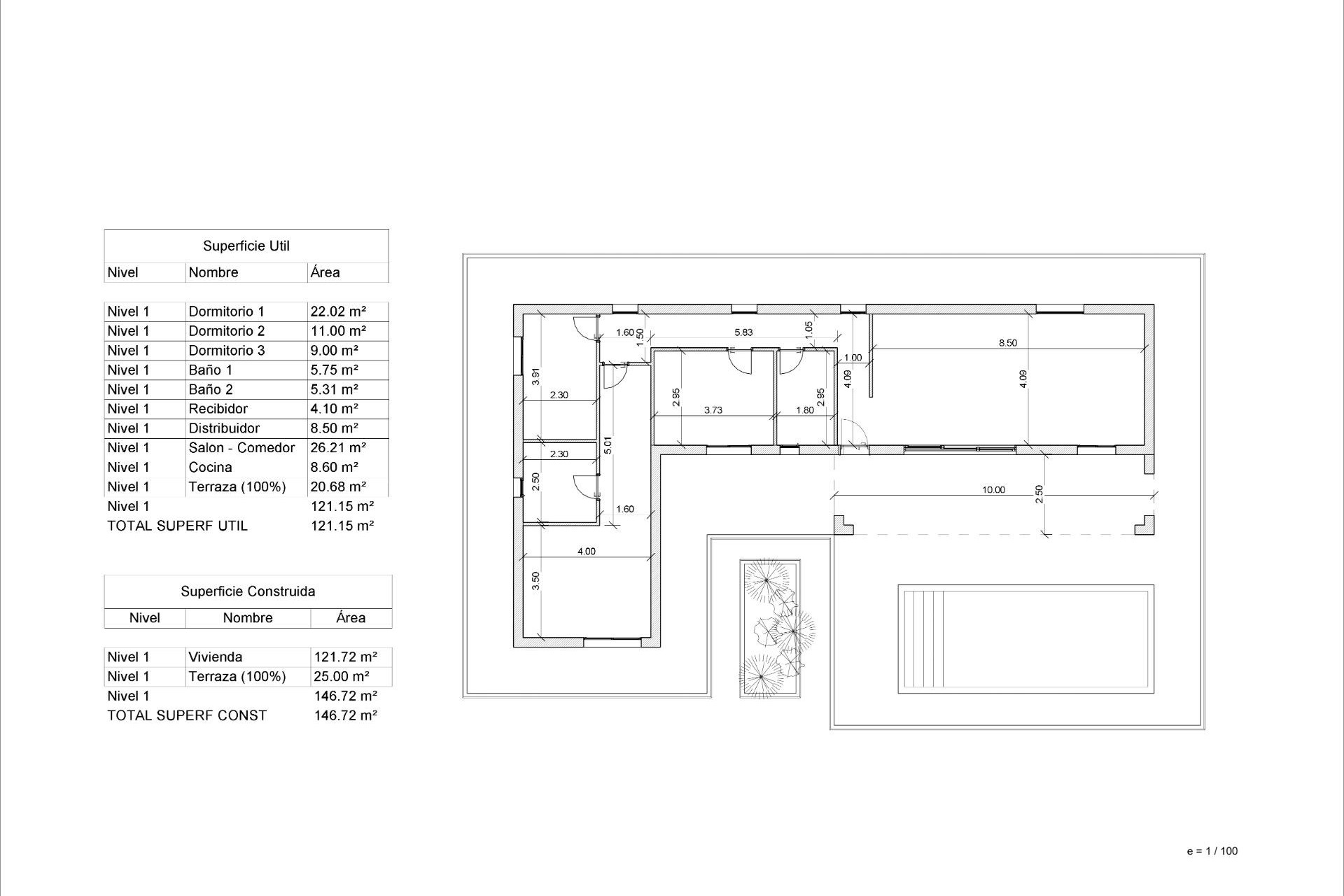
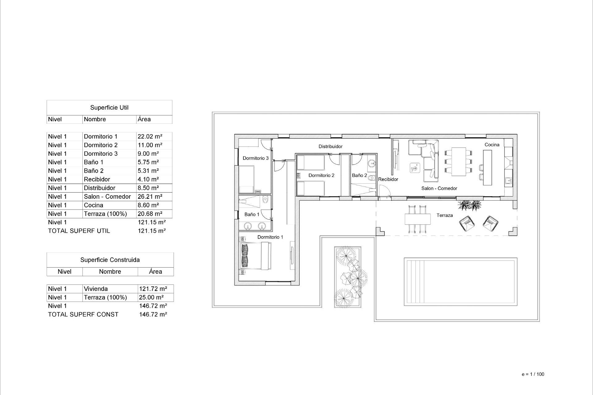
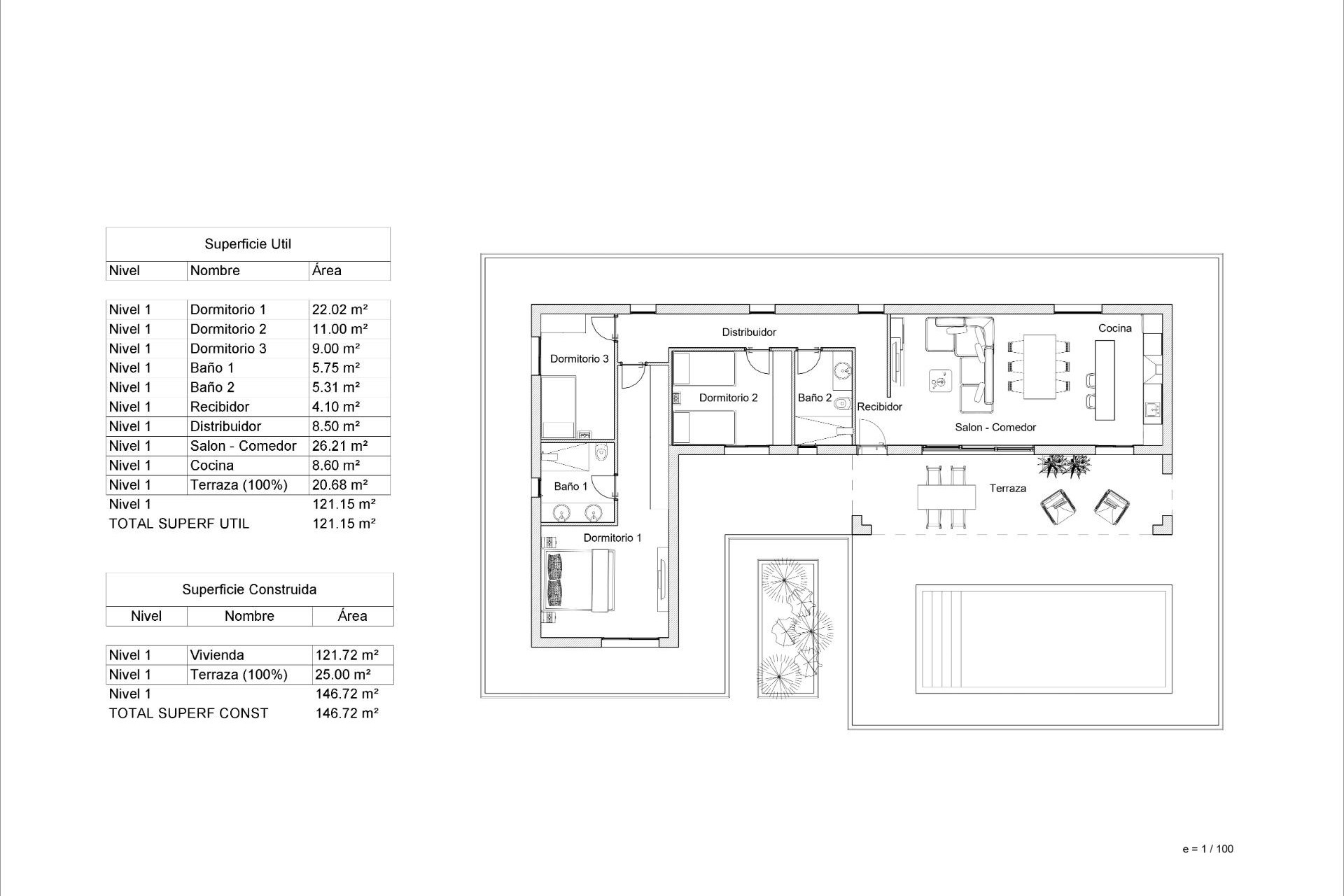
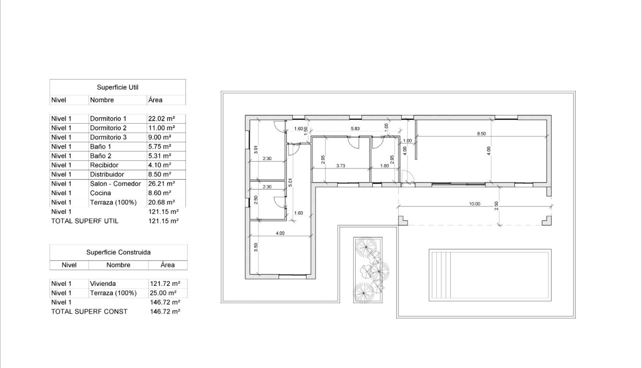
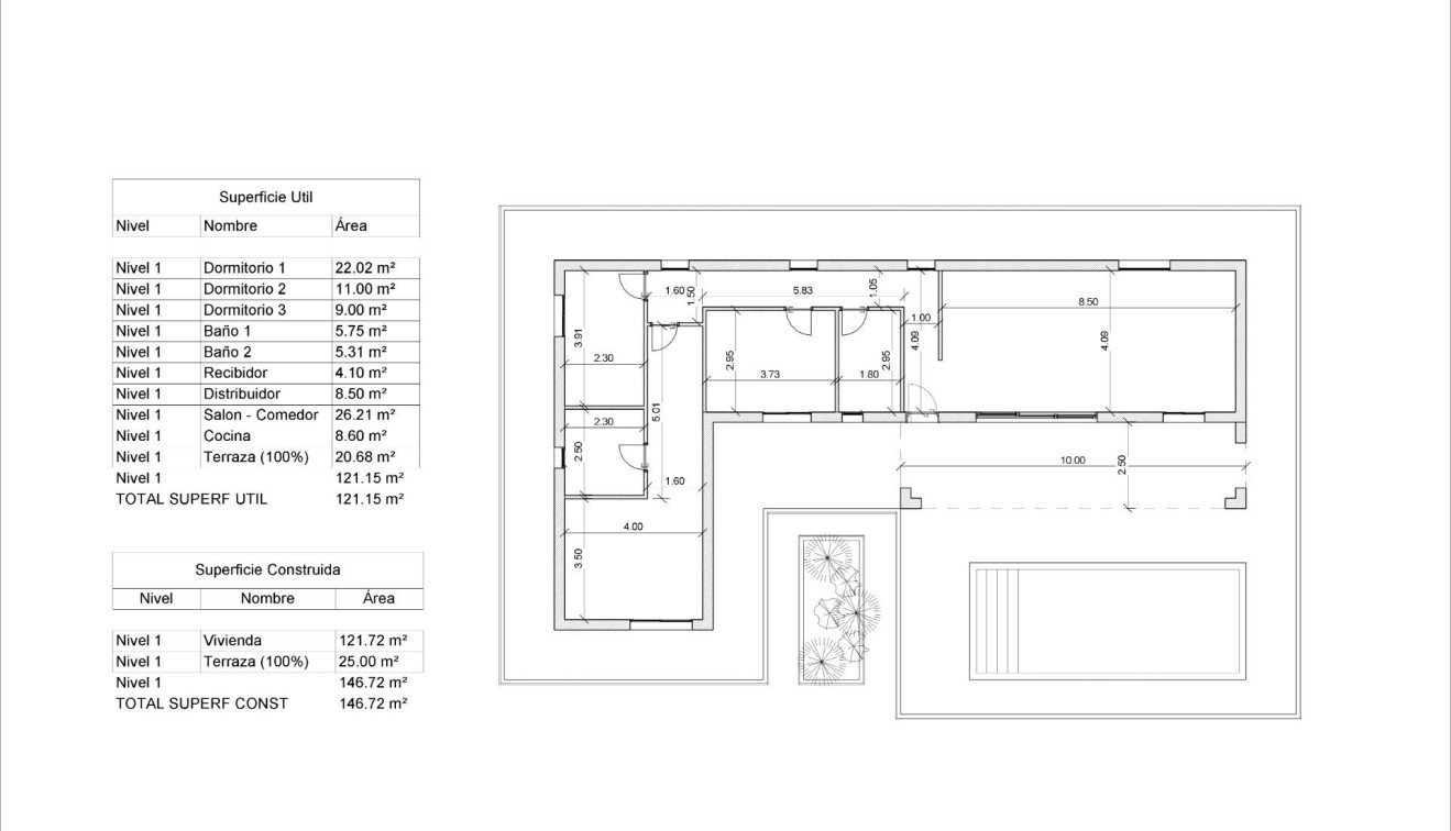
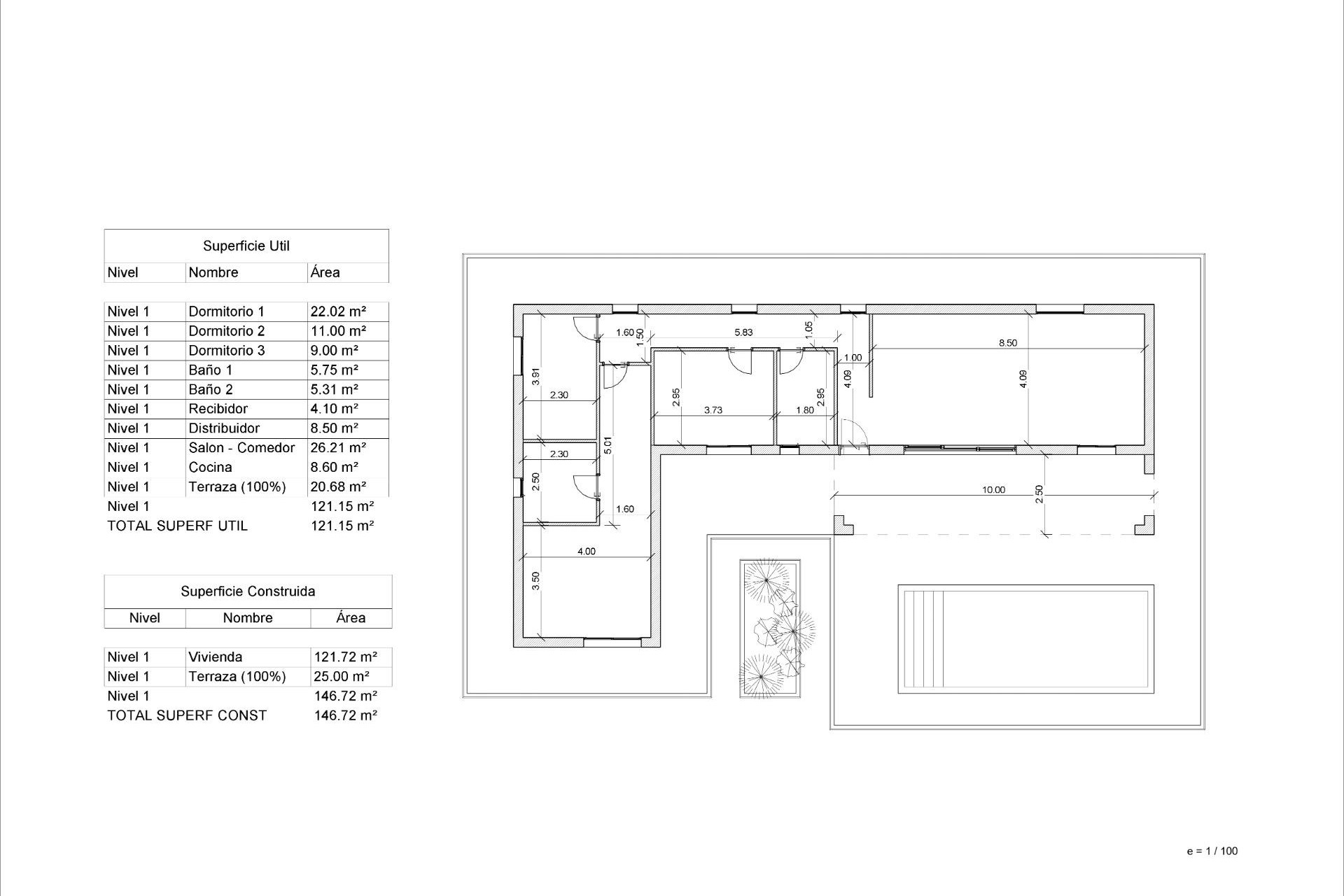
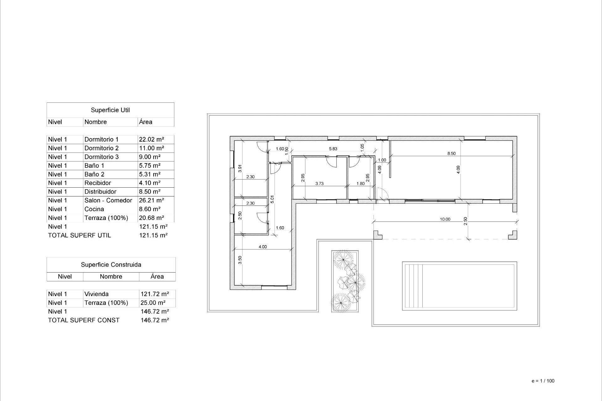
    146m2
  • Terrain

    10227m2
  • Chambres

    3
  • Salles de bains

    2
  • Piscine

    Oui
Chambres Chambres:

3

Nbr. Sdb Nbr. Sdb:

2

Construit Construit:

146m2

Terrain Terrain:

10227m2

Piscine Piscine:

Oui

Cour
Gated
Terrace: 20 Msq.
Near Schools
Double Bedrooms: 3
Number of Parking Spaces: 1
Air Conditioning: Pre-Installed
Private Pool
Useable Build Space: 120 Msq.
Parking - Space
Beach: 40000 Meters
Kine Tronstad

Kine Tronstad

Propriétaire / CEO
+34 618 100 733 kine@costablancabolig.com

Emplacement

Faire une demande

Responsable del tratamiento: Costablancabolig, SL, Finalidad del tratamiento: Gestión y control de los servicios ofrecidos a través de la página Web de Servicios inmobiliarios, Envío de información a traves de newsletter y otros, Legitimación: Por consentimiento, Destinatarios: No se cederan los datos, salvo para elaborar contabilidad, Derechos de las personas interesadas: Acceder, rectificar y suprimir los datos, solicitar la portabilidad de los mismos, oponerse altratamiento y solicitar la limitación de éste, Procedencia de los datos: El Propio interesado, Información Adicional: Puede consultarse la información adicional y detallada sobre protección de datos Aquí.
WhatsApp