Appartements neufs à La Nucía : un cadre de vie moderne à Ciudad del Deporte, près de Benidorm
Emplacement de choix à La Nucía, sur la Costa Blanca
Découvrez ce nouveau complexe résidentiel exceptionnel situé à La Nucía, l'un des quartiers les plus prisés de la Costa Blanca. Niché au cœur du quartier innovant de Ciudad del Deporte, cet emplacement offre un mélange unique d'infrastructures modernes, d'un cadre naturel et de commodités au quotidien. À seulement 7 km des plages de Benidorm et d'Altea, La Nucía est réputée pour son environnement paisible, ses excellentes installations sportives et sa qualité de vie exceptionnelle. La région dispose également d'écoles internationales, de zones commerciales et de tous les services essentiels à proximité, ce qui en fait un lieu idéal tant pour une résidence permanente que pour des séjours de vacances.
Des appartements contemporains conçus pour la vie méditerranéenne
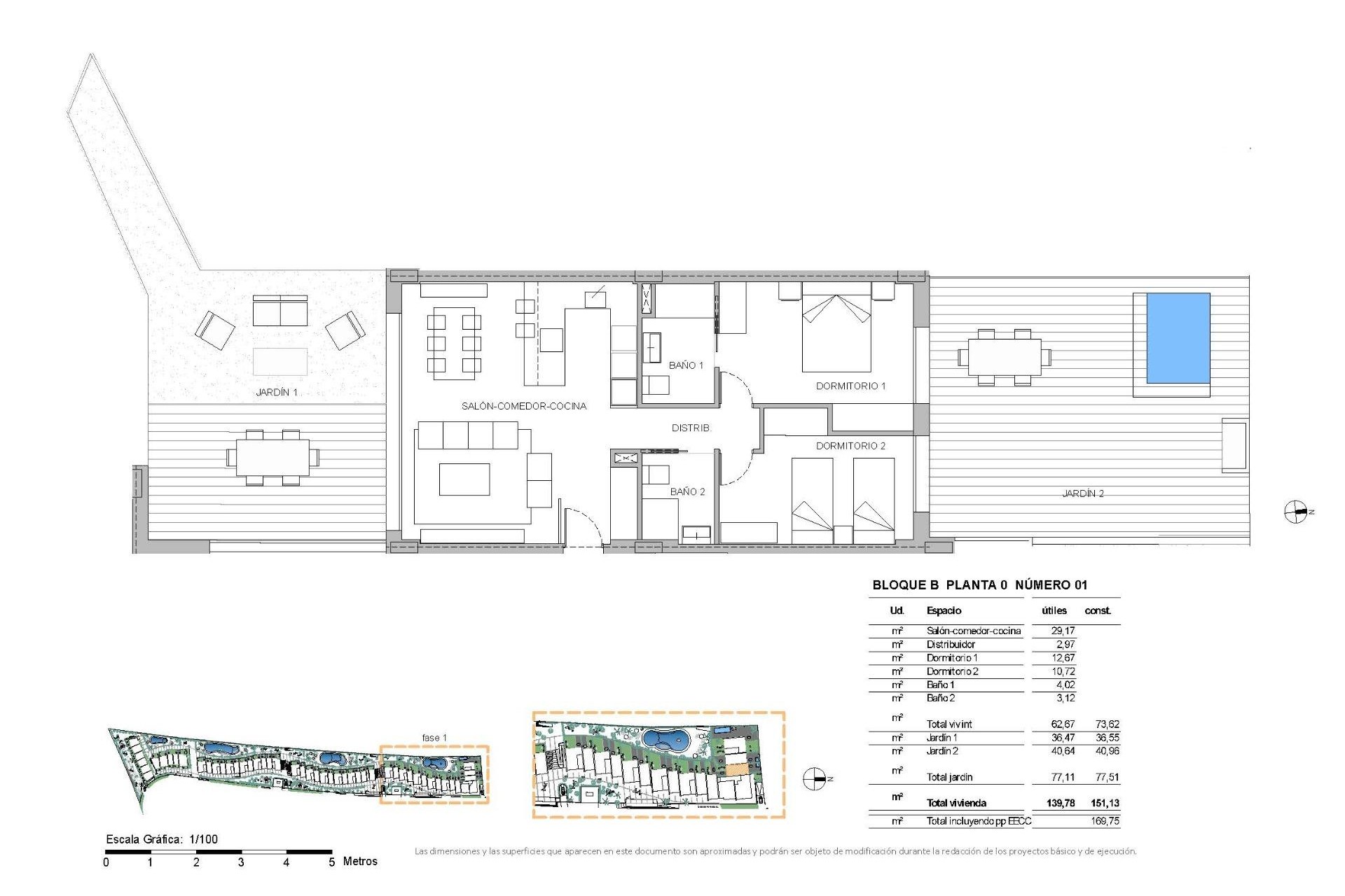
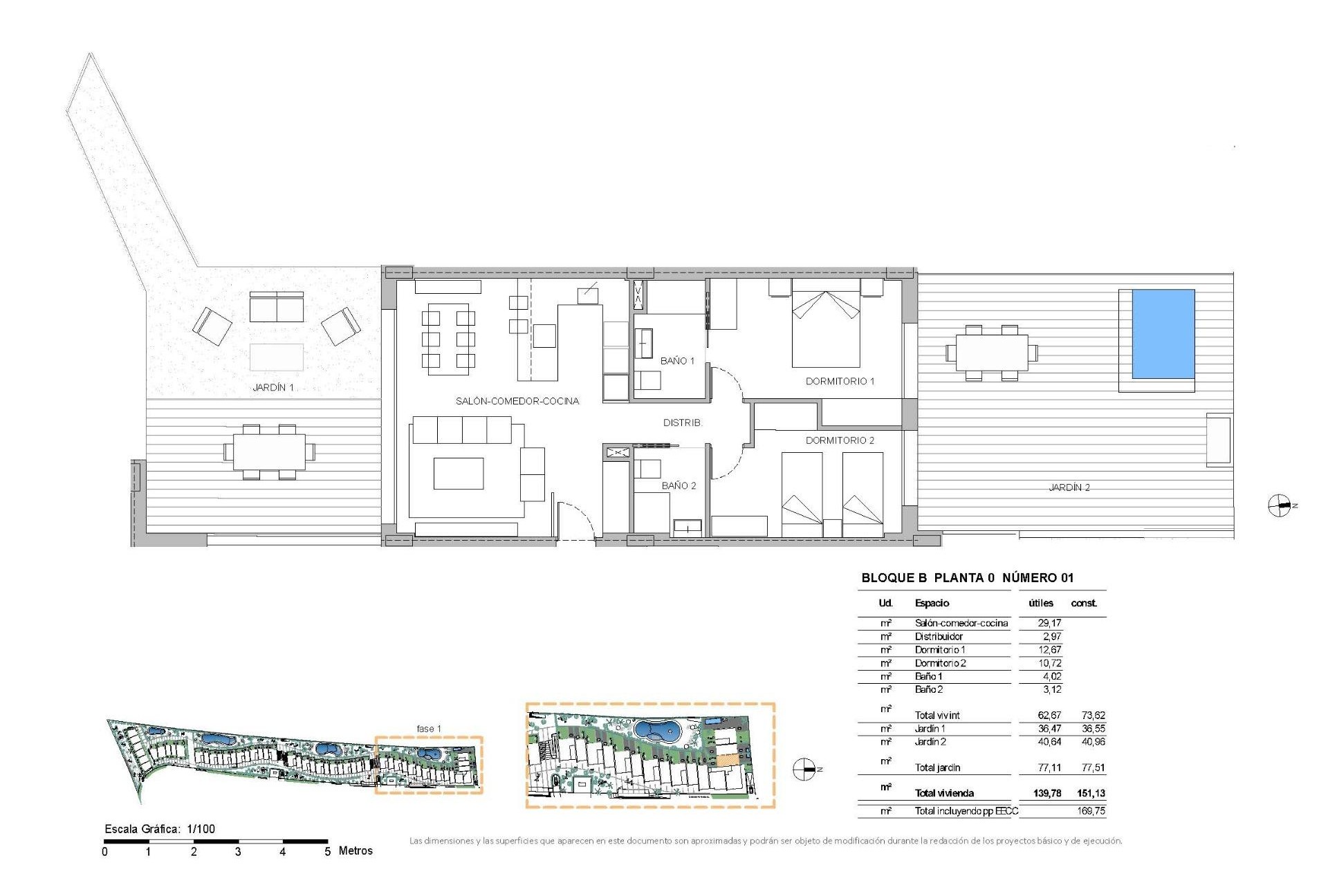
Cette première phase comprend 64 appartements élégants avec des agencements de 2 et 3 chambres. Les acheteurs peuvent choisir entre des logements au rez-de-chaussée avec jardin privé, des appartements aux étages intermédiaires avec de spacieuses terrasses ou des penthouses avec solarium privé. La plupart des propriétés disposent de deux grandes terrasses orientées à l'est et au sud-ouest, vous permettant de profiter du soleil tout au long de la journée et de tirer le meilleur parti du climat méditerranéen.
Les intérieurs sont conçus selon des agencements ouverts, maximisant la lumière naturelle et créant une transition fluide entre les espaces intérieurs et extérieurs. Les cuisines entièrement équipées d’appareils électroménagers Bosch s’intègrent parfaitement au salon, tandis que les salles de bains comprennent le chauffage au sol, un mobilier moderne, des miroirs et des parois de douche.
Finitions de haute qualité et efficacité énergétique
Chaque logement est construit avec des matériaux haut de gamme et des technologies modernes pour garantir confort et durabilité. Les équipements comprennent des fenêtres à double vitrage avec isolation thermique, des volets motorisés, des portes de sécurité renforcées et un système aérothermique pour l'eau chaude et la climatisation. Chaque appartement dispose également d'une place de parking privée et d'un débarras dans le garage souterrain.
Espaces communs exclusifs pour le bien-être et l'art de vivre
Le complexe offre des équipements communs exceptionnels conçus pour la détente, les loisirs et la productivité. Les résidents peuvent profiter d'une grande piscine entourée de jardins paysagers, d'une salle de sport entièrement équipée et d'un spa de bien-être de plus de 200 m² avec jacuzzi, sauna et bain turc. Les équipements supplémentaires comprennent un club social avec des espaces de coworking et une aire de jeux pour enfants, créant ainsi un environnement communautaire dynamique et confortable.
Excellente connectivité et points d'intérêt à proximité
Plages de Benidorm 7 km
Altea 8 km
Centre-ville de La Nucía 3 km
Aéroport d'Alicante 60 km
Villaitana Golf 6 km
Port d'Altea 10 km
Opportunité d'investissement et art de vivre méditerranéen
Ce programme immobilier offre non seulement un logement moderne, mais aussi une excellente opportunité d'investissement, avec des services optionnels de gestion locative conçus pour maximiser le rendement lorsque le logement n'est pas occupé. Contactez-nous dès aujourd'hui pour recevoir plus d'informations ou pour organiser une visite et réserver votre nouvelle propriété à La Nucía.
291
Mètres
73m2Terrain
36m2Chambres
2Salles de bains
2Piscine
Oui2
2
73m2
36m2
Oui