VILLAS NEUVES A FINESTRAT
Projet de construction neuve de 10 villas au design moderne, dans un cadre naturel avec vue sur la mer et les montagnes, à proximité du terrain de golf Puig Campana, et à courte distance des villes de Finestrat et Benidorm.
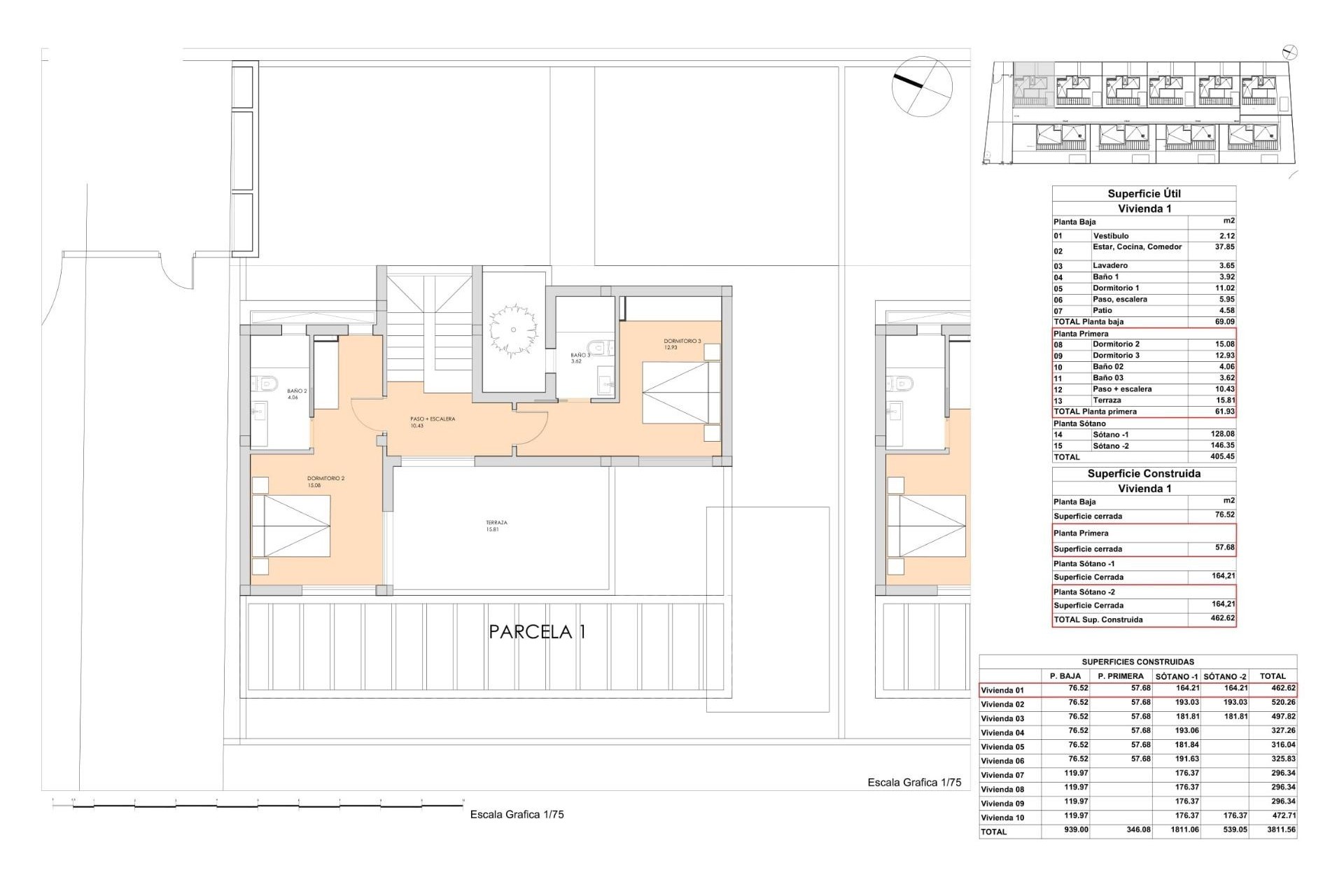
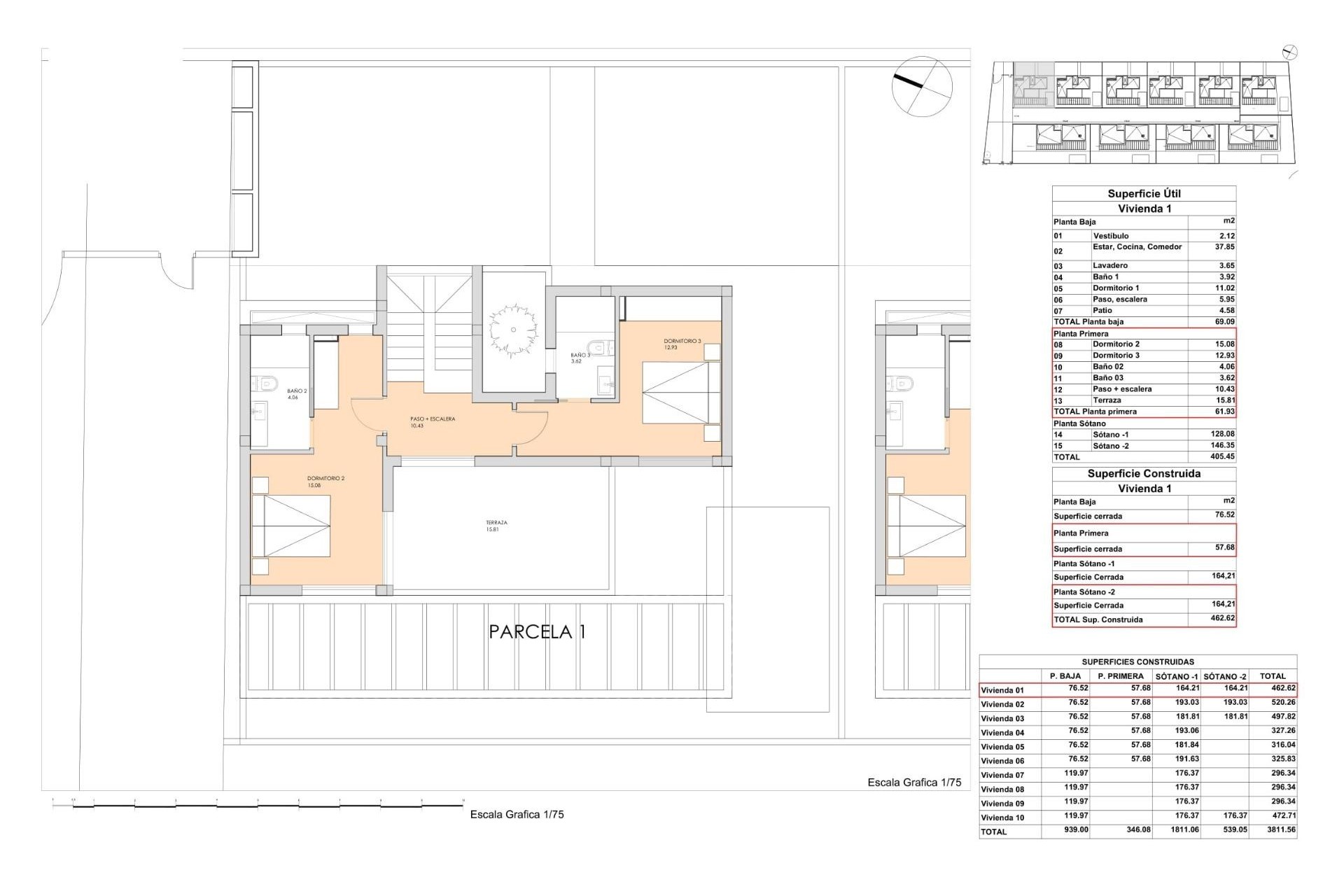
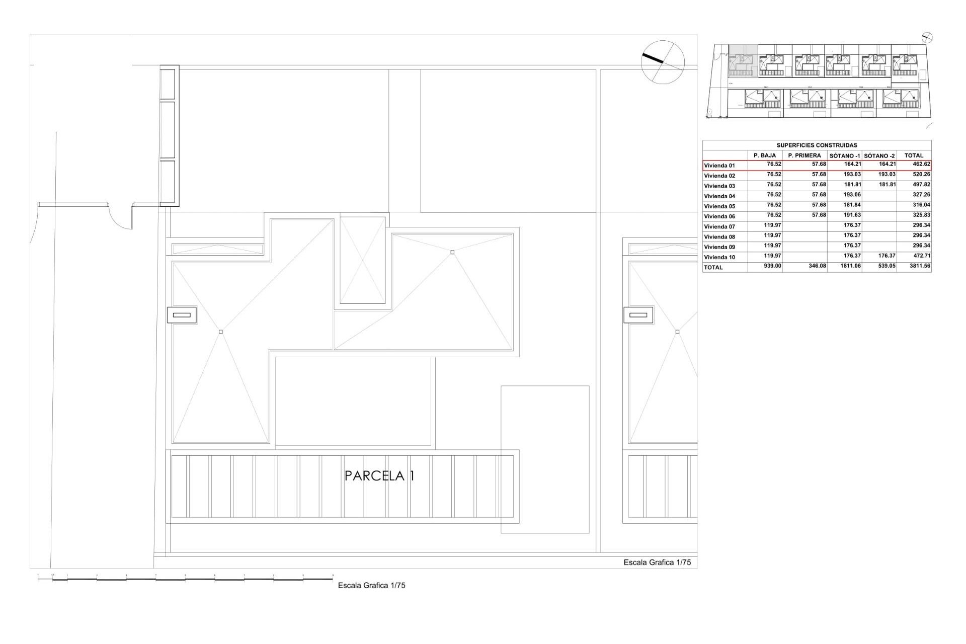
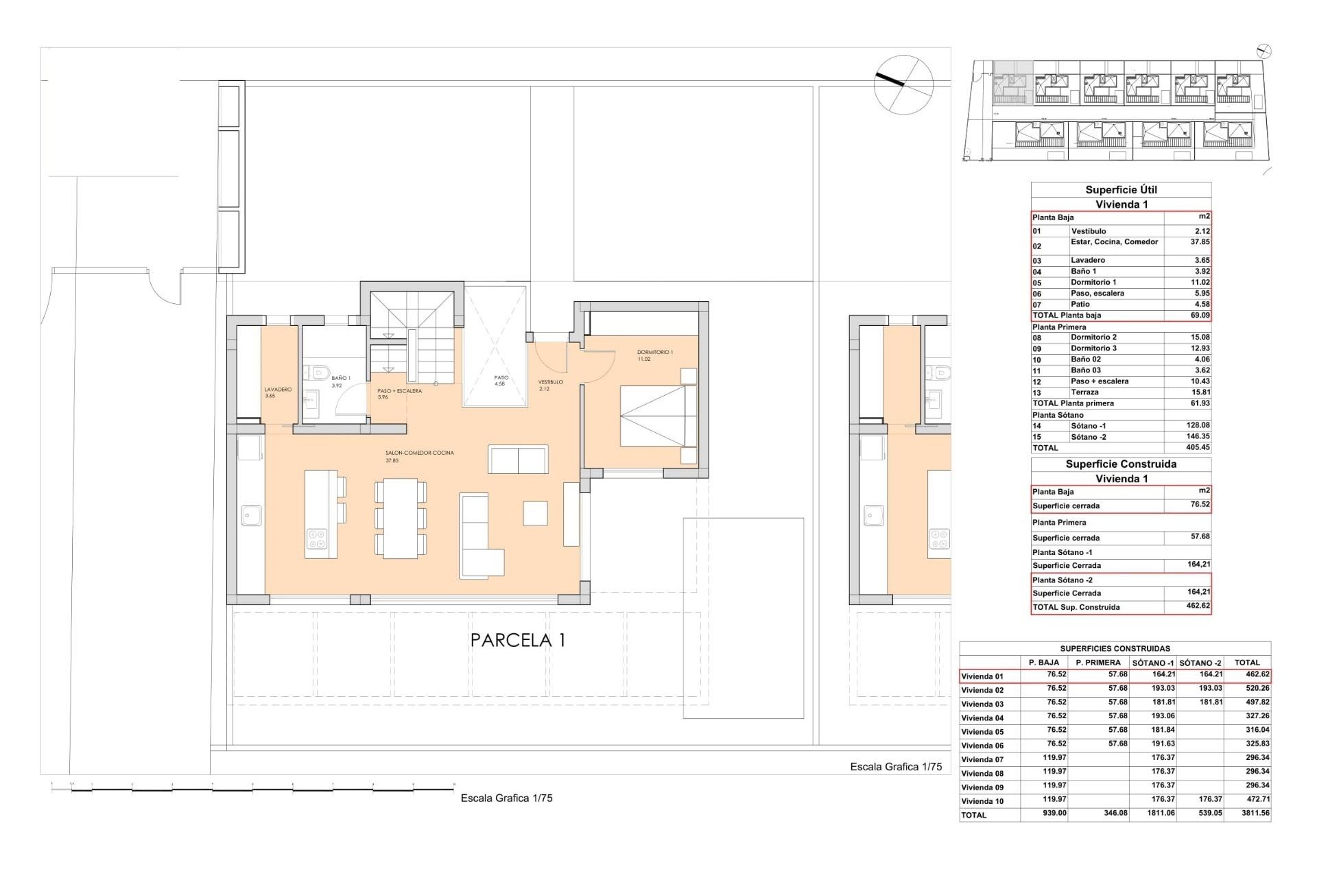
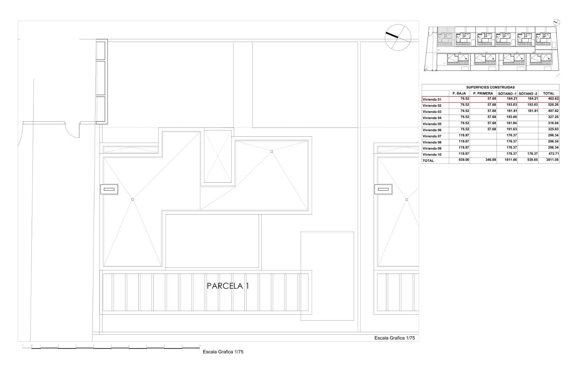
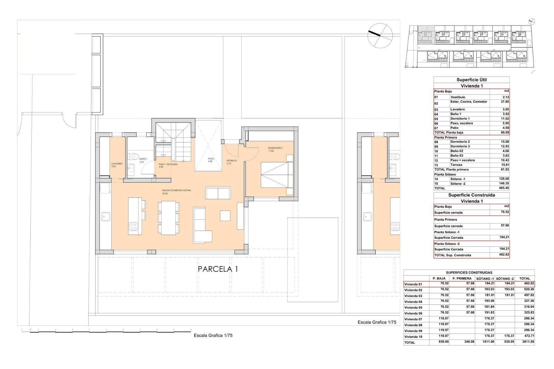
Le projet sera divisé en deux phases de construction, qui comprendront à leur tour deux types de maisons, avec 1 ou 2 étages, 3 chambres doubles, 2 ou 3 salles de bains complètes, salon-salle à manger avec cuisine intégrée, buanderie, grande terrasse et jardin, piscine privée, parking extérieur, 1 ou 2 sous-sols polyvalents et dans certains modèles un garage souterrain fermé.
Possibilité de solarium moyennant un supplément.
Des villas construites avec les meilleures qualités et les dernières avancées en matière de construction, entre autres :
- Des garde-corps en verre qui ne rompent pas la continuité des vues.
- Sol en grès cérame de première qualité.
- Porte d'entrée blindée.
- Menuiserie extérieure en aluminium avec rupture de pont thermique et double vitrage isolant à faible émissivité avec chambre d'air et sécurité dans les zones à risque de rupture.
- Menuiserie intérieure lisse, en bois laqué blanc, avec poignées et ferrures en acier inoxydable.
- Armoires coulissantes et dressings entièrement équipés.
- Production d'eau chaude sanitaire par un système de pompe à chaleur avec un réservoir d'accumulation de 100 litres, avec l'appui de panneaux solaires sur le toit.
- Installation électrique de haute qualité de 9,2 kW.
- Installation de l'air conditionné par des gaines avec des machines incluses.
- Cuisines au design minimaliste, entièrement équipées avec îlot, meubles et appareils électroménagers inclus.
- Piscine privée avec éclairage et zone de plage avec pavés ou gazon artificiel.
- Sous-sol polyvalent entièrement personnalisable, selon le modèle, avec un garage pour un véhicule et une pré-installation pour un véhicule électrique.
Villas est situé dans un environnement privilégié sur la Costa Blanca, dans une zone surélevée au pied des montagnes, entouré par la nature et d'autres urbanisations similaires, avec d'excellentes vues sur la mer et ses environs. Très bien relié par la route à la ville voisine de Finestrat, à 10 minutes en voiture des centres commerciaux, de l'autoroute A7, des plages et des villes voisines de Benidorm et Villajoyosa, et à 30 minutes de la ville d'Alicante et de son aéroport international.