Résidences neuves exclusives à Pilar de la Horadada, Costa Blanca
Un style de vie méditerranéen moderne près de la plage
Découvrez ce nouveau programme immobilier exclusif de seulement 8 maisons contemporaines à Pilar de la Horadada, situé à quelques pas du centre-ville et à seulement 3,5 km des belles plages de Torre de la Horadada et Mil Palmeras. Cette charmante ville côtière, située à l'extrémité sud de la Costa Blanca, est connue pour son atmosphère détendue, son charme espagnol traditionnel et ses excellentes commodités. Les résidents bénéficient d'un large éventail de services, notamment des supermarchés, des restaurants, des magasins et des zones de loisirs, tous situés à quelques minutes seulement.
Des maisons élégantes conçues pour le confort et le style
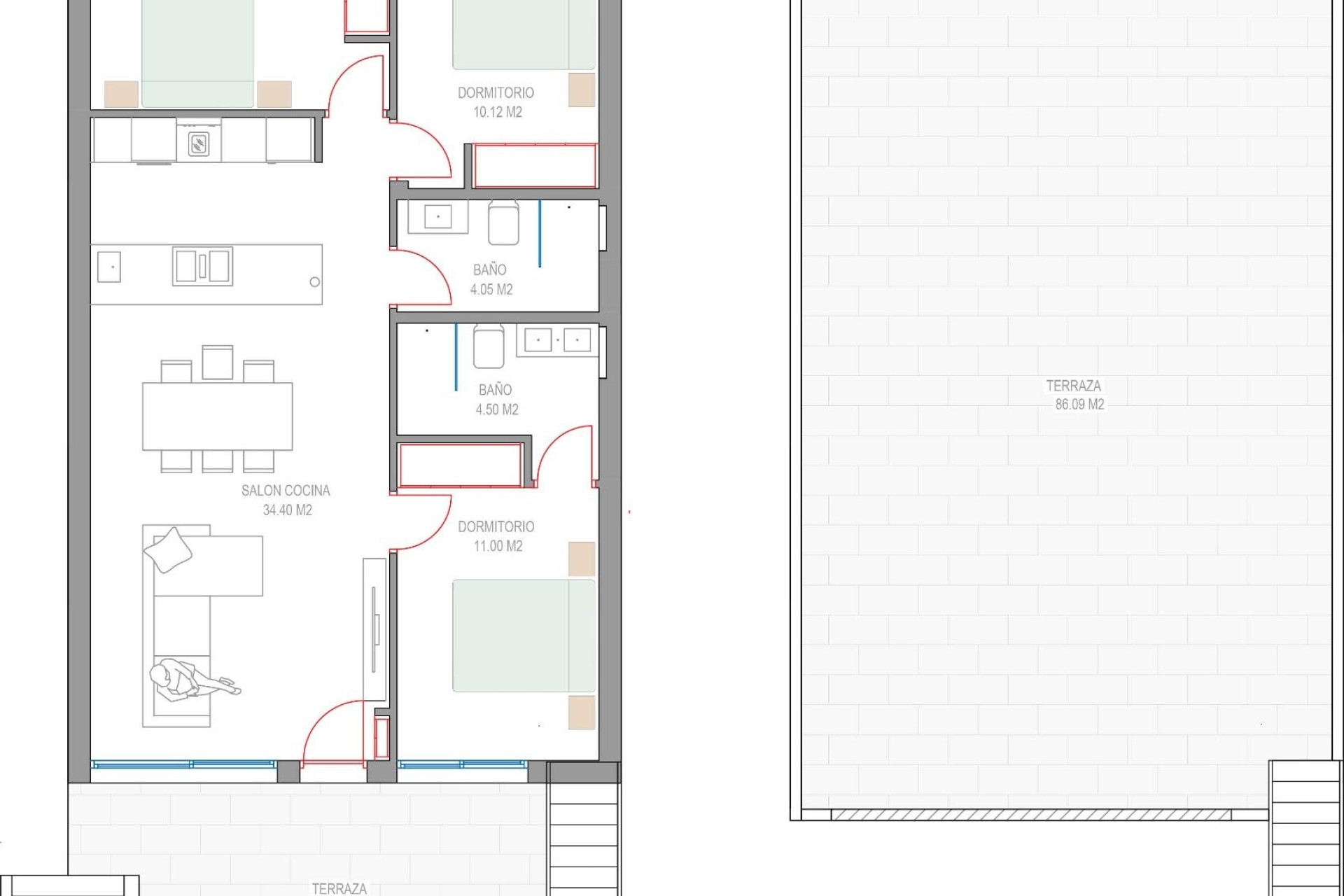
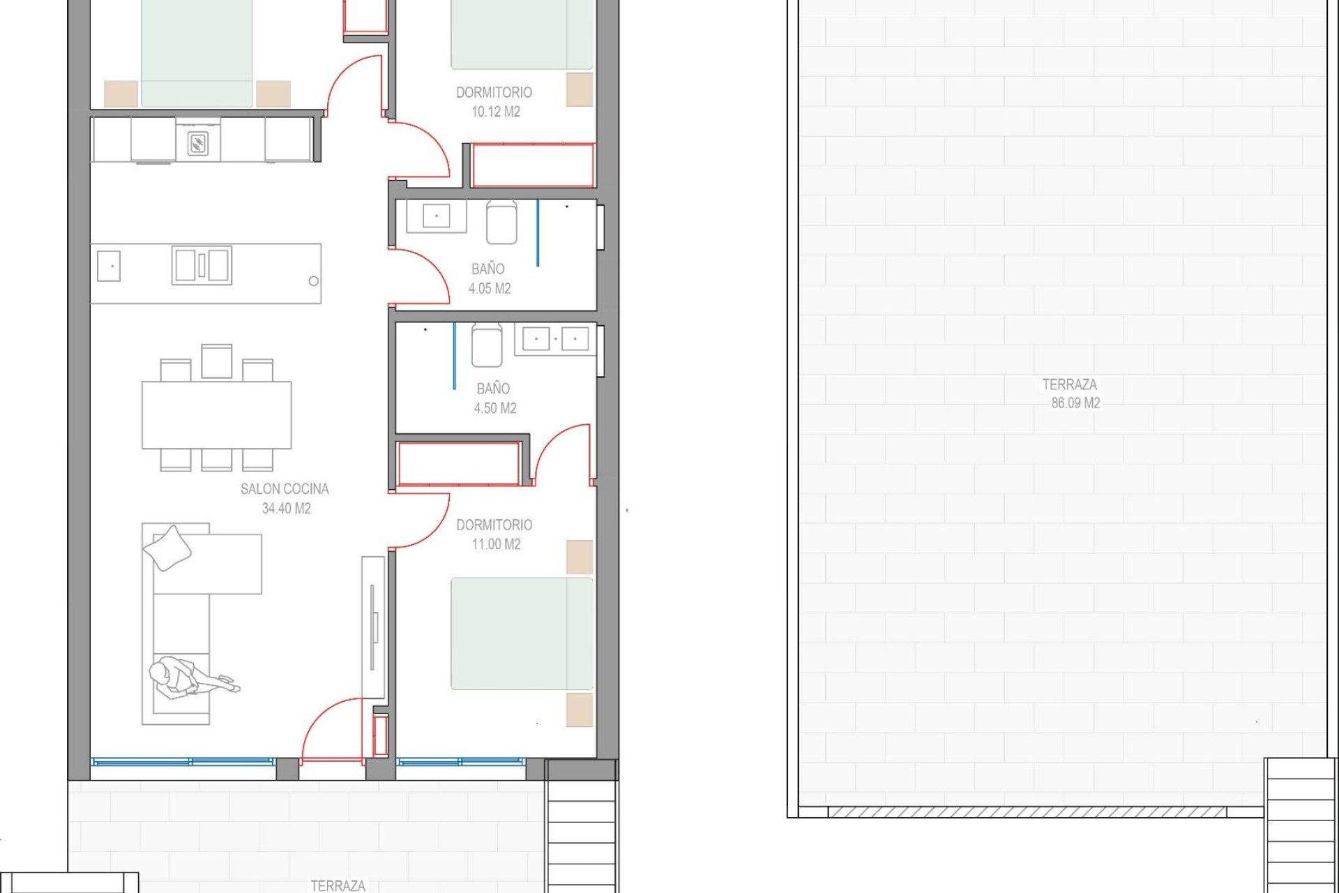
Le complexe propose une sélection d'appartements au rez-de-chaussée avec terrasses et jardins privés, ou d'appartements au dernier étage avec terrasses spacieuses et solariums privés. Chaque maison comprend 3 chambres et 2 salles de bains, dont une en suite, conçues avec des lignes modernes et des finitions de haute qualité pour assurer un confort maximal.
Le complexe résidentiel dispose d'une piscine commune entourée de jardins paysagers, créant un environnement accueillant et paisible propice à la détente et aux loisirs. Chaque propriété comprend également une place de parking privée et un débarras.
Finitions de haute qualité et équipements haut de gamme
Ces nouvelles maisons ont été construites avec des matériaux de première qualité et une attention particulière portée aux détails. Les principales caractéristiques sont les suivantes :
Menuiserie extérieure en aluminium gris anthracite avec rupture de pont thermique (marque CORTIZO)
Quadruple vitrage avec protection solaire
Volets électriques en aluminium dans les chambres
Toilettes suspendues et douches à l'italienne avec sol intégré
Meubles de salle de bains avec miroirs rétroéclairés par LED et sèche-serviettes électriques
Cuisine entièrement équipée avec appareils électroménagers Miele
Éclairage intérieur et extérieur à LED dans toute la maison
Installation complète de climatisation par conduits (système Fujitsu)
Emplacement idéal sur la Costa Blanca
Pilar de la Horadada est idéalement située pour y vivre à l'année ou y passer ses vacances. La ville combine le meilleur de la vie traditionnelle espagnole avec des infrastructures modernes et la proximité de la mer.
Distances principales :
Plages de Torre de la Horadada et Mil Palmeras : 3,5 km
Parcours de golf Lo Romero : 6 km
Aéroport de Murcie-Corvera : 40 km
Aéroport d'Alicante : 55 km
Port de plaisance de San Pedro del Pinatar : 10 km
Votre nouvelle maison au soleil vous attend
Profitez de la combinaison parfaite entre design, confort et style de vie méditerranéen dans ces maisons neuves à Pilar de la Horadada. Que vous recherchiez une résidence secondaire ou une résidence principale, ce projet exclusif offre l'équilibre idéal entre qualité, emplacement et modernité.
Contactez-nous dès aujourd'hui pour plus d'informations ou pour organiser une visite.