Torrevieja. Alicante Bungalow - Nouvelle construction

Réf: RD-38325

259.000€

Torrevieja. Alicante Bungalow - Nouvelle construction

  • Mètres

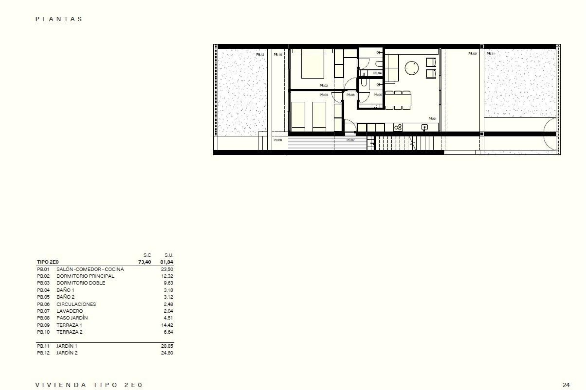
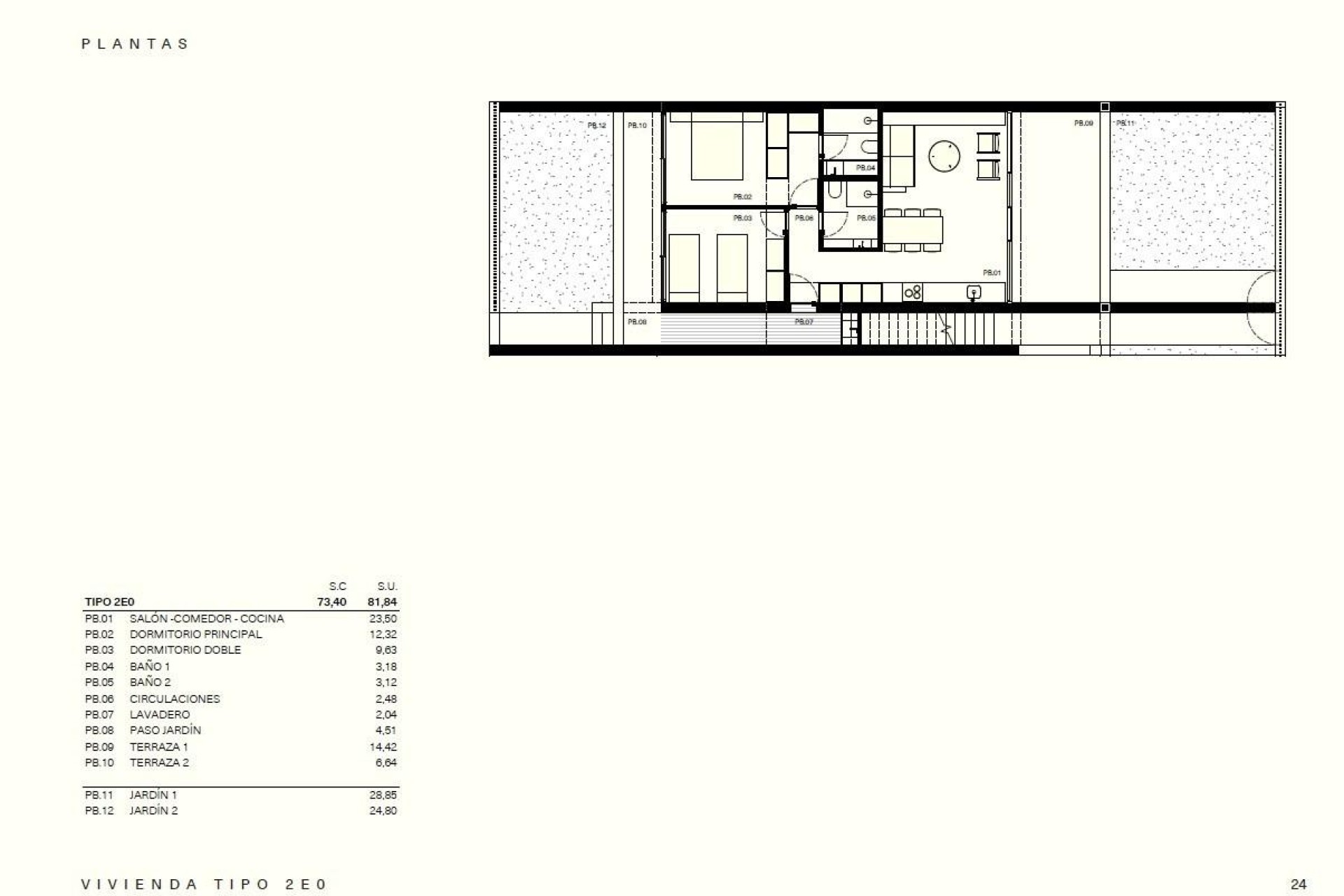
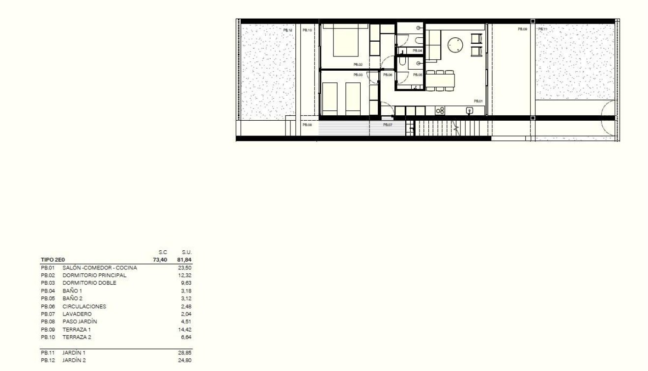
    81m2
  • Terrain

    53m2
  • Chambres

    2
  • Salles de bains

    2
  • Piscine

    Oui
Chambres Chambres:

2

Nbr. Sdb Nbr. Sdb:

2

Construit Construit:

81m2

Terrain Terrain:

53m2

Piscine Piscine:

Oui

Communal Pool
Gated
Terrace: 20 Msq.
Space
Near Golf / Golf Resort Property
Near Schools
Near Commercial Center
Location: Coastal, Urbanisation
Number of Parking Spaces: 1
Air Conditioning: Pre-Installed
Under-Build / Basement
Double Bedrooms: 2
Useable Build Space: 73 Msq.
Beach: 3500 Meters
Storage / Trastero
Cour
Kine Tronstad

Kine Tronstad

Propriétaire / CEO
+34 618 100 733 kine@costablancabolig.com

Emplacement

Faire une demande

Responsable del tratamiento: Costablancabolig, SL, Finalidad del tratamiento: Gestión y control de los servicios ofrecidos a través de la página Web de Servicios inmobiliarios, Envío de información a traves de newsletter y otros, Legitimación: Por consentimiento, Destinatarios: No se cederan los datos, salvo para elaborar contabilidad, Derechos de las personas interesadas: Acceder, rectificar y suprimir los datos, solicitar la portabilidad de los mismos, oponerse altratamiento y solicitar la limitación de éste, Procedencia de los datos: El Propio interesado, Información Adicional: Puede consultarse la información adicional y detallada sobre protección de datos Aquí.
WhatsApp