Orihuela costa. Alicante Adosado - Venta

Ref: VB-003042

155.000€

Orihuela costa. Alicante Adosado - Venta

Vendido

Increíble adosado de 3 dormitorios en venta en Lomas de Cabo Roig

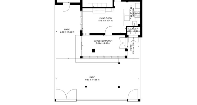
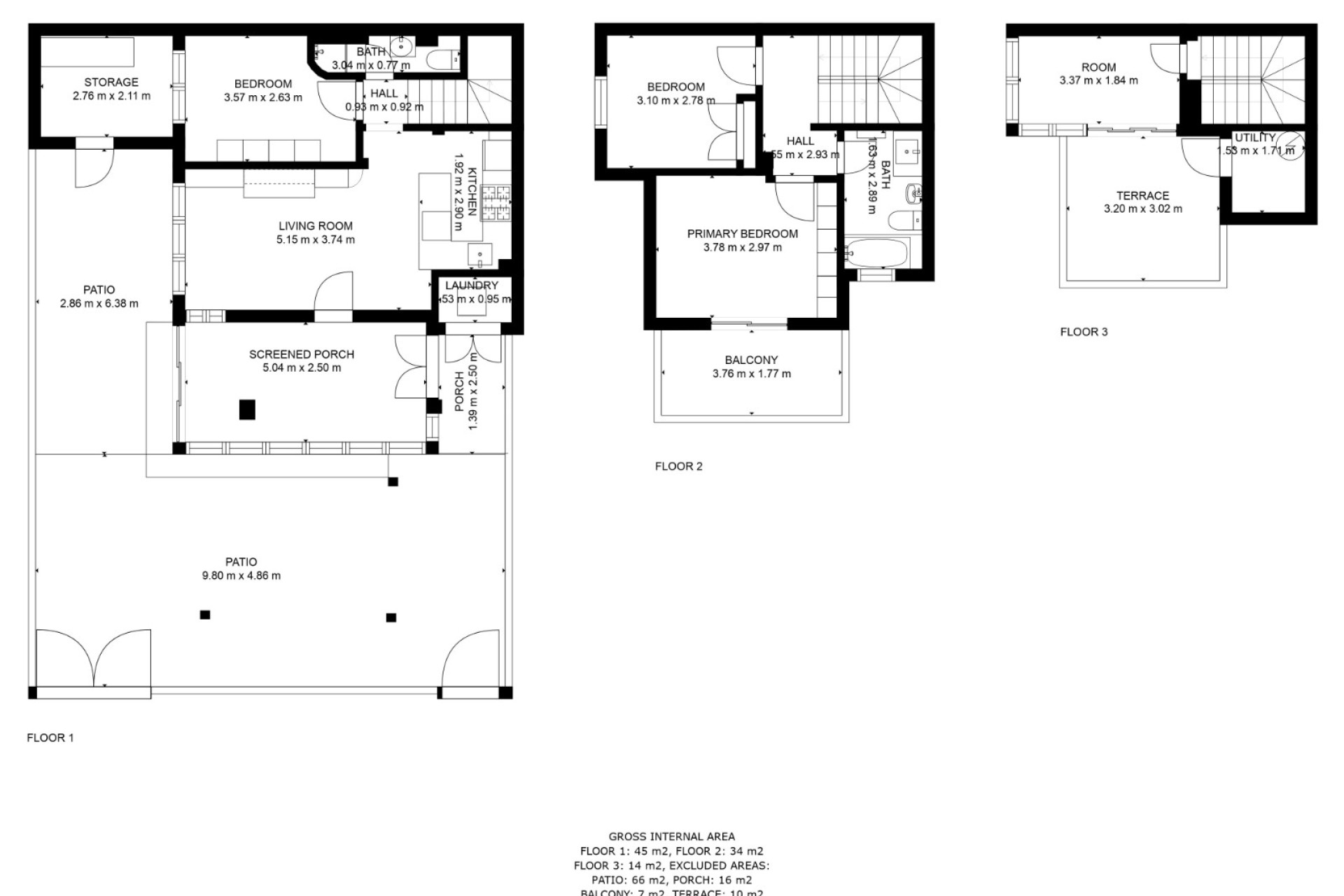
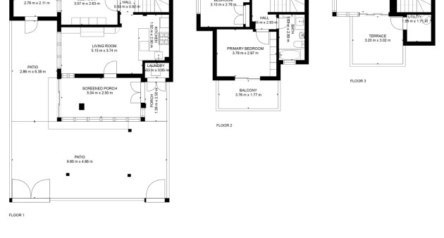
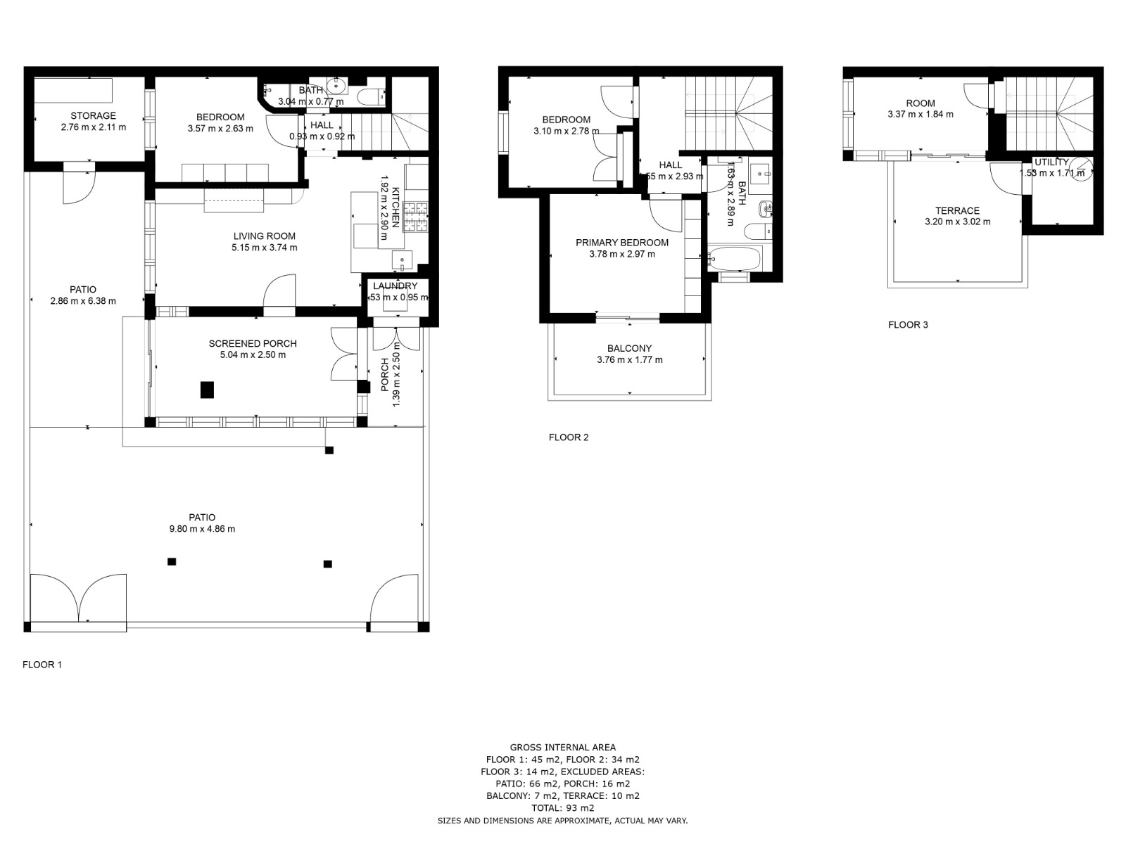
  • Metros

    80m2
  • Terreno

    80m2
  • Habitaciones

    3
  • Baños

    2
  • Piscina

Habitaciones Habitaciones:

3

Baños Baños:

2

Construidos Construidos:

80m2

Parcela Parcela:

80m2

Terraza Terraza:

54 m2

Piscina Piscina:

Plazas de garaje Plazas de garaje:

1

Cocinas Cocinas:

Independiente

Orientación Orientación:

Sur

Suma/IBI IBI:

340€

Gastos de comunidad Gastos de comunidad:

600€

Terraza Terraza
Jardin Jardin
Aire acondicionado Aire acondicionado
Piscina comunitaria Piscina comunitaria
Solarium Solarium
Urbanización cerrada Urbanización cerrada
Aparcamiento en la parcela Aparcamiento en la parcela
Terraza cubierta Terraza cubierta
Terraza acristalada Terraza acristalada
Ventilador de techo Ventilador de techo
Armarios empotrados Armarios empotrados
Jardín comunitaria Jardín comunitaria
Amueblado Amueblado
Furniture Furniture
Kine Tronstad

Kine Tronstad

Propietaria / CEO
+34 618 100 733 kine@costablancabolig.com

Localización

Hacer una consulta

Responsable del tratamiento: Costablancabolig, SL, Finalidad del tratamiento: Gestión y control de los servicios ofrecidos a través de la página Web de Servicios inmobiliarios, Envío de información a traves de newsletter y otros, Legitimación: Por consentimiento, Destinatarios: No se cederan los datos, salvo para elaborar contabilidad, Derechos de las personas interesadas: Acceder, rectificar y suprimir los datos, solicitar la portabilidad de los mismos, oponerse altratamiento y solicitar la limitación de éste, Procedencia de los datos: El Propio interesado, Información Adicional: Puede consultarse la información adicional y detallada sobre protección de datos Aquí.
WhatsApp