FUNDACIÓN Y ESTRUCTURA
- Cimentación realizada con losa de hormigón armado.
- Estructura de pilares y losas de hormigón armado.
- Todos los cimientos y estructura deben cumplir con la normativa vigente.
PLOMERÍA
- Plomería y bajantes enterrados con tubos de polipropileno con características de insonorización.
FACHADAS
- Sistema de fachada técnica ventilada hecha de una subestructura de espesor y ancho variable, de acuerdo con los cálculos de tensión, para el montaje de paneles y / o placas en el exterior. - Barandillas de vidrio laminado en doble butiral en terrazas.
- Cerramientos con placa de acabado exterior, aislamiento térmico y acústico incrustado en la subestructura de soporte, y placas de yeso laminado doble.
PISO
- Gres porcelánico de gran formato en baños secundarios.
- Cubierta de madera de roble de tres capas de 14 mm de espesor y 190 mm de listones de ancho mínimo en el resto de la casa.
- Aislamiento acústico antiimpacto debajo de todos los pisos.
- En terrazas, suelos de piedra natural con acabado antideslizante.
- Alicatado en la entrada, zonas comunes y exteriores según diseño interior y proyectos de paisajismo.
PARAMENTOS VERTICALES INTERIORES
- Tabiques interiores con sistema de tabiques modulares de paneles de yeso laminado:
Entre viviendas: 20 cm de espesor (estructura doble 5 placas, membrana acústica y aislamiento térmico). Interior de las viviendas de 10 cm de espesor (4 placas + aislamiento térmico). Las habitaciones tendrán membrana acústica. En las paredes de cuartos húmedos, los paneles de yeso laminado deben tener propiedades repelentes al agua.
- Grandes revestimientos de porcelanato en baños.
- Gres porcelánico alrededor de tendedero rotativo.
- Resto de paramentos verticales terminados con pintura plástica blanca lisa.
TECHOS
- Falsos techos con paneles de yeso laminado en toda la casa con pozos de registro en áreas para equipos de aire acondicionado en interiores. - Ensenada e iluminación indirecta con LED en la sala de estar según el diseño.
- Iluminación indirecta con leds en techos de terrazas.
vaso
- Climalit 8 + 14 + 6/6 o doble acristalamiento similar, baja emisividad con vidrio laminar específico para reforzar el aislamiento acústico.
INSTALACIONES EN CASA
- Sistema de automatización del hogar basado en el estándar KNX, que permite el control coordinado de temperatura, humedad, iluminación, persianas, calidad del aire y comunicación con acceso a través de la entrada de video, lo que permite usar un teléfono inteligente o tableta como control remoto, dentro y fuera del hogar .
- Sistema de ventilación mecánica individual autorregulable en cada hogar.
- Persianas eléctricas conectadas al sistema domótico.
- Aparatos sanitarios, marca Duravit o similar, con certificación Water Label.
- Grifería Grohe o similar, con certificación Water Label.
- Cocinas totalmente equipadas, con encimeras y repisas a juego en porcelana de alta durabilidad, y con electrodomésticos eficientes Miele, Smeg o similares con Energy Certificación de rendimiento estrella o equivalente.
INSTALACIONES
- Red interna de distribución de agua con polipropileno reticulado (PEX) o tubería multicapa.
- Instalación completa de aire acondicionado, calefacción y refrigeración por suelo radiante, y agua caliente sanitaria a través del sistema Aerotermia, con bomba de calor y conductos ocultos.
- Sistema de conductos para la recogida de residuos, separación de residuos para su reciclaje.
- Sistema de aspiración centralizada en cada hogar.
- Instalación eléctrica según REBT con un alto grado de electrificación.
- Iluminación con LED dicroicos y detectores de presencia en distribuidores y zonas comunes.
- Conexiones de televisión, teléfono y telecomunicaciones en la sala de estar y dormitorios. Terrazas con toma de televisión.
- Mecanismos de Jung, Niessen o empresas similares y equipos eléctricos con las especificaciones necesarias para cumplir con el sistema de certificación de edificios sostenibles LEED.
CARPINTERÍA
- Puerta de acceso a la casa blindada, con una puerta de 240 cm de altura. - Carpintería interior lacada en blanco, con puertas de 240 cm de altura.
- Armarios empotrados con estanterías, barras y cajoneras, según cada tipo. Con sistema de iluminación interior con LED incorporado y forrado internamente con acabado textil de melamina. Las puertas deben ser plegables y / o correderas y deben coincidir con el resto de la carpintería interior de la casa.
- Carpintería exterior de aluminio, con hojas correderas integradas en suelos Schüco, Cortiso o marca similar, y puertas plegables-abatibles-abatibles según tipo.
AISLAMIENTO
- Aislamiento térmico en las fachadas de lana mineral con espesor de 60, 80 y 90 mm. - Aislamiento acústico en los techos.
- En suelos, aislamiento mediante sistema de climatización mediante suelo radiante y calentado.
Ascensores
- Schindler, Otis o marca similar, velocidad 25m / s. Cabina del elevador principal para hasta 11 personas y elevador de cabina de tamaño especial válido para camillas de hasta 21 personas. Ambos estarán equipados con sistemas de tracción regenerativa.
ZONAS COMUNITARIAS
- Piscina desbordante exterior con cloración salina, integrada en el proyecto de paisajismo.
- Gimnasio en entrepiso con Technogym, Life Fitness o equipo similar.
- Club social ubicado en los dos pisos superiores de la torre, con piscina cubierta climatizada, salón, cocina, bar, dos baños y terraza. - Sistema de calentamiento de agua de piscina interior basado en paneles solares térmicos.
- Cancha de pádel.
- Zona WIFI en todo el complejo.
- Muro cortina de doble altura en el club social, marca Schüco, Cortizo o similar.
- Baños y vestuarios en las áreas de la piscina.
- Área de acceso que conduce a la entrada principal del edificio, con un área de carga y descarga.
- Videovigilancia en zonas comunes.
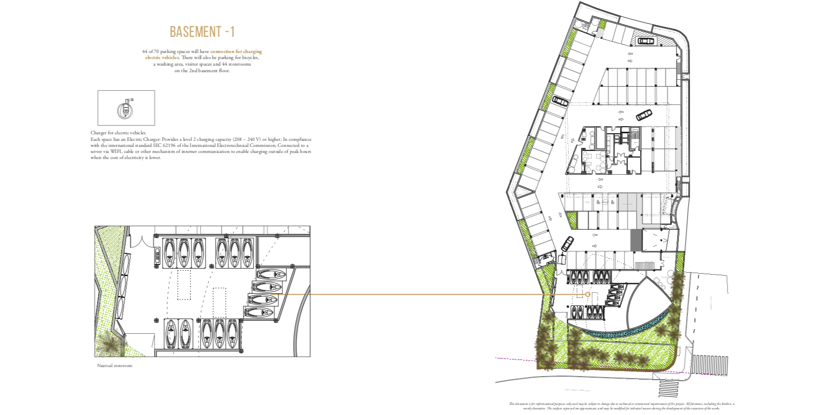
- Almacén náutico, con capacidad de almacenamiento para motos de agua.
- Recolección de agua de lluvia para su reutilización en riego de jardines, según lo requerido por el sistema de certificación de edificios sostenibles LEED.
- Recolección de aguas residuales para ser reutilizadas en el llenado de tanques de inodoros.
- Áreas ajardinadas externas con especies nativas y de bajo consumo de conformidad con el proyecto de jardinería específico.
Movilidad
- Cada hogar debe estar equipado con características de movilidad sostenible para cumplir con los requisitos del sistema de certificación de edificios sostenibles LEED: Coche eléctrico BMW i3.
Bicicleta eléctrica BMW E-Bike.
APARCAMIENTO y trasteros
- 70 plazas de aparcamiento, medidas mínimas 2,5 x 5m.
- Área de lavado de vehículos con salida de agua, compresor de aire y aspiradora. - Los vehículos que se estacionan dentro de la parcela deben ser EURO 6 o superior.
- Cada hogar tiene un espacio de estacionamiento con cargador eléctrico, con una capacidad de carga de nivel 2 (208V) o superior, y cumplirá con el estándar internacional IEC 62196 de la Comisión Electrotécnica Internacional. Estos cargadores se conectarán a un servidor a través de WIFI, cable u otro mecanismo de comunicación por Internet para poder proporcionar carga fuera de las horas pico de consumo para reducir el costo.
- Área de almacenamiento ubicada en el segundo sótano. Cada vivienda tiene 1 trastero con sistema de ventilación forzada en zonas comunes.
Una de las características más notables del paisaje de la Costa Blanca es el mar, pero no menos importantes son las montañas que lo miran.
El área de Alicante es una de las más montañosas de España; y el paisaje mediterráneo se muestra en toda su grandeza.
Si lo desea, puede visitar pequeños pueblos escondidos entre cadenas montañosas o de lo contrario, puerta de entrada a las ciudades costeras más modernas y animadas donde puede disfrutar de una intensa vida nocturna. La historia y la arquitectura monumental definen el paisaje de pueblos y ciudades del interior de la provincia de Alicante. Además, a lo largo de la costa puede encontrar numerosos puertos deportivos e innumerables instalaciones náuticas y deportivas para disfrutar del mar y todo lo que tiene para ofrecer.
Más de 200 kilómetros de costa, llenos de playas con aguas tranquilas y arenas suaves para deleitarse con innumerables horas de sol al año y disfrutar de su clima privilegiado y su mar blando.
Hacia el norte de Alicante podemos encontrar la Marina Alta donde las montañas cruzan la zona y llegan al mar formando impresionantes acantilados. A lo largo de los acantilados encontramos playas pequeñas y solitarias en pueblos tradicionales y pintorescos como Dénia, Jávea, Benitatxell o Benissa.
Si nos movemos hacia el sur, la región de Marina Baixa tiene algunas de las playas de arena fina más famosas y prestigiosas, como Benidorm (Levante y Poniente).
La provincia de Alicante también cuenta con una amplia variedad de Parques Naturales, entre los cuales se encuentran las cadenas montañosas costeras (como la Serra Gelada en Benidorm, el Peñón de Ifach en Calpe o el Montgó en Denia); sierras del interior (las Sierras de Mariola y Font Roja, en Alcoy), y también humedales de alto valor ecológico (Salinas de Santa Pola, Lagunas de Torrevieja-La Mata, El Hondo de Elche y La Marjal de Pego-Oliva).
Frente a la costa de Santa Pola, se ubica la pequeña Isla de Tabarca que se convirtió en Reserva Natural en 1986. Esta pequeña joya mediterránea exhibe gran riqueza en su fondo marino y posee una rica fauna marina. Moviéndose a lo largo de la costa, y entre la ciudad de Jávea y Dénia, encontramos el cabo de San Antonio (el Cabo de San Antonio), una reserva marina excepcional de la Costa Blanca, que es una zona muy recomendada para los amantes del buceo y las visitas panorámicas.
La zona interior del entorno de la Costa Blanca atesora la mayor belleza y encanto del Mediterráneo español. Su riqueza se define por la belleza de sus paisajes, llenos de contrastes entre valles y montañas, la huella histórica y el patrimonio de las diferentes civilizaciones que han habitado esta tierra, y también la riqueza de las tradiciones gastronómicas, artesanales y festivas, únicas en el mundo.
El interior de la provincia es, en esencia, una región emblemática donde se puede contemplar y admirar el auténtico paisaje mediterráneo: montañas que alcanzan hasta 1.500 m., Como Aitana y Puig Campana, valles, barrancos, cuevas y zonas agrícolas fértiles dedicadas a viñedos, cítricos y hortalizas, también almendros, olivos, cerezos o nísperos, entre otros.
El área tiene una vasta y diversa colección de sitios arqueológicos, monumentos como castillos, fortalezas, iglesias y palacios, y edificios populares como granjas, riachuelos, zanjas, pozos árabes, baños y lavanderías, depósitos que muestran los vestigios de eras y civilizaciones pasadas.
OCIO Y DEPORTE
En cuanto a su oferta náutica, la Costa Blanca incluye más de 20 puertos y puertos deportivos, 9,000 amarres y tres estaciones náuticas, junto con una amplia y completa gama de servicios e infraestructuras, lo que hace de esta zona del Mediterráneo una de las más completas para navegar y practicar una variedad de deportes náuticos.
La oferta que puedes encontrar para practicar deportes náuticos, especialmente vela y buceo, se ha convertido en una de las más atractivas y demandadas en el Mediterráneo español.
El fondo marino de la Costa Blanca es especialmente rico y hermoso y es un entorno idílico para los entusiastas del buceo que pueden sumergirse en lugares de belleza impresionante como L'Illa de Benidorm, o las Reservas Marinas de Cabo de San Antonio y Tabarca.
Vela, windsurf, flysurf, remo, piragüismo, esquí acuático, motos acuáticas, catamaranes o cruceros recreativos son solo algunas de las posibilidades de practicar deportes acuáticos en la provincia de Alicante.
Para los entusiastas del golf, la Costa Blanca es también un verdadero paraíso. Se ha convertido en uno de los principales centros internacionales de referencia en la práctica de este deporte durante todo el año, gracias a un clima excepcional, con casi 300 días de sol, y también por su fácil acceso a esos centros.
En la actualidad, la oferta de campos de golf en la Costa Blanca supera la quincena; Algunos de los campos de golf han sido diseñados por atletas expertos, como Severiano Ballesteros.
Todo esto acompañado de su cultura gastronómica hacen de la Costa Blanca un lugar único y atractivo los 365 días del año que no te puedes perder.
EL FRENTE AL MAR DE BENIDORM ES CONOCIDO POR SU FINA ARENA DE ORO, AGUA CLARA Y PLAYAS LIMPIAS Y BIEN MANTENIDAS, TODO EL AÑO.
En su extremo norte, dos pequeñas calas arenosas y rocosas, Cala del Tio Ximo y Cala Almadrava, son perfectas para el buceo y para aquellos que disfrutan de un chapuzón aislado.
Detrás de estas calas, comienza el paseo marítimo de la popular Playa de Levante, que ofrece una gama completa de servicios y un animado ambiente durante todo el año.
Al sur del puerto, Playa de Poniente compite en belleza y servicios con los primeros, y ambos comparten una ubicación muy privilegiada, bañados por el sol hasta el final del día, incluso en invierno. Entre los dos, en una sección que corresponde al casco antiguo y al refugio de Punta Canfali, se encuentra la pequeña ensenada de Mal Pas y, frente a ella, la isla de Benidorm, un paraíso para los buceadores.
Metros
150m2Habitaciones
2Baños
22018
2
2
150m2
Independiente
2
Sur