VILLAS DE OBRA NUEVA CON PISCINA PRIVADA EN MONFORTE DEL CID
Villas de obra nueva en Monforte del Cid, con el campo de golf a sólo 3 minutos de casa y justo al lado de las ciudades de Alicante y Elche, donde encontrará una amplia oferta cultural, gastronómica, de ocio y por supuesto de costa.
Las playas de arena dorada del Mediterráneo a un paso de tu nuevo hogar, un espacio donde disfrutar de días de sol y mar en cualquier momento.
Villas situadas a 3 minutos del centro deportivo del campo de golf Alenda Golf, lo que la convierte en la ubicación perfecta para disfrutar de la paz de una urbanización tranquila pero tener todos los servicios al lado de casa (A tan sólo 12 minutos del Aeropuerto de Alicante-Elche). La urbanización es una comunidad que reúne lo mejor de la vida moderna y la tranquilidad del entorno natural (Sin gastos de comunidad).
Descubra la elegancia y el confort de este precioso chalet independiente de 180 m2, diseñado para ofrecerle un estilo de vida excepcional, todo en planta baja.
Situada en la prestigiosa Urbanización, esta propiedad le ofrece una experiencia de vida única y de calidad. En parcelas desde 600 m2, proporcionándole un amplio espacio para disfrutar tanto del interior como del exterior.
Disfrute de la privacidad que le ofrece este chalet independiente, donde podrá relajarse en su propio jardín con piscina privada incluida.
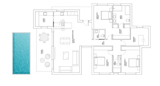
La casa se distribuye en dos grandes zonas:
Zona de día: Donde encontramos un amplio salón comedor con cocina abierta tipo office (muebles de cocina incluidos) que conecta con el amplio y moderno porche a través de sus dos grandes ventanales, dando paso a la zona exterior ajardinada y por qué no... a la piscina. La luz inunda cada rincón gracias a los grandes ventanales del salón, que se abren al porche, un espacio moderno y funcional que invita a disfrutar al máximo del aire libre. Imagina pasar las tardes con la familia y los amigos, rodeado de un entorno sereno y natural. Como espacio extra, cuenta con una zona de lavandería estratégicamente situada en la distribución de la vivienda donde será muy fácilmente accesible desde cualquier punto de la casa.
Zona de noche o descanso: En esta zona encontramos 4 dormitorios. El dormitorio principal cuenta con un amplio vestidor y baño en suite. Además, un segundo baño para dar servicio al resto de dormitorios y vivienda y un aseo.
Aquí no sólo encontrará una comunidad residencial, sino un lugar donde la naturaleza y la elegancia se entrelazan para proporcionarle un estilo de vida inigualable. Ya sea para establecer su residencia permanente, para disfrutar de una casa de vacaciones o si desea invertir en su futuro, esta villa es perfecta para usted.
Urbanización privada cercana a las principales ciudades de la provincia de Alicante, a 15 minutos en coche de Elche y Alicante, así como del aeropuerto y de las mejores playas.
La urbanización se encuentra en un entorno tranquilo cerca del campo de golf Alenda en Monforte del Cid.