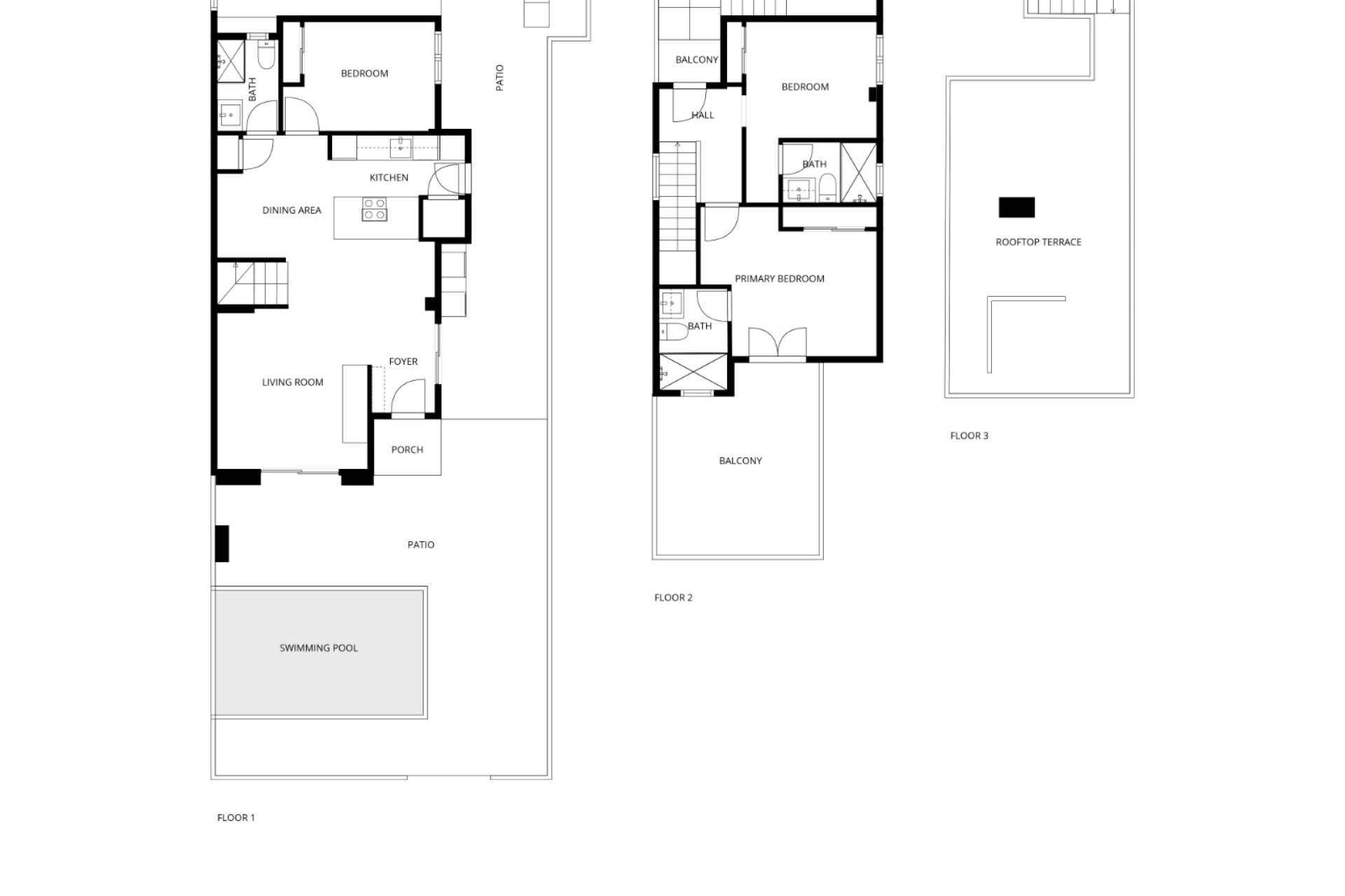
La vivienda tiene una superficie construida de 111 m², distribuida en dos plantas, y consta de 3 dormitorios dobles y 3 baños.
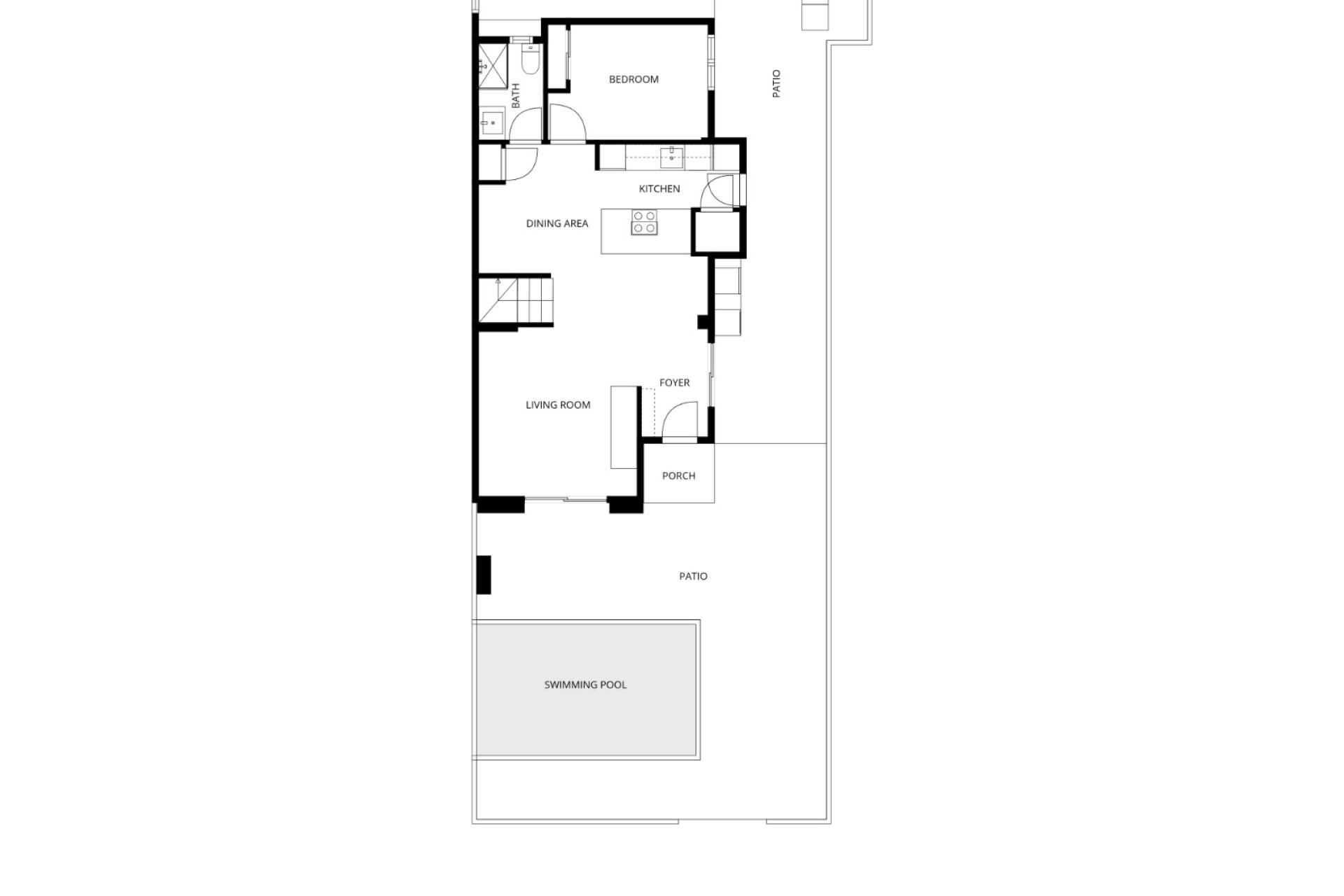
En la planta principal se encuentra un dormitorio doble, un baño y un luminoso salón-comedor con cocina de concepto abierto. Grandes puertas correderas desde el salón proporcionan acceso directo al jardín y a la zona de la piscina, creando una perfecta conexión entre interior y exterior.
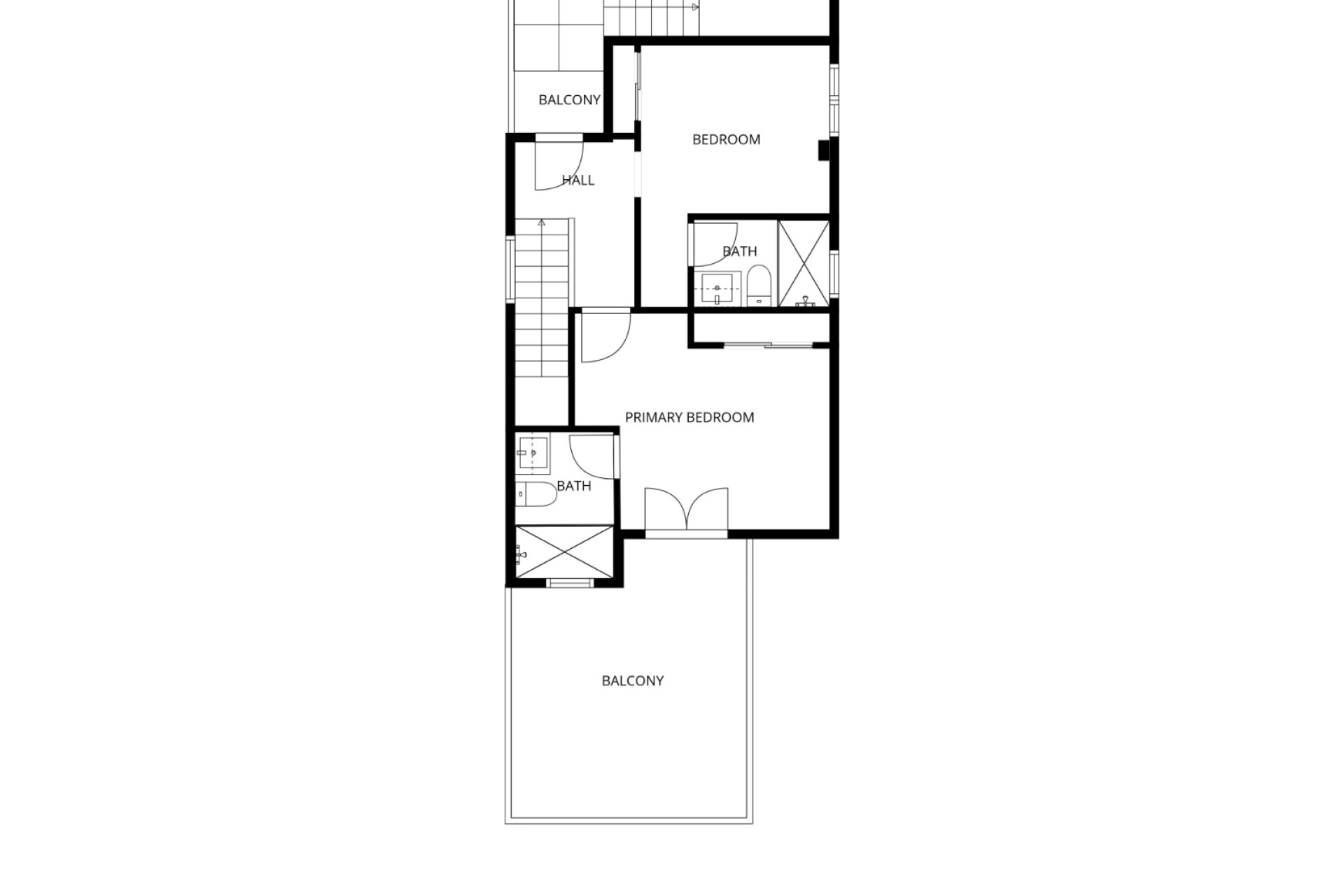
En la primera planta hay dos amplios dormitorios dobles, ambos con baño en suite. El dormitorio principal tiene acceso a una terraza privada, y desde esta planta también se accede a la gran terraza solárium.
La villa fue terminada en 2023 y está equipada con varias características modernas, entre ellas:
Zona exterior
La propiedad se sitúa en una parcela orientada al oeste con un bonito espacio exterior.
El jardín cuenta con una piscina privada climatizada, zonas exteriores para relajarse y comer, y aparcamiento privado dentro de la parcela con puerta automática.
También dispone de un área de trabajo con banco y un trastero adicional. Se han instalado varios toldos para proporcionar sombra durante los meses más cálidos.
Además del jardín, la villa ofrece una terraza en la primera planta y un amplio solárium con vistas a las montañas, con espacio para zonas de descanso y entretenimiento. La terraza cuenta con zonas alicatadas y con césped artificial, además de un gran toldo para sombra.
Ubicación
La villa se encuentra a poca distancia a pie de la calle principal de Benijófar, donde se puede encontrar una amplia oferta de servicios, restaurantes, cafeterías y tiendas.
Metros
111m2Terreno
165m2Habitaciones
3Baños
3Piscina
SíGaraje
Privado2023
3
3
111m2
165m2
Sí
Privado
3
Oeste