Modernos apartamentos de nueva construcción en el centro de San Miguel de Salinas
Vida contemporánea en un entorno mediterráneo saludable
Situada en la encantadora localidad de San Miguel de Salinas, a solo 10 km del mar Mediterráneo, esta nueva promoción residencial ofrece el equilibrio perfecto entre el confort moderno y el entorno natural. La zona es conocida por sus salinas cercanas y su excepcional microclima, considerado uno de los más saludables de Europa. Esta tranquila pero animada localidad permite a sus residentes disfrutar del auténtico estilo de vida mediterráneo, a la vez que se encuentra a poca distancia de tiendas, restaurantes, supermercados y todos los servicios esenciales.
San Miguel de Salinas se encuentra ligeramente hacia el interior de la Costa Blanca Sur, lo que ofrece vistas despejadas, aire fresco y fácil acceso a playas, campos de golf y zonas comerciales.
Apartamentos elegantes diseñados para ofrecer comodidad y eficiencia
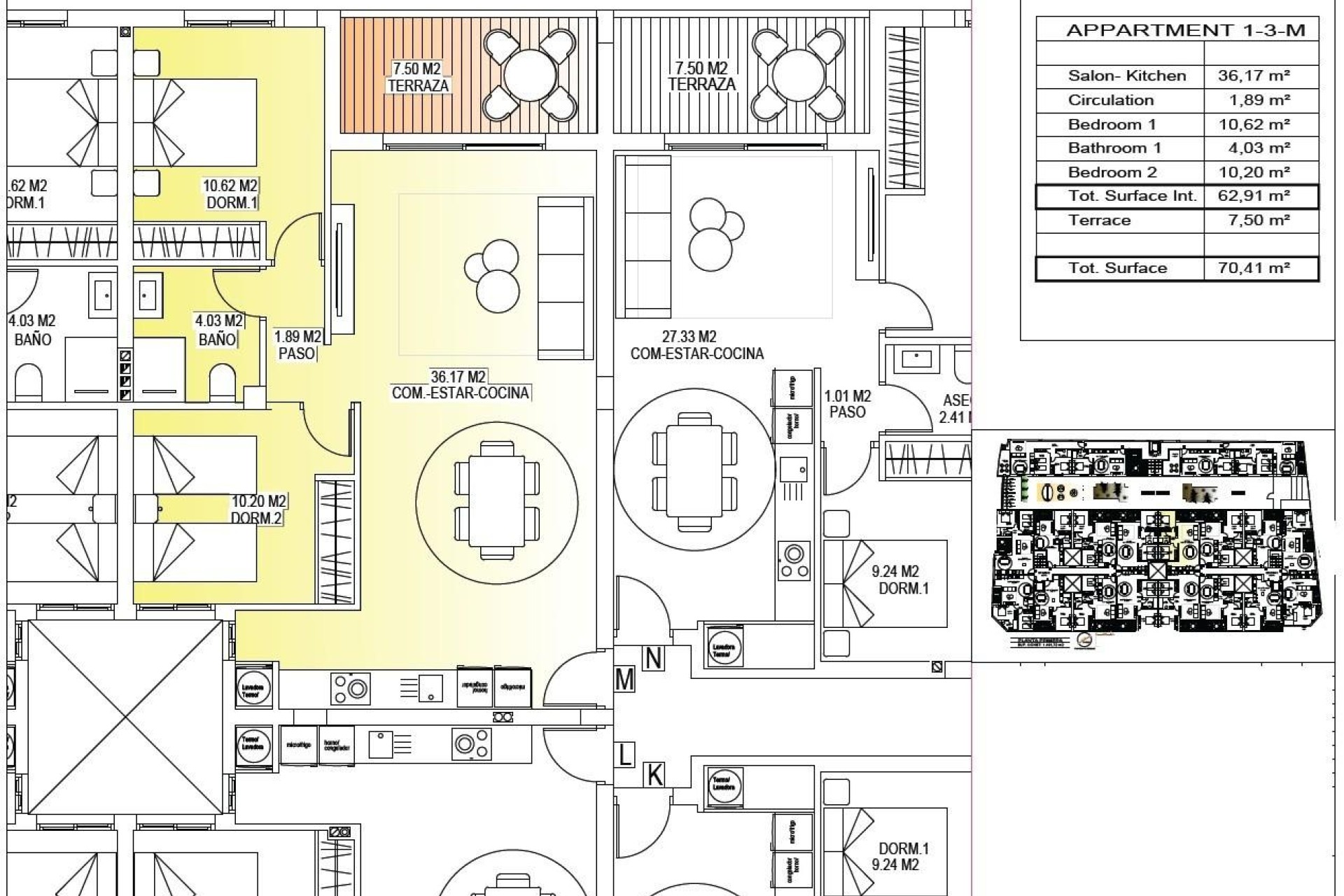
El proyecto consta de dos modernos edificios separados por una zona ajardinada comunitaria. Hay un total de 56 apartamentos contemporáneos disponibles con 1, 2 o 3 dormitorios, cada uno con terraza privada. Todas las viviendas han sido diseñadas pensando en la comodidad, la estética y la eficiencia energética, utilizando materiales de alta calidad y modernos sistemas de aislamiento.
Cada apartamento incluye:
Puerta de entrada blindada
Cuartos de baño con tocadores
Preinstalación de aire acondicionado por conductos
Certificado energético de clase A
La distribución y orientación de las viviendas garantizan la luz natural durante todo el día, creando interiores luminosos y acogedores, ideales tanto para vivir de forma permanente como para pasar las vacaciones.
Excepcionales zonas comunes para el relax y la vida social
La zona común de la planta baja está diseñada como el corazón social de la urbanización, rodeada de jardines, zonas de descanso, aparcamiento para bicicletas y un parque infantil. Es un punto de encuentro ideal para residentes de todas las edades.
En la azotea, le espera una impresionante zona de ocio de 350 m2. Este espacio incluye una piscina de 70 m2 con una zona separada para niños, pérgolas, tumbonas y zonas de sombra, lo que permite a los residentes relajarse mientras disfrutan de unas vistas panorámicas. Se puede acceder fácilmente a la azotea mediante uno de los tres ascensores y cuenta con instalaciones sanitarias para mayor comodidad.
Excelente ubicación cerca de los principales puntos de interés
Playas mediterráneas a 10 km
Centro comercial Zenia Boulevard a 9 km
Villamartin Golf a 6 km
Las Colinas Golf a 8 km
Puerto deportivo de Torrevieja a 12 km
Aeropuerto de Alicante a 60 km
Aeropuerto de Murcia Corvera a 55 km
Una inversión inteligente en la Costa Blanca Sur
Este complejo residencial combina una arquitectura moderna, acabados de calidad y una ubicación céntrica privilegiada, lo que lo convierte en una excelente opción para vivir, disfrutar de las vacaciones o invertir en alquiler.
Póngase en contacto con nosotros hoy mismo para obtener más información o concertar una visita a estos modernos apartamentos en San Miguel de Salinas.