Moderne Neubauvilla mit luxuriöser Ausstattung in Javea
Zeitgemäßes mediterranes Wohnen an der Costa Blanca
Diese atemberaubende freistehende Neubauvilla in Javea vereint hochwertige Ausstattungsmerkmale, elegantes Design und optimale Funktionalität auf drei großzügigen Ebenen. Die Immobilie befindet sich in einer der begehrtesten Küstenstädte an der Costa Blanca Nord und bietet eine ruhige Wohnumgebung, umgeben von grünen Bergen, Naturparks und wunderschönen Stränden. Javea ist bekannt für sein kristallklares Wasser, seine traditionelle Gastronomie und seinen mediterranen Lebensstil, was es zu einem idealen Ort sowohl für dauerhaftes Wohnen als auch für Investitionen macht.
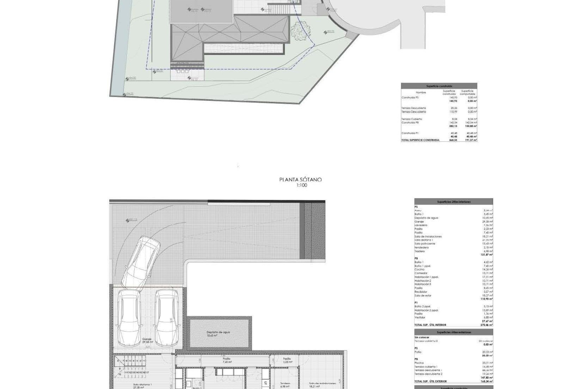
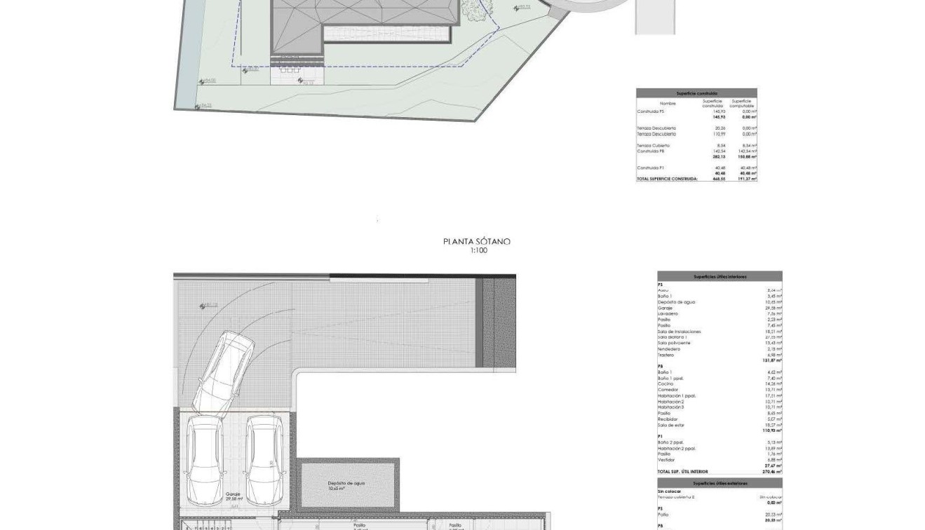
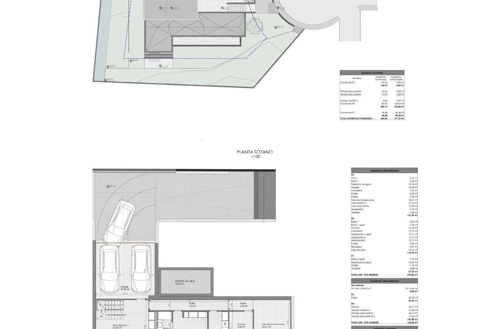
Geräumiges Untergeschoss für Vielseitigkeit
Das Untergeschoss ist durchdacht gestaltet, um den Anforderungen des modernen Lebensstils gerecht zu werden. Es umfasst eine offene Garage für zwei Autos, ein Badezimmer, eine Gästetoilette, einen offenen Raum, einen Mehrzweckraum und eine Terrasse, die natürliches Licht in den Raum bringt. Diese Etage bietet unendliche Möglichkeiten, egal ob Sie sich einen Fitnessraum, einen Unterhaltungsraum, ein Büro oder eine Gästesuite vorstellen.
Elegantes Erdgeschoss mit miteinander verbundenen Wohnräumen
Das Erdgeschoss verfügt über ein helles Wohn-Esszimmer, das nahtlos in die voll ausgestattete Küche übergeht und einen perfekten Bereich für Familienfeiern schafft. Eine Eingangshalle, eine Gästetoilette und Flure sorgen für Funktionalität und einen fließenden Übergang. Auf dieser Ebene befinden sich zwei komfortable Schlafzimmer, die sich ein modernes Badezimmer teilen, sowie ein großzügiges Hauptschlafzimmer mit eigenem Bad, das Privatsphäre und Komfort bietet.
Luxuriöse Master-Suite im Obergeschoss
Das Obergeschoss ist einem zweiten Hauptschlafzimmer gewidmet, das mit eigenem Bad, Ankleidezimmer und Flur einen exklusiven Rückzugsort bietet. Dieser private Bereich sorgt für Komfort und Ruhe und bietet einen wunderschönen Blick auf die grüne Landschaft der Umgebung.
Außenbereich für das mediterrane Klima
Die Außenbereiche der Immobilie sind so gestaltet, dass man das ganze Jahr über das Leben im Freien genießen kann. Im Erdgeschoss befinden sich zwei überdachte Terrassen und zwei nicht überdachte Terrassen. Eine der überdachten Terrassen umgibt den Swimmingpool und ist perfekt für sommerliche Entspannung, während die nicht überdachte Terrasse neben der Küche ideal für Mahlzeiten im Freien und Zusammenkünfte ist.
Ausgestattet mit Fußbodenheizung und Klimaanlage garantiert die Villa Komfort zu jeder Jahreszeit.
Erstklassige Lage in Javea
Strand El Arenal 3 km
Hafen und Yachthafen von Javea 7 km
Golfclub Javea 3 km
Flughafen Alicante 100 km
Flughafen Valencia 125 km
Ihr mediterranes Zuhause wartet auf Sie
Ob Sie eine Luxusresidenz, ein Ferienhaus oder eine sichere langfristige Investition suchen, diese Villa bietet Ihnen einen außergewöhnlichen Lebensstil in Javea. Kontaktieren Sie uns noch heute, um einen Besichtigungstermin zu vereinbaren und Ihr zukünftiges Zuhause an der Costa Blanca zu entdecken.