Diese elegante freistehende Villa befindet sich in einer exklusiven, gesicherten Wohnanlage mit nur sieben Häusern. Sie bietet modernes Design, Privatsphäre und Komfort. Zur Gemeinschaft gehören ein gepflegter Garten und ein gemeinschaftlicher Pool, zugänglich über ein elektrisches Tor mit Gegensprechanlage.
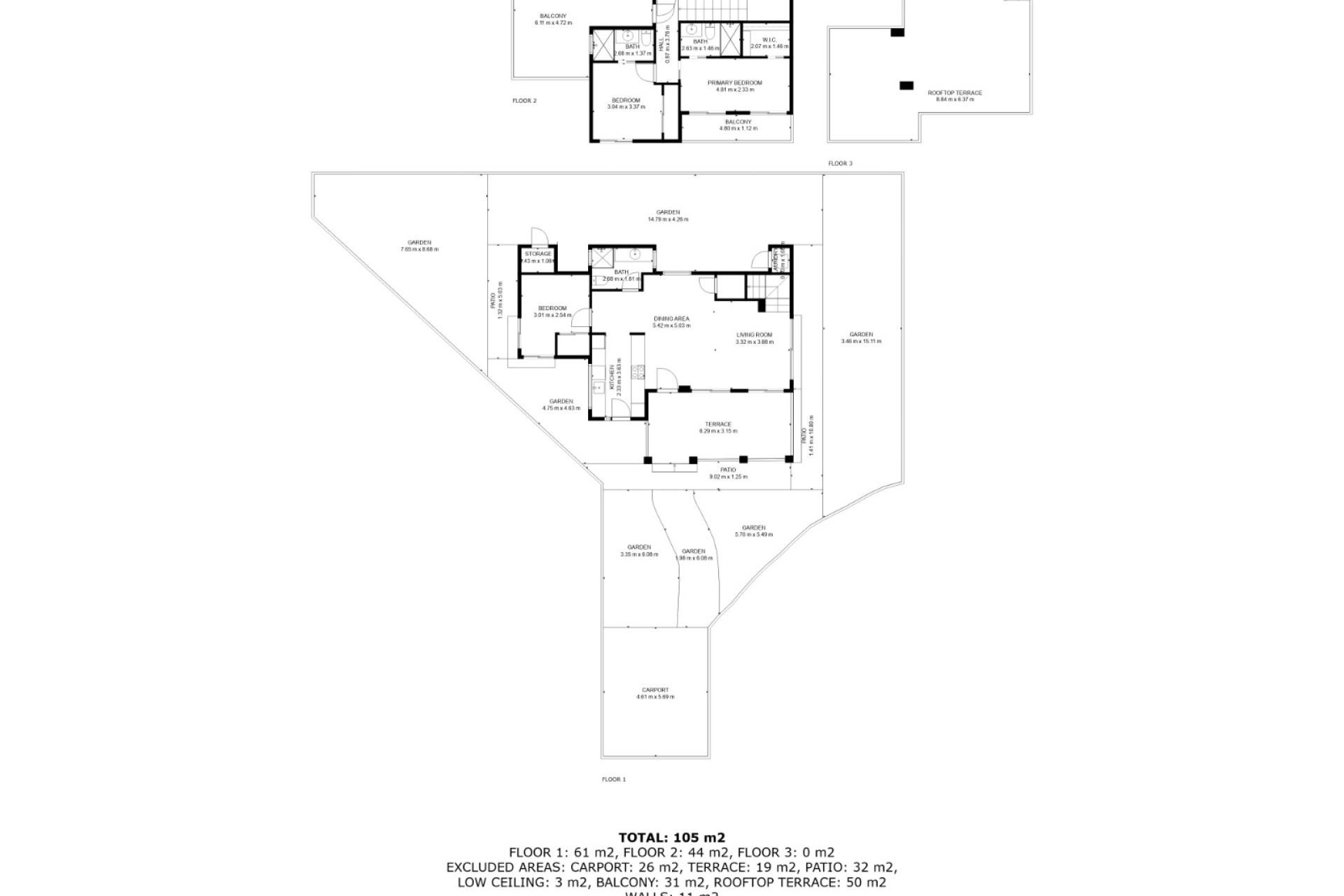
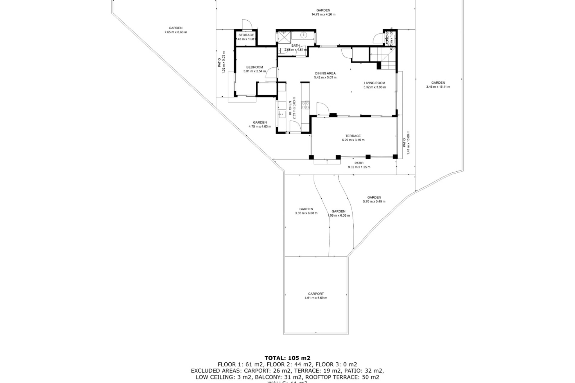
Die Immobilie steht auf einem privaten Grundstück von 350 m² und verfügt über eine bebaute Fläche von 122 m², verteilt auf zwei Etagen. Zudem gibt es ein privates Solarium von 45 m² auf dem Dach, das über eine Außentreppe von der oberen Terrasse erreichbar ist—perfekt zum Sonnenbaden oder Entspannen.
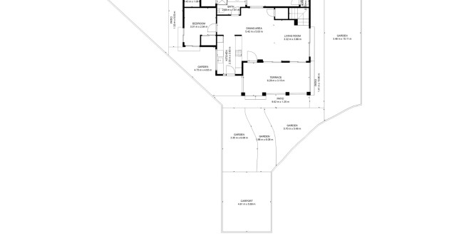
Im Erdgeschoss befindet sich ein heller Wohn- und Essbereich mit offener, voll ausgestatteter Küche, ein Doppelschlafzimmer mit Einbauschrank, ein Badezimmer mit Dusche, ein Hauswirtschaftsraum sowie weitere Abstellmöglichkeiten. Der Wohnbereich bietet direkten Zugang zum Garten und zu einem überdachten Außenbereich, ideal für Mahlzeiten oder entspannte Stunden im Freien.
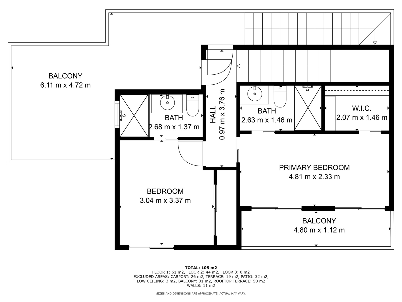
Im Obergeschoss befinden sich zwei weitere Doppelschlafzimmer, beide mit eigenen Badezimmern. Das Hauptschlafzimmer verfügt zudem über ein Ankleidezimmer und Zugang zu einer privaten Terrasse, die zum Solarium führt. Die Villa ist mit einer Klimaanlage mit individueller Steuerung pro Etage ausgestattet.
Die Immobilie wird komplett möbliert und mit privatem Stellplatz verkauft. Sie liegt in der Nähe aller Annehmlichkeiten – ideal als Dauerwohnsitz oder Ferienhaus.
Meter
122m2Grundstück
350m2Schlafzimmer
3Badezimmer
3Pool
Gemeinschaft2017
3
3
122m2
350m2
45m2
Gemeinschaft
Südwesten
320
1440
Die hier zur Verfügung gestellten Informationen sind vorbehaltlich von Irrtümern und sind nicht Bestandteil eines Vertrages. Das Angebot kann ohne Vorankündigung geändert oder zurückgezogen werden. Die Preise enthalten keine Anschaffungskosten.
470.000€
Meter 149m2
Grundst. 184m2
Sz 3
Bz 3
Pool Ja
460.000€
Meter 238m2
Grundst. 500m2
Sz 3
Bz 3
Pool Ja
365.000€
Meter 92m2
Grundst. 500m2
Sz 2
Bz 2
Pool Ja
425.000€
Meter 90m2
Grundst. 232m2
Sz 3
Bz 2
Pool Ja
499.000€
Meter 122m2
Grundst. 305m2
Sz 3
Bz 3
Pool Ja
489.900€
Meter 102m2
Grundst. 306m2
Sz 3
Bz 2
345.000€
Meter 100m2
Grundst. 504m2
Sz 2
Bz 2
Pool Ja
© 2026 Costa Blanca Bolig · Rechtlicher Hinweis · Privatsphäre · Cookies · Web-Karte
Entwurf & CRM: Mediaelx
Zunächst einmal, vielen Dank für Ihre Kontaktaufnahme.
470.000€
Meter 149m2
Grundst. 184m2
Sz 3
Bz 3
Pool Ja
460.000€
Meter 238m2
Grundst. 500m2
Sz 3
Bz 3
Pool Ja
365.000€
Meter 92m2
Grundst. 500m2
Sz 2
Bz 2
Pool Ja
425.000€
Meter 90m2
Grundst. 232m2
Sz 3
Bz 2
Pool Ja
499.000€
Meter 122m2
Grundst. 305m2
Sz 3
Bz 3
Pool Ja
489.900€
Meter 102m2
Grundst. 306m2
Sz 3
Bz 2
345.000€
Meter 100m2
Grundst. 504m2
Sz 2
Bz 2
Pool Ja
Zunächst einmal, vielen Dank für Ihre Kontaktaufnahme.
Wir haben Ihre Anfrage erhalten, wenn der Preis, der Immobilie mit der Referenz gesenkt wird: A-003402
In der Zwischenzeit sehen Sie sich bitte diese Auswahl ähnlicher Objekte an, die für Sie von Interesse sein könnten:
470.000€
Meter 149m2
Grundst. 184m2
Sz 3
Bz 3
Pool Ja
460.000€
Meter 238m2
Grundst. 500m2
Sz 3
Bz 3
Pool Ja
365.000€
Meter 92m2
Grundst. 500m2
Sz 2
Bz 2
Pool Ja
425.000€
Meter 90m2
Grundst. 232m2
Sz 3
Bz 2
Pool Ja
499.000€
Meter 122m2
Grundst. 305m2
Sz 3
Bz 3
Pool Ja
489.900€
Meter 102m2
Grundst. 306m2
Sz 3
Bz 2
345.000€
Meter 100m2
Grundst. 504m2
Sz 2
Bz 2
Pool Ja
Finden Sie Ihr Traumhaus, indem Sie Ihre Immobilien speichern und Benachrichtigungen über neue verfügbare Immobilien erhalten.