Entdecken Sie ein einzigartiges Angebot! Wohnen Sie in einer hellen Wohnung 60m im prestigeträchtigen Panorama Residencial-Komplex, nur 800 Meter vom breiten Vivers-Strand und 30 Minuten vom Flughafen Alicante entfernt. Dies ist der perfekte Ort für alle, die die Nähe zur Natur, Komfort und einen modernen Lebensstil schätzen.
Die wichtigsten Vorteile der Immobilie:
- Geschlossene Wohnanlage aus dem Jahr 2008, mit Blick auf grüne Dünen und einen Pinien- und Eukalyptuswald
- Wohnung nach einer umfassenden Renovierung im Jahr 2025, bezugsfertig, wird komplett möbliert verkauft
- Nur zwei Wohnungen pro Etage – intime Atmosphäre und Privatsphäre
- Lage im 4. Stock garantiert schöne Ausblicke und viel Tageslicht
Ausstattung und Einrichtung:
- Neue, energieeffiziente Fenster und Innentüren
- Modernes Badezimmer nach der Renovierung: Fußbodenheizung, Regendusche, Unterputzarmaturen, beheizter LED-Spiegel (Anti-Beschlag)
- Verglaste Terrasse, neuer 100L-Boiler
- Neue Möbel, Schlösser, Lampen und Beleuchtung
- Elektrisch betriebene Innenrollos in jedem Raum sowie manuelle Außenrollläden
- Zentrale Klimaanlage mit Heiz- und Kühlfunktion
- Zusätzlicher Wandheizkörper im Badezimmer
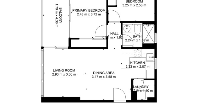
Durchdachte Raumaufteilung:
- Geräumiges Wohnzimmer mit Küche (Ost-West-Ausrichtung), Blick auf die Dünen, bequeme Couch, Esstisch mit Stühlen, moderne Haushaltsgeräte (neuer Samsung-Kühlschrank und Geschirrspüler)
- Hauptschlafzimmer mit großen Fenstern und Blick ins Grüne, Bett 160/200 cm, Einbauschrank, elektrische Verdunkelungsrollo, Lampe mit Ventilator
- Zweites Schlafzimmer mit ausziehbarem Bett (80–160/200 cm), Einbauschrank, Schreibtisch
- Hauswirtschaftsraum mit neuer Samsung-Wasch-Trockner-Kombination und Schrank
- Parkplatz auf dem Gelände der Wohnanlage
Zusätzliche Annehmlichkeiten:
- Große Gemeinschaftsfläche mit riesigem Pool und Sonnenbereich
- Sicherheit und Privatsphäre – geschlossene Wohnanlage
Lage und Umgebung:
- 800 m bis zum breiten Sandstrand – nur 20 Minuten zu Fuß durch malerische Dünen
- 10 Minuten zu Fuß zu einem großen Supermarkt, 15 Minuten zu Carrefour, 20 Minuten ins Zentrum von Guardamar, 15 Minuten zu Restaurants
Niedrige Unterhaltskosten:
- Jährliche Grundsteuer (IBI): 195 EUR
- Müllabfuhr: ca. 60 EUR/Jahr
- Hausgeld: ca. 55 EUR/Monat
Ein Ort, an dem der Alltag zu Urlaub wird!
Rufen Sie an und vereinbaren Sie einen Besichtigungstermin – diese Wohnung beeindruckt in Wirklichkeit noch mehr als auf den Fotos!