Villajoyosa. Alicante Apartment - New Build

Villajoyosa. Alicante Apartment - New Build

  • Meter

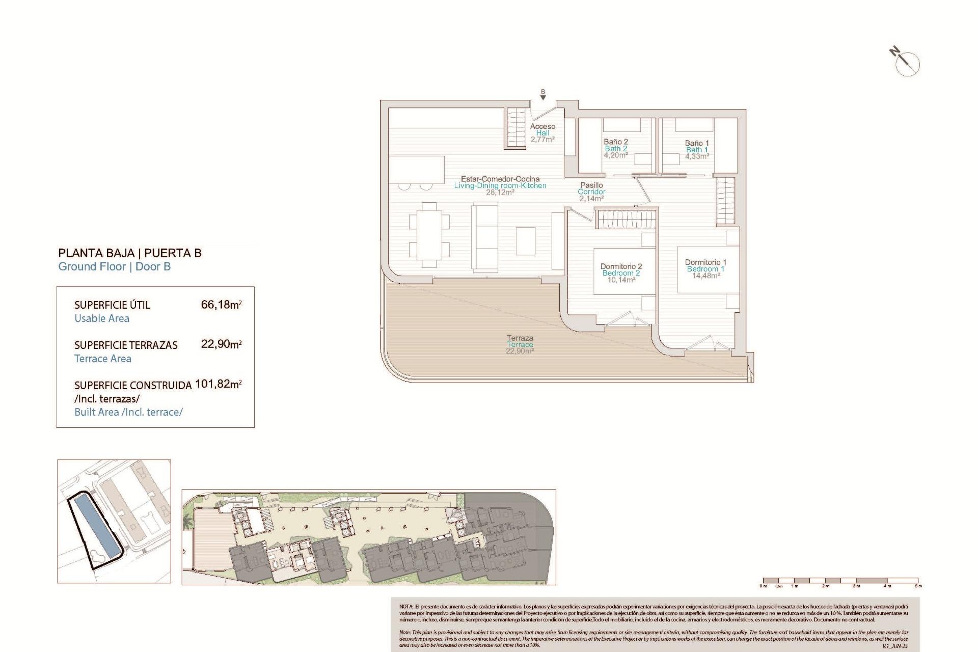
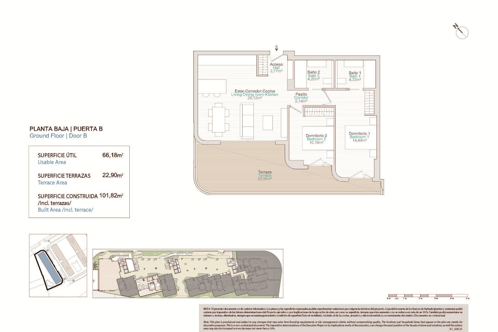
    101m2
  • Schlafzimmer

    2
  • Badezimmer

    2
  • Pool

    Ja
Schlafzimmer Schlafzimmer:

2

Badezimmer Badezimmer:

2

Gebaute Fläche Gebaute Fläche:

101m2

Schwimmbad Schwimmbad:

Ja

Jacuzzi
Gym
Elevator/Lift
Communal Pool
Gated
Views: Sea
Near Schools
Near Commercial Center
Location: Coastal, Urbanisation
Number of Parking Spaces: 1
Double Bedrooms: 2
First Line to the Sea
Terrace: 22 Msq.
Parking - Space
Useable Build Space: 66 Msq.
Beach: 60 Meters
Storage / Trastero
Kine Tronstad

Kine Tronstad

Eigentümer / CEO
+34 618 100 733 kine@costablancabolig.com

Stadt

Eine Anfrage stellen

Responsable del tratamiento: Costablancabolig, SL, Finalidad del tratamiento: Gestión y control de los servicios ofrecidos a través de la página Web de Servicios inmobiliarios, Envío de información a traves de newsletter y otros, Legitimación: Por consentimiento, Destinatarios: No se cederan los datos, salvo para elaborar contabilidad, Derechos de las personas interesadas: Acceder, rectificar y suprimir los datos, solicitar la portabilidad de los mismos, oponerse altratamiento y solicitar la limitación de éste, Procedencia de los datos: El Propio interesado, Información Adicional: Puede consultarse la información adicional y detallada sobre protección de datos Aquí.
WhatsApp