LUXUSNÍ NOVOSTAVBA VILY V MORAIRA
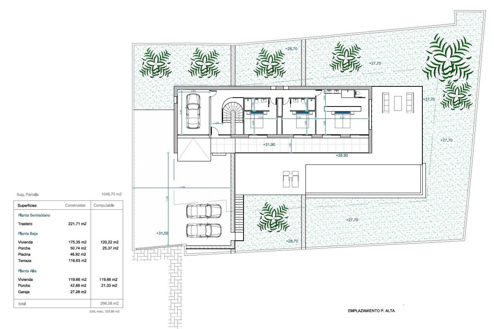
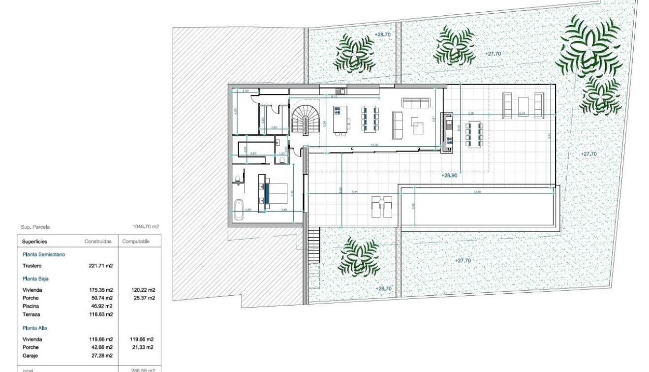
Novostavba Luxusní vila s nejlepšími vlastnostmi a výhledem na moře, na pozemku o rozloze 1046 m2 se dvěma přístupy pro pěší a vozidla, jeden přes společnou část urbanizace.
Vila je v pěší vzdálenosti od krásných pláží a centra Morairy.
Luxusní vila rozložená do 3 podlaží: přízemí s velkým světlým obývacím pokojem vedle otevřené kuchyně s kuchyňským ostrůvkem, WC pro hosty a ložnice s koupelnou. Mimo toto patro se nachází nekonečný bazén s velkou terasou a grilem.
V patře najdeme horní patro se 3 prostornými ložnicemi s vlastním sociálním zařízením a vlastním balkonem, kde si můžete vychutnat krásný výhled, který tato vila nabízí. Mimo toto patro se nachází garáž. A konečně v suterénu najdeme skladovací místnost o rozloze 221 m2.
EXTRAS: Vnitřní vybavení: Technal truhlářství s bezpečnostním sklem, kompletní kuchyňská linka se spotřebiči Siemens, koupelny a kompletní baterie značky roca, LED osvětlení, aerotermální systém pro ohřev vody a podlahové vytápění, klimatizační rozvody (teplé a studené) v celém domě, solární panely, vestavěné skříně, elektrické žaluzie, vnitřní alarm, předinstalace venkovního alarmu a bezpečnostních kamer. Obdélníkový bazén s přepadovým systémem, prostor pro grilování, prádelna, dokončená zahrada.
Automatické vstupní dveře.
Energetická klasifikace A.
Orientace na jih
Moraira je malé městečko s dobrými restauracemi, bary a spoustou supermarketů v okolí.
Přímo u města je velmi příjemná pláž, která je skvělá pro rodiny.
Nábřeží nabízí ohromný výhled na Penon Ifach přes záliv v Calpe. Cesta k němu po pobřežní silnici stojí za to a nabízí nádherné výhledy.
Moraira se nachází asi 1 hodinu a 15 minut severně po dálnici A7 od letiště v Alicante a je poměrně snadno dostupná. Z letiště ve Valencii je to přibližně stejně daleko nebo o něco méně na jih.
291