Aspe. Alicante Villa - Novostavba

Ref: RD-62850

508.000€

Aspe. Alicante Villa - Novostavba

  • Metry

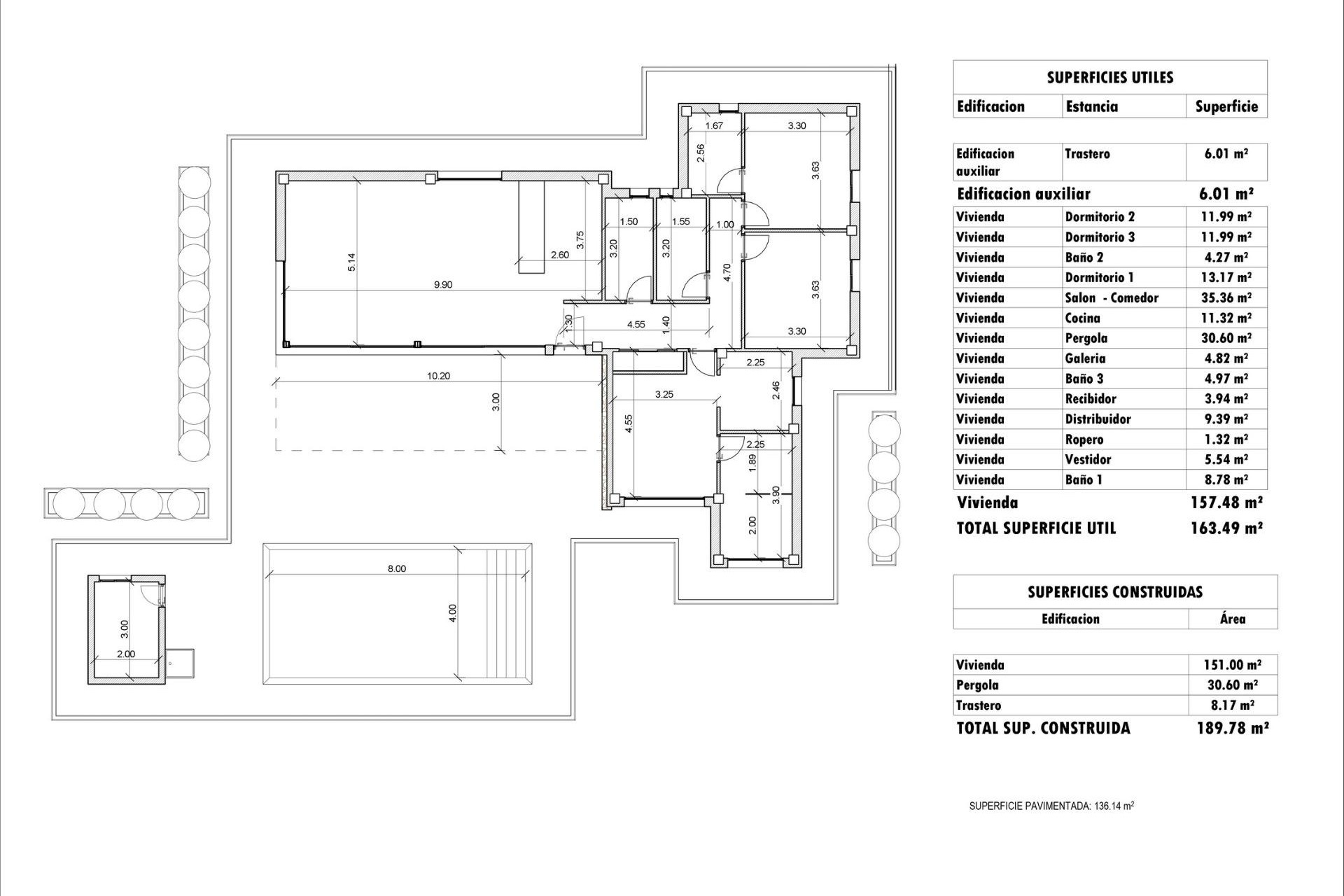
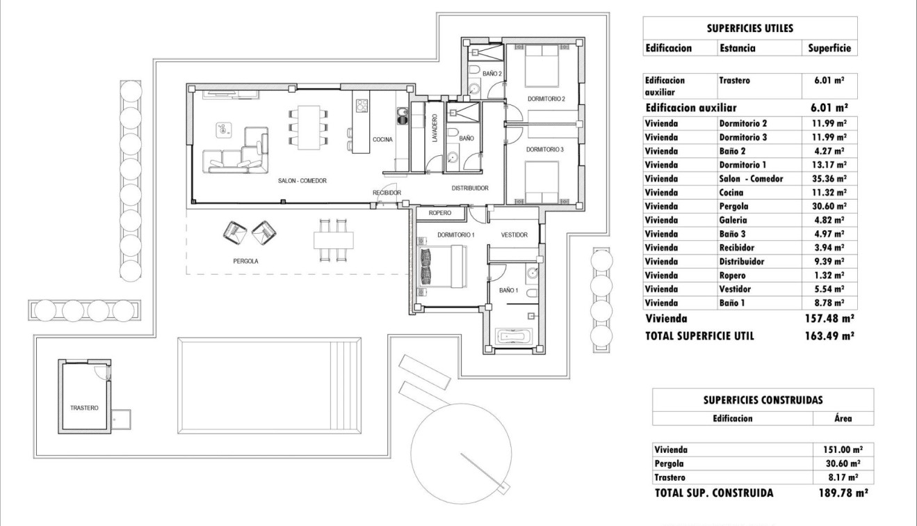
    189m2
  • Pozemek

    13172m2
  • Ložnice

    3
  • Koupelny

    3
  • Bazén

    Ano
Ložnice Ložnice:

3

Koupelny Koupelny:

3

Postaveno Postaveno:

189m2

Pozemek Pozemek:

13172m2

Bazén Bazén:

Ano

Garden
Gated
Near Schools
Double Bedrooms: 3
Number of Parking Spaces: 1
Air Conditioning: Pre-Installed
Private Pool
Parking - Space
Beach: 25000 Meters
Terrace: 30 Msq.
Useable Build Space: 157 Msq.
Location: Mountain
Storage / Trastero
Kine Tronstad

Kine Tronstad

Majitel / CEO
+34 618 100 733 kine@costablancabolig.com

Lokalita

Zaslat dotaz

Responsable del tratamiento: Costablancabolig, SL, Finalidad del tratamiento: Gestión y control de los servicios ofrecidos a través de la página Web de Servicios inmobiliarios, Envío de información a traves de newsletter y otros, Legitimación: Por consentimiento, Destinatarios: No se cederan los datos, salvo para elaborar contabilidad, Derechos de las personas interesadas: Acceder, rectificar y suprimir los datos, solicitar la portabilidad de los mismos, oponerse altratamiento y solicitar la limitación de éste, Procedencia de los datos: El Propio interesado, Información Adicional: Puede consultarse la información adicional y detallada sobre protección de datos Aquí.
WhatsApp